|
|
|
| Larry Stein Oklahoma County Assessor (405) 713-1200 - Public Access System |
|
|
|
|
|
|
| Real Property Display - Screen Produced 2/27/2026 4:46:47 PM | ||||
|---|---|---|---|---|
| Account: R144711025 | Type: Residential | Location: |
2212 N ANN ARBOR AVE |
|
| Building Name/Occupant: |
|
OKLAHOMA CITY |
||
| Owner Name 1: | DELGADO CHRISTOPHER D & YESENIA |
Parcel PIN#: |
2905-14-471-1025 |
|
| Owner Name 2: | 1/4 section #: |
2905 |
||
| Owner Name 3: | Parent Acct: |
|
||
| Billing Address: | 2212 N ANN ARBOR AVE | Tax District: |
|
|
| City, State, Zip | OKLAHOMA CITY, OK 73127 | School System: |
Putnam City #1 |
|
|
Country: (If noted) |
Land Size: |
0.6900 Acres |
||
|
Land Value: 37,950 |
|
|||
|
Sect 27-T12N-R4W Qtr NE |
LOMBARD ADDITION
Block
000
Lot
003
|
|||
| Full Legal Description: LOMBARD ADDITION 000 003 |
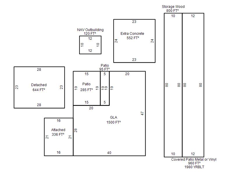
| Photo & Sketch (if available) | Comp Sales (ordered by relevancy) |
|
||||||||||||||||||
|
||||||||||||||||||||
| Value History (*The County Treasurer 405-713-1300 posts & collects actual tax amounts. Contact information HERE) | |||||||||||||
|---|---|---|---|---|---|---|---|---|---|---|---|---|---|
| Year | Market Value | Taxable Mkt Value | Gross Assessed | Exemption | Net Assessed | Millage | Est. Tax | Tax Savings | |||||
|
2025 |
264,500 |
264,500 |
29,095 |
0 |
29,095 |
123.17 |
$3,584 |
$0 |
|||||
|
2024 |
262,000 |
257,250 |
28,297 |
0 |
28,297 |
122.30 |
$3,461 |
$64 |
|||||
|
2023 |
245,000 |
245,000 |
26,950 |
0 |
26,950 |
121.91 |
$3,285 |
$0 |
|||||
|
2022 |
180,500 |
117,643 |
12,940 |
1,000 |
11,940 |
123.41 |
$1,474 |
$977 |
|||||
|
2021 |
156,000 |
117,643 |
12,940 |
1,000 |
11,940 |
122.23 |
$1,460 |
$638 |
|||||
| Property Account Status/Adjustments/Exemptions | ||
|---|---|---|
| Account # | Exemption Description | Amount |
|
R144711025 |
5% Capped Account |
0 |
| Property Deed Transaction History (Recorded in the County Clerk's Office) | ||||||||||
|---|---|---|---|---|---|---|---|---|---|---|
| Date | Type | Book | Page | Price | Grantor | Grantee | ||||
|
11/18/2022 |
|
Deeds |
$255,000 |
FOSTER SCOTT PATRICK SUCC TRS |
DELGADO CHRISTOPHER D & YESENIA |
|||||
|
11/16/2021 |
|
Deeds |
$0 |
FOSTER JIM |
FOSTER JAMES CRAIG REV LIV TRUST |
|||||
|
11/15/2021 |
|
Hmstd Off & |
$0 |
FOSTER JAMES CRAIG REV LIV TRUST |
FOSTER SCOTT PATRICK SUCC TRS |
|||||
|
3/29/2011 |
|
Deeds |
$53,000 |
FEDERAL NATIONAL MTG ASSOCIATION |
FOSTER JIM |
|||||
|
7/26/2010 |
|
Hmstd Off & |
$0 |
DAY ROBERT |
FEDERAL NATIONAL MTG ASSOCIATION |
|||||
| Last Mailed Notice of Value (N.O.V.) Information/History | ||||||||
|---|---|---|---|---|---|---|---|---|
| Year | Date | Market Value | Taxable Market Value | Gross Assessed | Exemption | Net Assessed | ||
|
2025 |
02/14/2025 |
264,500 |
264,500 |
29,095 |
0 |
29,095 |
||
|
2024 |
02/13/2024 |
262,000 |
257,250 |
28,297 |
0 |
28,297 |
||
|
2023 |
02/14/2023 |
245,000 |
245,000 |
26,950 |
0 |
26,950 |
||
|
2022 |
03/15/2022 |
180,500 |
117,643 |
12,940 |
1,000 |
11,940 |
||
|
2021 |
03/19/2021 |
156,000 |
117,643 |
12,940 |
1,000 |
11,940 |
||
| Property Building Permit History | ||||||
|---|---|---|---|---|---|---|
| Issued | Permit # | Provided by | Bldg # | Description | Est Construction Cost | Status |
|
12/3/1992 |
10240084 |
OKLAHOMA CITY |
1 |
Add On |
2,000 |
Inactive |
|
5/18/1992 |
10240082 |
OKLAHOMA CITY |
1 |
Storage Buil |
2,000 |
Inactive |
|
5/18/1992 |
10240083 |
OKLAHOMA CITY |
1 |
Storage Buil |
2,000 |
Inactive |
| Click button on building number to access detailed information: | ||||||
|---|---|---|---|---|---|---|
| Bldg # | Vacant/Improved Land | Bldg Description | Year Built | SqFt | # Stories | |
|
1 |
Improved |
Ranch 1 Story |
1956 |
1,500 |
1 Stories |
|