|
|
|
| Larry Stein Oklahoma County Assessor (405) 713-1200 - Public Access System |
|
|
|
|
|
|
| Real Property Display - Screen Produced 2/27/2026 4:46:48 PM | ||||
|---|---|---|---|---|
| Account: R142661400 | Type: Residential | Location: |
4515 W PARK PL |
|
| Building Name/Occupant: |
|
OKLAHOMA CITY |
||
| Owner Name 1: | PEREZ EUSTACIO V |
Parcel PIN#: |
2906-14-266-1400 |
|
| Owner Name 2: | 1/4 section #: |
2906 |
||
| Owner Name 3: | Parent Acct: |
|
||
| Billing Address: | 4515 W PARK PL | Tax District: |
|
|
| City, State, Zip | OKLAHOMA CITY, OK 73127 | School System: |
Putnam City #1 |
|
|
Country: (If noted) |
Land Size: |
0.4649 Acres |
||
|
Land Value: 44,550 |
|
|||
|
Sect 27-T12N-R4W Qtr SE |
NEWSOM ADDITION
Block
025
Lot
000
|
|||
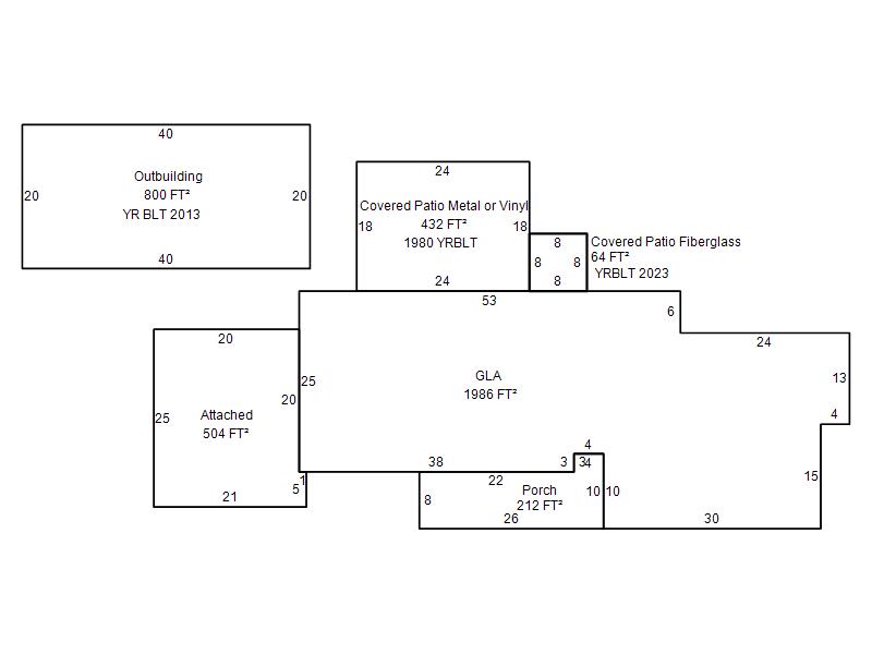
| Full Legal Description: NEWSOM ADDITION 025 000 LOTS 15 & 16 |
| Photo & Sketch (if available) | Comp Sales (ordered by relevancy) |
|
||||||||||||||||||
|
||||||||||||||||||||
| Value History (*The County Treasurer 405-713-1300 posts & collects actual tax amounts. Contact information HERE) | |||||||||||||
|---|---|---|---|---|---|---|---|---|---|---|---|---|---|
| Year | Market Value | Taxable Mkt Value | Gross Assessed | Exemption | Net Assessed | Millage | Est. Tax | Tax Savings | |||||
|
2025 |
214,500 |
186,900 |
20,559 |
0 |
20,559 |
123.17 |
$2,532 |
$374 |
|||||
|
2024 |
178,000 |
178,000 |
19,580 |
0 |
19,580 |
122.30 |
$2,395 |
$0 |
|||||
|
2023 |
184,500 |
184,500 |
20,295 |
0 |
20,295 |
121.91 |
$2,474 |
$0 |
|||||
|
2022 |
184,500 |
184,500 |
20,295 |
0 |
20,295 |
123.41 |
$2,505 |
$0 |
|||||
|
2021 |
131,000 |
83,500 |
9,185 |
1,000 |
8,185 |
122.23 |
$1,000 |
$761 |
|||||
| Property Account Status/Adjustments/Exemptions | ||
|---|---|---|
| Account # | Exemption Description | Amount |
|
R142661400 |
5% Capped Account |
0 |
| Property Deed Transaction History (Recorded in the County Clerk's Office) | |||||||
|---|---|---|---|---|---|---|---|
| Date | Type | Book | Page | Price | Grantor | Grantee | |
|
6/30/2021 |
|
Deeds |
$190,000 |
WYATT DARREL E SR TRS |
PEREZ EUSTACIO V |
||
|
4/9/2020 |
|
Deeds |
$0 |
WYATT DARREL E |
WYATT DARREL E SR TRS |
||
|
6/24/2018 |
|
Deeds |
$0 |
WYATT DARREL E & SHEREN L |
WYATT DARREL E |
||
|
12/1/1975 |
|
Historical |
$0 |
|
WYATT DARREL E & SHEREN L |
||
| Last Mailed Notice of Value (N.O.V.) Information/History | ||||||||
|---|---|---|---|---|---|---|---|---|
| Year | Date | Market Value | Taxable Market Value | Gross Assessed | Exemption | Net Assessed | ||
|
2026 |
02/23/2026 |
212,000 |
196,245 |
21,586 |
0 |
21,586 |
||
|
2025 |
02/14/2025 |
214,500 |
186,900 |
20,559 |
0 |
20,559 |
||
|
2022 |
03/15/2022 |
184,500 |
184,500 |
20,295 |
0 |
20,295 |
||
|
2021 |
03/19/2021 |
131,000 |
83,500 |
9,185 |
1,000 |
8,185 |
||
|
2020 |
03/10/2020 |
94,500 |
83,500 |
9,185 |
1,000 |
8,185 |
||
| Property Building Permit History | |||||||||||
|---|---|---|---|---|---|---|---|---|---|---|---|
| Issued | Permit # | Provided by | Bldg # | Description | Est Construction Cost | Status | |||||
| No Building Permit records returned. | |||||||||||
| Click button on building number to access detailed information: | ||||||
|---|---|---|---|---|---|---|
| Bldg # | Vacant/Improved Land | Bldg Description | Year Built | SqFt | # Stories | |
|
1 |
Improved |
Ranch 1 Story |
1951 |
1,986 |
1 Stories |
|