|
|
|
| Larry Stein Oklahoma County Assessor (405) 713-1200 - Public Access System |
|
|
|
|
|
|
| Real Property Display - Screen Produced 4/1/2026 2:58:57 PM | ||||
|---|---|---|---|---|
| Account: R140271090 | Type: Residential | Location: |
8100 NW 20TH TER |
|
| Building Name/Occupant: |
|
OKLAHOMA CITY |
||
| Owner Name 1: | BRAVO YADIRA |
Parcel PIN#: |
2917-14-027-1090 |
|
| Owner Name 2: | 1/4 section #: |
2917 |
||
| Owner Name 3: | Parent Acct: |
|
||
| Billing Address: | 8100 NW 20TH TER | Tax District: |
|
|
| City, State, Zip | OKLAHOMA CITY, OK 73127-1134 | School System: |
Putnam City #1 |
|
|
Country: (If noted) |
Land Size: |
0.2191 Acres |
||
|
Land Value: 34,000 |
|
|||
|
Sect 30-T12N-R4W Qtr NE |
LINHURST ADD
Block
001
Lot
010
|
|||
| Full Legal Description: LINHURST ADD 001 010 |
| Photo & Sketch (if available) | Comp Sales (ordered by relevancy) |
|
||||||||||||||||||
|
||||||||||||||||||||
| Value History (*The County Treasurer 405-713-1300 posts & collects actual tax amounts. Contact information HERE) | |||||||||||||
|---|---|---|---|---|---|---|---|---|---|---|---|---|---|
| Year | Market Value | Taxable Mkt Value | Gross Assessed | Exemption | Net Assessed | Millage | Est. Tax | Tax Savings | |||||
|
2026 |
219,000 |
219,000 |
24,090 |
1,000 |
23,090 |
123.17 |
$2,844 |
$123 |
|||||
|
2025 |
229,000 |
229,000 |
25,190 |
0 |
25,190 |
123.17 |
$3,103 |
$0 |
|||||
|
2024 |
208,000 |
208,000 |
22,880 |
0 |
22,880 |
122.30 |
$2,798 |
$0 |
|||||
|
2023 |
200,500 |
126,586 |
13,924 |
1,000 |
12,924 |
121.91 |
$1,576 |
$1,113 |
|||||
|
2022 |
182,500 |
126,586 |
13,924 |
1,000 |
12,924 |
123.41 |
$1,595 |
$882 |
|||||
| Property Account Status/Adjustments/Exemptions | ||
|---|---|---|
| Account # | Exemption Description | Amount |
|
R140271090 |
3% Cap Homestead |
0 |
|
R140271090 |
Homestead |
1,000 |
| Property Deed Transaction History (Recorded in the County Clerk's Office) | |||||||
|---|---|---|---|---|---|---|---|
| Date | Type | Book | Page | Price | Grantor | Grantee | |
|
4/19/2024 |
|
Deeds |
$232,500 |
CASHFLOW HOLDINGS LLC |
BRAVO YADIRA |
||
|
11/30/2023 |
|
Sheriff's/Ma |
$143,000 |
KLOSS GEORGE R & AVIS |
CASHFLOW HOLDINGS LLC |
||
|
9/1/1975 |
|
Historical |
$0 |
|
KLOSS GEORGE R & AVIS |
||
| Last Mailed Notice of Value (N.O.V.) Information/History | ||||||||
|---|---|---|---|---|---|---|---|---|
| Year | Date | Market Value | Taxable Market Value | Gross Assessed | Exemption | Net Assessed | ||
|
2025 |
02/14/2025 |
229,000 |
229,000 |
25,190 |
0 |
25,190 |
||
|
2024 |
02/13/2024 |
208,000 |
208,000 |
22,880 |
0 |
22,880 |
||
|
2023 |
02/14/2023 |
200,500 |
126,586 |
13,924 |
1,000 |
12,924 |
||
|
2022 |
03/15/2022 |
182,500 |
126,586 |
13,924 |
1,000 |
12,924 |
||
|
2021 |
03/19/2021 |
152,500 |
126,586 |
13,924 |
1,000 |
12,924 |
||
| Property Building Permit History | |||||||||||
|---|---|---|---|---|---|---|---|---|---|---|---|
| Issued | Permit # | Provided by | Bldg # | Description | Est Construction Cost | Status | |||||
| No Building Permit records returned. | |||||||||||
| Click button on building number to access detailed information: | ||||||
|---|---|---|---|---|---|---|
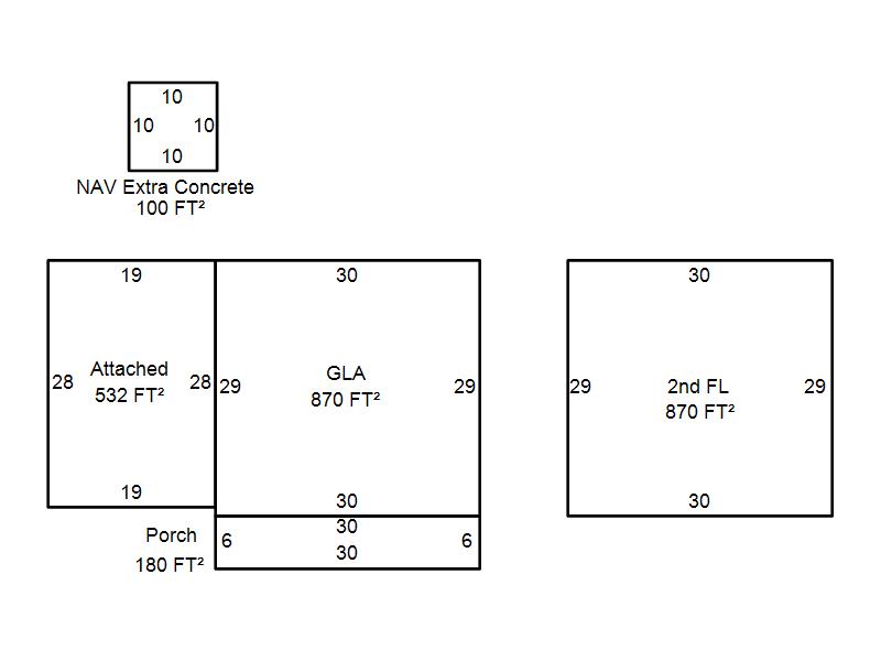
| Bldg # | Vacant/Improved Land | Bldg Description | Year Built | SqFt | # Stories | |
|
1 |
Improved |
2 Story |
1967 |
1,740 |
2 Stories |
|