|
|
|
| Larry Stein Oklahoma County Assessor (405) 713-1200 - Public Access System |
|
|
|
|
|
|
| Real Property Display - Screen Produced 3/23/2026 10:15:55 AM | ||||
|---|---|---|---|---|
| Account: R153182015 | Type: Residential | Location: |
828 FONTANA LN |
|
| Building Name/Occupant: |
|
DEL CITY |
||
| Owner Name 1: | GARCIA LUCAS ENCARNACION ROBLES |
Parcel PIN#: |
1423-15-318-2015 |
|
| Owner Name 2: | 1/4 section #: |
1423 |
||
| Owner Name 3: | Parent Acct: |
|
||
| Billing Address: | 828 FONTANA LN | Tax District: |
|
|
| City, State, Zip | DEL CITY, OK 73115-1336 | School System: |
Mid-Del #52 |
|
|
Country: (If noted) |
Land Size: |
0.1545 Acres |
||
|
Land Value: 23,212 |
|
|||
|
Sect 6-T11N-R2W Qtr SW |
DEL RANCHO 4TH ADDITION
Block
004
Lot
027
|
|||
| Full Legal Description: DEL RANCHO 4TH ADDITION 004 027 |
| Photo & Sketch (if available) | Comp Sales (ordered by relevancy) |
|
||||||||||||||||||
|
||||||||||||||||||||
| Value History (*The County Treasurer 405-713-1300 posts & collects actual tax amounts. Contact information HERE) | |||||||||||||
|---|---|---|---|---|---|---|---|---|---|---|---|---|---|
| Year | Market Value | Taxable Mkt Value | Gross Assessed | Exemption | Net Assessed | Millage | Est. Tax | Tax Savings | |||||
|
2025 |
145,500 |
145,500 |
16,005 |
0 |
16,005 |
114.72 |
$1,836 |
$0 |
|||||
|
2024 |
101,000 |
74,752 |
8,222 |
0 |
8,222 |
117.21 |
$964 |
$338 |
|||||
|
2023 |
87,500 |
71,193 |
7,830 |
0 |
7,830 |
112.46 |
$881 |
$202 |
|||||
|
2022 |
78,500 |
67,803 |
7,458 |
0 |
7,458 |
110.76 |
$826 |
$130 |
|||||
|
2021 |
67,000 |
64,575 |
7,103 |
0 |
7,103 |
114.70 |
$815 |
$31 |
|||||
| Property Account Status/Adjustments/Exemptions | ||
|---|---|---|
| Account # | Exemption Description | Amount |
|
R153182015 |
5% Capped Account |
0 |
| Property Deed Transaction History (Recorded in the County Clerk's Office) | ||||||||||
|---|---|---|---|---|---|---|---|---|---|---|
| Date | Type | Book | Page | Price | Grantor | Grantee | ||||
|
11/18/2024 |
|
Deeds |
$155,500 |
STOCKTON GREGORY J |
GARCIA LUCAS ENCARNACION ROBLES |
|||||
|
8/21/2024 |
|
Deeds |
$31,500 |
STOCKTON GREGORY J |
STOCKTON GREGORY J |
|||||
|
8/21/2024 |
|
Deeds |
$31,500 |
STANLEY JOHN L & CAROL L |
STOCKTON GREGORY J |
|||||
|
12/14/2016 |
|
Deeds |
$0 |
STANLEY JOHN LEWIS & CAROL LEA TRS STANLEY JOHN L & CAROL L |
STANLEY JOHN L & CAROL L |
|||||
|
8/18/2015 |
|
Deeds |
$0 |
STANLEY JOHN L & CAROL L |
STANLEY JOHN LEWIS & CAROL LEA TRS STANLEY JOHN L & CAROL L |
|||||
| Last Mailed Notice of Value (N.O.V.) Information/History | ||||||||
|---|---|---|---|---|---|---|---|---|
| Year | Date | Market Value | Taxable Market Value | Gross Assessed | Exemption | Net Assessed | ||
|
2025 |
01/31/2025 |
145,500 |
145,500 |
16,005 |
0 |
16,005 |
||
|
2024 |
01/22/2024 |
101,000 |
74,752 |
8,222 |
0 |
8,222 |
||
|
2023 |
01/23/2023 |
87,500 |
71,193 |
7,830 |
0 |
7,830 |
||
|
2022 |
02/22/2022 |
78,500 |
67,803 |
7,458 |
0 |
7,458 |
||
|
2021 |
02/24/2021 |
67,000 |
64,575 |
7,103 |
0 |
7,103 |
||
| Property Building Permit History | |||||||||||
|---|---|---|---|---|---|---|---|---|---|---|---|
| Issued | Permit # | Provided by | Bldg # | Description | Est Construction Cost | Status | |||||
| No Building Permit records returned. | |||||||||||
| Click button on building number to access detailed information: | ||||||
|---|---|---|---|---|---|---|
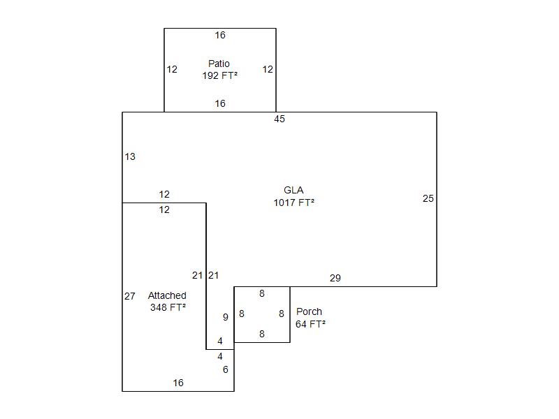
| Bldg # | Vacant/Improved Land | Bldg Description | Year Built | SqFt | # Stories | |
|
1 |
Improved |
Ranch 1 Story |
1962 |
1,017 |
1 Stories |
|