|
|
|
| Larry Stein Oklahoma County Assessor (405) 713-1200 - Public Access System |
|
|
|
|
|
|
| Real Property Display - Screen Produced 4/1/2026 5:25:37 PM | ||||
|---|---|---|---|---|
| Account: R144351035 | Type: Residential | Location: |
1916 N DAVIS AVE |
|
| Building Name/Occupant: |
|
OKLAHOMA CITY |
||
| Owner Name 1: | GALLEGOS JESSY EMANUEL |
Parcel PIN#: |
2917-14-435-1035 |
|
| Owner Name 2: | 1/4 section #: |
2917 |
||
| Owner Name 3: | Parent Acct: |
|
||
| Billing Address: | 2440 N GERALDINE AVE | Tax District: |
|
|
| City, State, Zip | OKLAHOMA CITY, OK 73107-1204 | School System: |
Putnam City #1 |
|
|
Country: (If noted) |
Land Size: |
0.3076 Acres |
||
|
Land Value: 28,810 |
|
|||
|
Sect 30-T12N-R4W Qtr NE |
GRAHAMS FAIR OAK
Block
001
Lot
003
|
|||
| Full Legal Description: GRAHAMS FAIR OAK 001 003 |
| Photo & Sketch (if available) | Comp Sales (ordered by relevancy) |
|
||||||||||||||||||
|
||||||||||||||||||||
| Value History (*The County Treasurer 405-713-1300 posts & collects actual tax amounts. Contact information HERE) | |||||||||||||
|---|---|---|---|---|---|---|---|---|---|---|---|---|---|
| Year | Market Value | Taxable Mkt Value | Gross Assessed | Exemption | Net Assessed | Millage | Est. Tax | Tax Savings | |||||
|
2026 |
164,000 |
164,000 |
18,040 |
0 |
18,040 |
123.17 |
$2,222 |
$0 |
|||||
|
2025 |
173,500 |
102,851 |
11,312 |
0 |
11,312 |
123.17 |
$1,393 |
$957 |
|||||
|
2024 |
170,500 |
97,954 |
10,774 |
0 |
10,774 |
122.30 |
$1,318 |
$976 |
|||||
|
2023 |
164,500 |
93,290 |
10,261 |
0 |
10,261 |
121.91 |
$1,251 |
$955 |
|||||
|
2022 |
148,000 |
88,848 |
9,772 |
0 |
9,772 |
123.41 |
$1,206 |
$803 |
|||||
| Property Account Status/Adjustments/Exemptions | ||||||
|---|---|---|---|---|---|---|
| Account # | Exemption Description | Amount | ||||
| No adjustment/exemption records returned. | ||||||
| Property Deed Transaction History (Recorded in the County Clerk's Office) | |||||||
|---|---|---|---|---|---|---|---|
| Date | Type | Book | Page | Price | Grantor | Grantee | |
|
4/7/2025 |
|
Deeds |
$150,000 |
SAWATZKY VIRGIL & VESTAL TRS |
GALLEGOS JESSY EMANUEL |
||
|
8/18/1995 |
|
Historical |
$0 |
SAWATZKY VIRGIL & D |
SAWATZKY VIRGIL & VESTAL TRS |
||
|
11/11/1911 |
|
Historical |
$0 |
|
SAWATZKY VIRGIL & D |
||
| Last Mailed Notice of Value (N.O.V.) Information/History | ||||||||
|---|---|---|---|---|---|---|---|---|
| Year | Date | Market Value | Taxable Market Value | Gross Assessed | Exemption | Net Assessed | ||
|
2026 |
02/23/2026 |
164,000 |
164,000 |
18,040 |
0 |
18,040 |
||
|
2025 |
02/14/2025 |
173,500 |
102,851 |
11,312 |
0 |
11,312 |
||
|
2024 |
02/13/2024 |
170,500 |
97,954 |
10,774 |
0 |
10,774 |
||
|
2023 |
02/14/2023 |
164,500 |
93,290 |
10,261 |
0 |
10,261 |
||
|
2022 |
03/15/2022 |
148,000 |
88,848 |
9,772 |
0 |
9,772 |
||
| Property Building Permit History | |||||||||||
|---|---|---|---|---|---|---|---|---|---|---|---|
| Issued | Permit # | Provided by | Bldg # | Description | Est Construction Cost | Status | |||||
| No Building Permit records returned. | |||||||||||
| Click button on building number to access detailed information: | ||||||
|---|---|---|---|---|---|---|
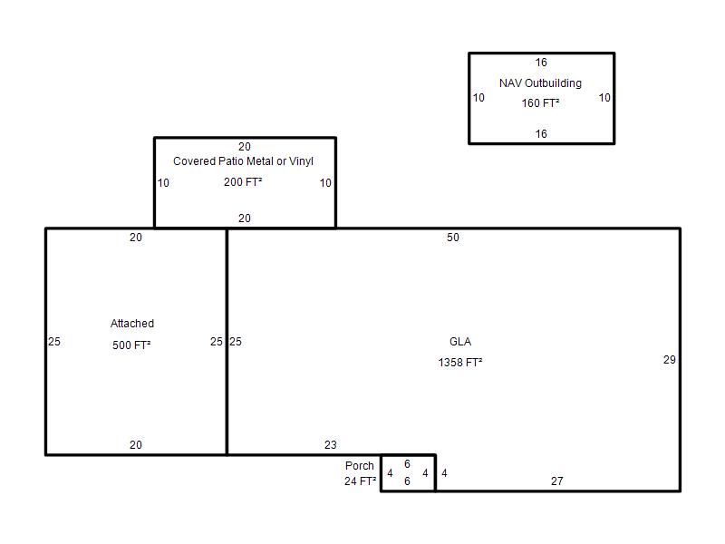
| Bldg # | Vacant/Improved Land | Bldg Description | Year Built | SqFt | # Stories | |
|
1 |
Improved |
Ranch 1 Story |
1960 |
1,358 |
1 Stories |
|