|
|
|
| Larry Stein Oklahoma County Assessor (405) 713-1200 - Public Access System |
|
|
|
|
|
|
| Real Property Display - Screen Produced 3/22/2026 12:21:13 PM | ||||
|---|---|---|---|---|
| Account: R147948750 | Type: Residential | Location: |
7924 NW 8TH ST |
|
| Building Name/Occupant: |
|
OKLAHOMA CITY |
||
| Owner Name 1: | RAPALO LUIS F MADRID |
Parcel PIN#: |
2928-14-794-8750 |
|
| Owner Name 2: | 1/4 section #: |
2928 |
||
| Owner Name 3: | Parent Acct: |
|
||
| Billing Address: | 7924 NW 8TH ST | Tax District: |
|
|
| City, State, Zip | OKLAHOMA CITY, OK 73127-5020 | School System: |
Western Heights #41 |
|
|
Country: (If noted) |
Land Size: |
0.7000 Acres |
||
|
Land Value: 69,123 |
|
|||
|
Sect 32-T12N-R4W Qtr NW |
UNPLTD PT SEC 32 12N 4W
Block
000
Lot
000
|
|||
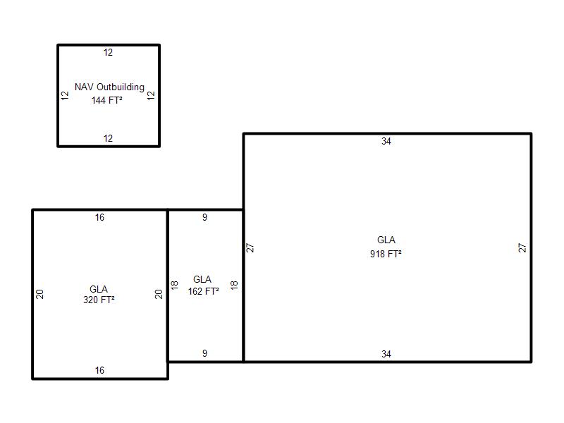
| Full Legal Description: UNPLTD PT NW4 SEC 32 12N 4W BEG 1013.57FT S & 328.74FT E OF NW/C NW4 TH E100FT S304.54FT W100FT N304.54FT TO BEG OR W100FT OF TR 14 |
| Photo & Sketch (if available) | Comp Sales (ordered by relevancy) |
|
||||||||||||||||||
|
||||||||||||||||||||
| Value History (*The County Treasurer 405-713-1300 posts & collects actual tax amounts. Contact information HERE) | |||||||||||||
|---|---|---|---|---|---|---|---|---|---|---|---|---|---|
| Year | Market Value | Taxable Mkt Value | Gross Assessed | Exemption | Net Assessed | Millage | Est. Tax | Tax Savings | |||||
|
2025 |
190,000 |
190,000 |
20,900 |
0 |
20,900 |
118.35 |
$2,474 |
$0 |
|||||
|
2024 |
131,000 |
131,000 |
14,410 |
0 |
14,410 |
118.83 |
$1,712 |
$0 |
|||||
|
2023 |
121,500 |
92,030 |
10,123 |
0 |
10,123 |
116.69 |
$1,181 |
$378 |
|||||
|
2022 |
106,500 |
87,648 |
9,641 |
0 |
9,641 |
118.05 |
$1,138 |
$245 |
|||||
|
2021 |
88,500 |
83,475 |
9,182 |
0 |
9,182 |
121.12 |
$1,112 |
$67 |
|||||
| Property Account Status/Adjustments/Exemptions | ||
|---|---|---|
| Account # | Exemption Description | Amount |
|
R147948750 |
5% Capped Account |
0 |
| Property Deed Transaction History (Recorded in the County Clerk's Office) | ||||||||||
|---|---|---|---|---|---|---|---|---|---|---|
| Date | Type | Book | Page | Price | Grantor | Grantee | ||||
|
11/1/2024 |
|
Deeds |
$220,000 |
CHAJ LLC |
RAPALO LUIS F MADRID |
|||||
|
6/15/2023 |
|
Deeds |
$145,000 |
STEVEN & JILL HOMES LLC |
CHAJ LLC |
|||||
|
5/25/2023 |
|
Deeds |
$75,000 |
DUGGER DONNA LYNN |
STEVEN & JILL HOMES LLC |
|||||
|
10/27/2006 |
|
Deeds |
$0 |
AFFIDAVIT OF SURVIVING JOINT TENANT |
LUCAS MILDRED |
|||||
|
10/27/2006 |
|
Deeds |
$62,500 |
LUCAS MILDRED |
DUGGER DONNA LYNN |
|||||
| Last Mailed Notice of Value (N.O.V.) Information/History | ||||||||
|---|---|---|---|---|---|---|---|---|
| Year | Date | Market Value | Taxable Market Value | Gross Assessed | Exemption | Net Assessed | ||
|
2026 |
02/23/2026 |
195,500 |
195,500 |
21,505 |
0 |
21,505 |
||
|
2025 |
02/14/2025 |
190,000 |
190,000 |
20,900 |
0 |
20,900 |
||
|
2024 |
02/13/2024 |
131,000 |
131,000 |
14,410 |
0 |
14,410 |
||
|
2023 |
02/14/2023 |
121,500 |
92,030 |
10,123 |
0 |
10,123 |
||
|
2022 |
03/15/2022 |
106,500 |
87,648 |
9,641 |
0 |
9,641 |
||
| Property Building Permit History | |||||||||||
|---|---|---|---|---|---|---|---|---|---|---|---|
| Issued | Permit # | Provided by | Bldg # | Description | Est Construction Cost | Status | |||||
| No Building Permit records returned. | |||||||||||
| Click button on building number to access detailed information: | ||||||
|---|---|---|---|---|---|---|
| Bldg # | Vacant/Improved Land | Bldg Description | Year Built | SqFt | # Stories | |
|
1 |
Improved |
Ranch 1 Story |
1956 |
1,400 |
1 Stories |
|