|
|
|
| Larry Stein Oklahoma County Assessor (405) 713-1200 - Public Access System |
|
|
|
|
|
|
| Real Property Display - Screen Produced 3/23/2026 10:19:51 AM | ||||
|---|---|---|---|---|
| Account: R153561800 | Type: Residential | Location: |
3317 DEL RANCHO DR |
|
| Building Name/Occupant: |
|
DEL CITY |
||
| Owner Name 1: | CASA DEL RANCHO LLC |
Parcel PIN#: |
1423-15-356-1800 |
|
| Owner Name 2: | 1/4 section #: |
1423 |
||
| Owner Name 3: | Parent Acct: |
|
||
| Billing Address: | 4917 NW 23RD ST, Unit C | Tax District: |
|
|
| City, State, Zip | OKLAHOMA CITY, OK 73127 | School System: |
Mid-Del #52 |
|
|
Country: (If noted) |
Land Size: |
0.1530 Acres |
||
|
Land Value: 19,992 |
|
|||
|
Sect 6-T11N-R2W Qtr SW |
DEL RANCHO
Block
007
Lot
006
|
|||
| Full Legal Description: DEL RANCHO 007 006 |
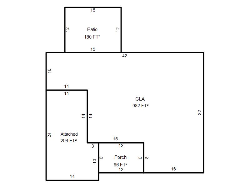
| Photo & Sketch (if available) | Comp Sales (ordered by relevancy) |
|
||||||||||||||||||
|
||||||||||||||||||||
| Value History (*The County Treasurer 405-713-1300 posts & collects actual tax amounts. Contact information HERE) | |||||||||||||
|---|---|---|---|---|---|---|---|---|---|---|---|---|---|
| Year | Market Value | Taxable Mkt Value | Gross Assessed | Exemption | Net Assessed | Millage | Est. Tax | Tax Savings | |||||
|
2025 |
103,000 |
88,200 |
9,702 |
0 |
9,702 |
114.72 |
$1,113 |
$187 |
|||||
|
2024 |
90,000 |
84,000 |
9,240 |
0 |
9,240 |
117.21 |
$1,083 |
$77 |
|||||
|
2023 |
80,000 |
80,000 |
8,800 |
0 |
8,800 |
112.46 |
$990 |
$0 |
|||||
|
2022 |
72,500 |
58,879 |
6,476 |
1,000 |
5,476 |
110.76 |
$607 |
$277 |
|||||
|
2021 |
59,000 |
57,165 |
6,288 |
1,000 |
5,288 |
114.70 |
$607 |
$138 |
|||||
| Property Account Status/Adjustments/Exemptions | ||
|---|---|---|
| Account # | Exemption Description | Amount |
|
R153561800 |
5% Capped Account |
0 |
| Property Deed Transaction History (Recorded in the County Clerk's Office) | |||||||
|---|---|---|---|---|---|---|---|
| Date | Type | Book | Page | Price | Grantor | Grantee | |
|
10/3/2024 |
|
Hmstd Off & |
$0 |
CV RENTALS LLC |
CASA DEL RANCHO LLC |
||
|
8/15/2022 |
|
Deeds |
$82,500 |
HUNT LINDA K |
CV RENTALS LLC |
||
|
1/10/2017 |
|
Deeds |
$0 |
HUNT RONALD L & LINDA K |
HUNT LINDA K |
||
|
1/10/2017 |
|
Deeds |
$0 |
HUNT LINDA K |
HUNT LINDA K |
||
|
11/11/1911 |
|
Historical |
$0 |
|
HUNT RONALD L & LINDA K |
||
| Last Mailed Notice of Value (N.O.V.) Information/History | ||||||||
|---|---|---|---|---|---|---|---|---|
| Year | Date | Market Value | Taxable Market Value | Gross Assessed | Exemption | Net Assessed | ||
|
2026 |
02/06/2026 |
100,500 |
92,610 |
10,187 |
0 |
10,187 |
||
|
2025 |
01/31/2025 |
103,000 |
88,200 |
9,702 |
0 |
9,702 |
||
|
2024 |
01/22/2024 |
90,000 |
84,000 |
9,240 |
0 |
9,240 |
||
|
2023 |
01/23/2023 |
80,000 |
80,000 |
8,800 |
0 |
8,800 |
||
|
2022 |
02/22/2022 |
72,500 |
58,879 |
6,476 |
1,000 |
5,476 |
||
| Property Building Permit History | |||||||||||
|---|---|---|---|---|---|---|---|---|---|---|---|
| Issued | Permit # | Provided by | Bldg # | Description | Est Construction Cost | Status | |||||
| No Building Permit records returned. | |||||||||||
| Click button on building number to access detailed information: | ||||||
|---|---|---|---|---|---|---|
| Bldg # | Vacant/Improved Land | Bldg Description | Year Built | SqFt | # Stories | |
|
1 |
Improved |
Ranch 1 Story |
1961 |
982 |
1 Stories |
|