|
|
|
| Larry Stein Oklahoma County Assessor (405) 713-1200 - Public Access System |
|
|
|
|
|
|
| Real Property Display - Screen Produced 4/2/2026 2:20:23 PM | ||||
|---|---|---|---|---|
| Account: R185883095 | Type: Residential | Location: |
20100 NE 164TH ST |
|
| Building Name/Occupant: |
|
LUTHER |
||
| Owner Name 1: | FRIZZELL WILLIAM D |
Parcel PIN#: |
3008-18-588-3095 |
|
| Owner Name 2: | 1/4 section #: |
3008 |
||
| Owner Name 3: | Parent Acct: |
3008-18-588-3090 |
||
| Billing Address: | 20100 NE 164TH ST | Tax District: |
|
|
| City, State, Zip | LUTHER, OK 73054-8823 | School System: |
Luther #3 |
|
|
Country: (If noted) |
Land Size: |
5.0000 Acres |
||
|
Land Value: 72,471 |
|
|||
|
Sect 2-T13N-R1E Qtr NW |
UNPLTD PT SEC 02 13N 1E
Block
000
Lot
000
|
|||
| Full Legal Description: UNPLTD PT SEC 02 13N 1E 000 000 PT NW4 SEC 2 13N 1E BEG 330FT E OF NW/C NW4 TH E330FT S660FT W330FT N660FT TO BEG CONT 5ACRS MORE OR LESS SUBJ TO ESMTS OF RECORD |
| Photo & Sketch (if available) | Comp Sales (ordered by relevancy) |
|
||||||||||||||||||
|
||||||||||||||||||||
| Value History (*The County Treasurer 405-713-1300 posts & collects actual tax amounts. Contact information HERE) | |||||||||||||
|---|---|---|---|---|---|---|---|---|---|---|---|---|---|
| Year | Market Value | Taxable Mkt Value | Gross Assessed | Exemption | Net Assessed | Millage | Est. Tax | Tax Savings | |||||
|
2026 |
540,000 |
532,507 |
58,575 |
0 |
58,575 |
94.80 |
$5,553 |
$78 |
|||||
|
2025 |
509,000 |
507,150 |
55,786 |
0 |
55,786 |
94.80 |
$5,289 |
$19 |
|||||
|
2024 |
483,000 |
483,000 |
53,130 |
0 |
53,130 |
95.02 |
$5,048 |
$0 |
|||||
|
2023 |
418,500 |
418,500 |
46,035 |
1,000 |
45,035 |
90.96 |
$4,096 |
$91 |
|||||
|
2022 |
408,500 |
408,500 |
44,935 |
0 |
44,935 |
91.07 |
$4,092 |
$0 |
|||||
| Property Account Status/Adjustments/Exemptions | ||
|---|---|---|
| Account # | Exemption Description | Amount |
|
R185883095 |
5% Capped Account |
0 |
| Property Deed Transaction History (Recorded in the County Clerk's Office) | ||||||||||
|---|---|---|---|---|---|---|---|---|---|---|
| Date | Type | Book | Page | Price | Grantor | Grantee | ||||
|
12/5/2025 |
|
Hmstd Off & |
$0 |
FRIZZELL ELIZABETH K |
FRIZZELL WILLIAM D |
|||||
|
1/25/2023 |
|
Deeds |
$510,000 |
MCKINNEY JAMES B III |
FRIZZELL ELIZABETH K |
|||||
|
7/7/2021 |
|
Deeds |
$430,000 |
WOLFE CELESTE H TRS |
MCKINNEY JAMES B III |
|||||
|
3/12/2020 |
|
Deeds |
$0 |
WOLFE STEVEN D & CELESTE H |
WOLFE CELESTE H |
|||||
|
3/12/2020 |
|
Deeds |
$0 |
WOLFE CELESTE H |
WOLFE CELESTE H TRS |
|||||
| Last Mailed Notice of Value (N.O.V.) Information/History | ||||||||
|---|---|---|---|---|---|---|---|---|
| Year | Date | Market Value | Taxable Market Value | Gross Assessed | Exemption | Net Assessed | ||
|
2026 |
02/06/2026 |
540,000 |
532,507 |
58,575 |
0 |
58,575 |
||
|
2025 |
01/31/2025 |
509,000 |
507,150 |
55,786 |
0 |
55,786 |
||
|
2024 |
01/22/2024 |
483,000 |
483,000 |
53,130 |
0 |
53,130 |
||
|
2023 |
01/23/2023 |
418,500 |
418,500 |
46,035 |
1,000 |
45,035 |
||
|
2023 |
03/02/2023 |
418,500 |
418,500 |
46,035 |
1,000 |
45,035 |
||
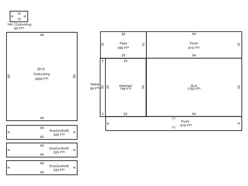
| Property Building Permit History | ||||||
|---|---|---|---|---|---|---|
| Issued | Permit # | Provided by | Bldg # | Description | Est Construction Cost | Status |
|
7/17/2018 |
|
|
1 |
Main Dwellin |
160,000 |
Inactive |
|
7/17/2018 |
|
|
1 |
Storage Buil |
25,000 |
Inactive |
| Click button on building number to access detailed information: | ||||||
|---|---|---|---|---|---|---|
| Bldg # | Vacant/Improved Land | Bldg Description | Year Built | SqFt | # Stories | |
|
1 |
Improved |
Ranch 1 Story |
2019 |
1,782 |
1 Stories |
|