|
|
|
| Larry Stein Oklahoma County Assessor (405) 713-1200 - Public Access System |
|
|
|
|
|
|
| Real Property Display - Screen Produced 3/22/2026 12:20:46 PM | ||||
|---|---|---|---|---|
| Account: R151320435 | Type: Residential | Location: |
3808 SE 15TH ST |
|
| Building Name/Occupant: |
|
DEL CITY |
||
| Owner Name 1: | NGUYEN UYEN |
Parcel PIN#: |
1425-15-132-0435 |
|
| Owner Name 2: | NGUYEN PHUONG | 1/4 section #: |
1425 |
|
| Owner Name 3: | Parent Acct: |
|
||
| Billing Address: | 3808 SE 15TH ST | Tax District: |
|
|
| City, State, Zip | DEL CITY, OK 73115-2238 | School System: |
Mid-Del #52 |
|
|
Country: (If noted) |
Land Size: |
0.1970 Acres |
||
|
Land Value: 15,873 |
|
|||
|
Sect 7-T11N-R2W Qtr NE |
CARTER PARK SUB ADD
Block
003
Lot
003
|
|||
| Full Legal Description: CARTER PARK SUB ADD 003 003 |
| Photo & Sketch (if available) | Comp Sales (ordered by relevancy) |
|
||||||||||||||||||
|
||||||||||||||||||||
| Value History (*The County Treasurer 405-713-1300 posts & collects actual tax amounts. Contact information HERE) | |||||||||||||
|---|---|---|---|---|---|---|---|---|---|---|---|---|---|
| Year | Market Value | Taxable Mkt Value | Gross Assessed | Exemption | Net Assessed | Millage | Est. Tax | Tax Savings | |||||
|
2025 |
88,500 |
78,750 |
8,662 |
0 |
8,662 |
114.72 |
$994 |
$123 |
|||||
|
2024 |
75,000 |
75,000 |
8,250 |
0 |
8,250 |
117.21 |
$967 |
$0 |
|||||
|
2023 |
64,500 |
45,725 |
5,029 |
0 |
5,029 |
112.46 |
$566 |
$232 |
|||||
|
2022 |
58,000 |
43,548 |
4,790 |
0 |
4,790 |
110.76 |
$531 |
$176 |
|||||
|
2021 |
44,500 |
41,475 |
4,562 |
0 |
4,562 |
114.70 |
$523 |
$38 |
|||||
| Property Account Status/Adjustments/Exemptions | ||
|---|---|---|
| Account # | Exemption Description | Amount |
|
R151320435 |
5% Capped Account |
0 |
| Property Deed Transaction History (Recorded in the County Clerk's Office) | |||||||
|---|---|---|---|---|---|---|---|
| Date | Type | Book | Page | Price | Grantor | Grantee | |
|
12/6/2023 |
|
Deeds |
$86,000 |
EMERALD CAPITAL GROUP LLC |
NGUYEN UYEN |
||
|
7/31/2017 |
|
Deeds |
$17,000 |
US BANK NATIONAL ASSOCIATION AS TRS |
EMERALD CAPITAL GROUP LLC |
||
|
3/8/2017 |
|
Hmstd Off & |
$0 |
LILES JOSEPH M JR |
US BANK NATIONAL ASSOCIATION AS TRS |
||
|
6/11/2004 |
|
Deeds |
$35,000 |
MOYDELL C E & R |
LILES JOSEPH M JR |
||
|
11/11/1911 |
|
Historical |
$0 |
|
MOYDELL C E & R |
||
| Last Mailed Notice of Value (N.O.V.) Information/History | ||||||||
|---|---|---|---|---|---|---|---|---|
| Year | Date | Market Value | Taxable Market Value | Gross Assessed | Exemption | Net Assessed | ||
|
2026 |
02/06/2026 |
87,500 |
82,687 |
9,095 |
0 |
9,095 |
||
|
2025 |
01/31/2025 |
88,500 |
78,750 |
8,662 |
0 |
8,662 |
||
|
2024 |
01/22/2024 |
75,000 |
75,000 |
8,250 |
0 |
8,250 |
||
|
2023 |
01/23/2023 |
64,500 |
45,725 |
5,029 |
0 |
5,029 |
||
|
2022 |
02/22/2022 |
58,000 |
43,548 |
4,790 |
0 |
4,790 |
||
| Property Building Permit History | |||||||||||
|---|---|---|---|---|---|---|---|---|---|---|---|
| Issued | Permit # | Provided by | Bldg # | Description | Est Construction Cost | Status | |||||
| No Building Permit records returned. | |||||||||||
| Click button on building number to access detailed information: | ||||||
|---|---|---|---|---|---|---|
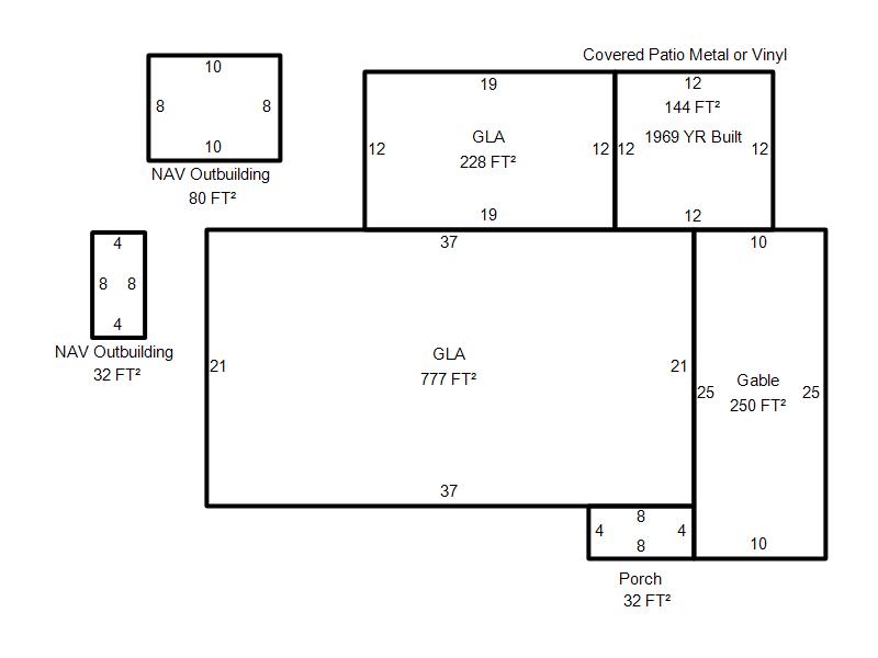
| Bldg # | Vacant/Improved Land | Bldg Description | Year Built | SqFt | # Stories | |
|
1 |
Improved |
Ranch 1 Story |
1950 |
1,005 |
1 Stories |
|