|
|
|
| Larry Stein Oklahoma County Assessor (405) 713-1200 - Public Access System |
|
|
|
|
|
|
| Real Property Display - Screen Produced 3/22/2026 12:20:46 PM | ||||
|---|---|---|---|---|
| Account: R151320585 | Type: Residential | Location: |
1717 CHERRY LN |
|
| Building Name/Occupant: |
|
DEL CITY |
||
| Owner Name 1: | RAGSDALE CHASE |
Parcel PIN#: |
1425-15-132-0585 |
|
| Owner Name 2: | RAGSDALE KAITLYNN | 1/4 section #: |
1425 |
|
| Owner Name 3: | Parent Acct: |
|
||
| Billing Address: | 1717 CHERRY LN | Tax District: |
|
|
| City, State, Zip | DEL CITY, OK 73115 | School System: |
Mid-Del #52 |
|
|
Country: (If noted) |
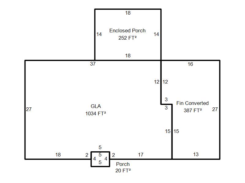
Land Size: |
0.3848 Acres |
||
|
Land Value: 27,912 |
|
|||
|
Sect 7-T11N-R2W Qtr NE |
CARTER PARK SUB ADD
Block
004
Lot
006
|
|||
| Full Legal Description: CARTER PARK SUB ADD 004 006 |
| Photo & Sketch (if available) | Comp Sales (ordered by relevancy) |
|
||||||||||||||||||
|
||||||||||||||||||||
| Value History (*The County Treasurer 405-713-1300 posts & collects actual tax amounts. Contact information HERE) | |||||||||||||
|---|---|---|---|---|---|---|---|---|---|---|---|---|---|
| Year | Market Value | Taxable Mkt Value | Gross Assessed | Exemption | Net Assessed | Millage | Est. Tax | Tax Savings | |||||
|
2025 |
166,500 |
154,500 |
16,995 |
1,000 |
15,995 |
114.72 |
$1,835 |
$266 |
|||||
|
2024 |
150,000 |
150,000 |
16,500 |
1,000 |
15,500 |
117.21 |
$1,817 |
$117 |
|||||
|
2023 |
151,000 |
151,000 |
16,610 |
1,000 |
15,610 |
112.46 |
$1,756 |
$112 |
|||||
|
2022 |
97,500 |
80,482 |
8,852 |
0 |
8,852 |
110.76 |
$981 |
$207 |
|||||
|
2021 |
80,500 |
76,650 |
8,431 |
0 |
8,431 |
114.70 |
$967 |
$49 |
|||||
| Property Account Status/Adjustments/Exemptions | ||
|---|---|---|
| Account # | Exemption Description | Amount |
|
R151320585 |
3% Cap Homestead |
0 |
|
R151320585 |
Homestead |
1,000 |
| Property Deed Transaction History (Recorded in the County Clerk's Office) | ||||||||||
|---|---|---|---|---|---|---|---|---|---|---|
| Date | Type | Book | Page | Price | Grantor | Grantee | ||||
|
7/27/2022 |
|
Deeds |
$150,000 |
ALDRIDGE PRODUCTION LLC |
RAGSDALE CHASE |
|||||
|
3/29/2019 |
|
Hmstd Off & |
$0 |
ALDRIDGE KEVIN |
ALDRIDGE PRODUCTION LLC |
|||||
|
2/13/2019 |
|
Deeds |
$70,000 |
MAPLE TREE LLC |
ALDRIDGE KEVIN |
|||||
|
3/26/2014 |
|
Deeds |
$37,000 |
WOJCAK LAVERNE J |
MAPLE TREE LLC |
|||||
|
9/16/1997 |
|
Historical |
$0 |
WOJCAK VINCENT & L J |
WOJCAK LAVERNE J |
|||||
| Last Mailed Notice of Value (N.O.V.) Information/History | ||||||||
|---|---|---|---|---|---|---|---|---|
| Year | Date | Market Value | Taxable Market Value | Gross Assessed | Exemption | Net Assessed | ||
|
2026 |
02/06/2026 |
165,000 |
159,135 |
17,504 |
1,000 |
16,504 |
||
|
2025 |
01/31/2025 |
166,500 |
154,500 |
16,995 |
1,000 |
15,995 |
||
|
2023 |
01/23/2023 |
151,000 |
151,000 |
16,610 |
0 |
16,610 |
||
|
2022 |
02/22/2022 |
97,500 |
80,482 |
8,852 |
0 |
8,852 |
||
|
2021 |
02/24/2021 |
80,500 |
76,650 |
8,431 |
0 |
8,431 |
||
| Property Building Permit History | |||||||||||
|---|---|---|---|---|---|---|---|---|---|---|---|
| Issued | Permit # | Provided by | Bldg # | Description | Est Construction Cost | Status | |||||
| No Building Permit records returned. | |||||||||||
| Click button on building number to access detailed information: | ||||||
|---|---|---|---|---|---|---|
| Bldg # | Vacant/Improved Land | Bldg Description | Year Built | SqFt | # Stories | |
|
1 |
Improved |
Ranch 1 Story |
1959 |
1,034 |
1 Stories |
|