|
|
|
| Larry Stein Oklahoma County Assessor (405) 713-1200 - Public Access System |
|
|
|
|
|
|
| Real Property Display - Screen Produced 3/22/2026 1:59:10 PM | ||||
|---|---|---|---|---|
| Account: R151320945 | Type: Residential | Location: |
3620 FIRETHORN DR |
|
| Building Name/Occupant: |
|
DEL CITY |
||
| Owner Name 1: | ESPINOLA AUGUST |
Parcel PIN#: |
1425-15-132-0945 |
|
| Owner Name 2: | CORNELL LOUIS RAY | 1/4 section #: |
1425 |
|
| Owner Name 3: | Parent Acct: |
|
||
| Billing Address: | 3620 FIRETHORN DR | Tax District: |
|
|
| City, State, Zip | DEL CITY, OK 73115 | School System: |
Mid-Del #52 |
|
|
Country: (If noted) |
Land Size: |
0.1970 Acres |
||
|
Land Value: 15,873 |
|
|||
|
Sect 7-T11N-R2W Qtr NE |
CARTER PARK SUB ADD
Block
007
Lot
009
|
|||
| Full Legal Description: CARTER PARK SUB ADD 007 009 |
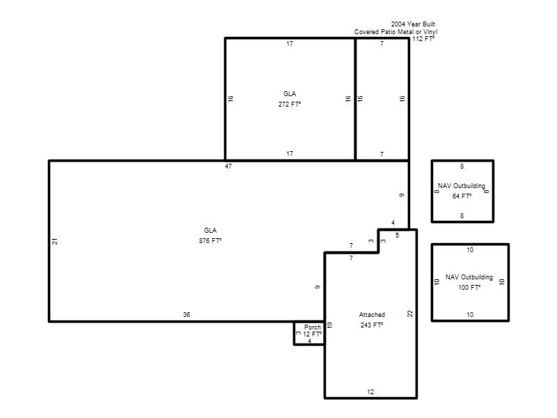
| Photo & Sketch (if available) | Comp Sales (ordered by relevancy) |
|
||||||||||||||||||
|
||||||||||||||||||||
| Value History (*The County Treasurer 405-713-1300 posts & collects actual tax amounts. Contact information HERE) | |||||||||||||
|---|---|---|---|---|---|---|---|---|---|---|---|---|---|
| Year | Market Value | Taxable Mkt Value | Gross Assessed | Exemption | Net Assessed | Millage | Est. Tax | Tax Savings | |||||
|
2025 |
109,500 |
104,475 |
11,492 |
0 |
11,492 |
114.72 |
$1,318 |
$63 |
|||||
|
2024 |
99,500 |
99,500 |
10,945 |
0 |
10,945 |
117.21 |
$1,283 |
$0 |
|||||
|
2023 |
70,000 |
36,935 |
4,062 |
0 |
4,062 |
112.46 |
$457 |
$409 |
|||||
|
2022 |
63,500 |
35,177 |
3,869 |
2,000 |
1,869 |
110.76 |
$207 |
$567 |
|||||
|
2021 |
49,000 |
35,177 |
3,869 |
2,000 |
1,869 |
114.70 |
$214 |
$404 |
|||||
| Property Account Status/Adjustments/Exemptions | ||
|---|---|---|
| Account # | Exemption Description | Amount |
|
R151320945 |
5% Capped Account |
0 |
| Property Deed Transaction History (Recorded in the County Clerk's Office) | |||||||
|---|---|---|---|---|---|---|---|
| Date | Type | Book | Page | Price | Grantor | Grantee | |
|
2/17/2023 |
|
Deeds |
$140,000 |
ROWAN JOANN |
ESPINOLA AUGUST |
||
|
6/27/1994 |
|
Historical |
$0 |
ROWAN DANNY F & JO ANN |
ROWAN JOANN |
||
|
8/1/1976 |
|
Historical |
$0 |
|
ROWAN DANNY F & JO ANN |
||
| Last Mailed Notice of Value (N.O.V.) Information/History | ||||||||
|---|---|---|---|---|---|---|---|---|
| Year | Date | Market Value | Taxable Market Value | Gross Assessed | Exemption | Net Assessed | ||
|
2026 |
02/06/2026 |
108,500 |
108,500 |
11,935 |
0 |
11,935 |
||
|
2025 |
01/31/2025 |
109,500 |
104,475 |
11,492 |
0 |
11,492 |
||
|
2024 |
01/22/2024 |
99,500 |
99,500 |
10,945 |
0 |
10,945 |
||
|
2023 |
01/23/2023 |
70,000 |
35,177 |
3,869 |
2,000 |
1,869 |
||
|
2022 |
02/22/2022 |
63,500 |
35,177 |
3,869 |
2,000 |
1,869 |
||
| Property Building Permit History | |||||||||||
|---|---|---|---|---|---|---|---|---|---|---|---|
| Issued | Permit # | Provided by | Bldg # | Description | Est Construction Cost | Status | |||||
| No Building Permit records returned. | |||||||||||
| Click button on building number to access detailed information: | ||||||
|---|---|---|---|---|---|---|
| Bldg # | Vacant/Improved Land | Bldg Description | Year Built | SqFt | # Stories | |
|
1 |
Improved |
Ranch 1 Story |
1939 |
1,148 |
1 Stories |
|