|
|
|
| Larry Stein Oklahoma County Assessor (405) 713-1200 - Public Access System |
|
|
|
|
|
|
| Real Property Display - Screen Produced 4/4/2026 7:18:18 PM | ||||
|---|---|---|---|---|
| Account: R182441775 | Type: Residential | Location: |
2017 EDGEWOOD DR |
|
| Building Name/Occupant: |
|
EDMOND |
||
| Owner Name 1: | VAN OSDOL RAGAN |
Parcel PIN#: |
3604-18-244-1775 |
|
| Owner Name 2: | 1/4 section #: |
3604 |
||
| Owner Name 3: | Parent Acct: |
|
||
| Billing Address: | 2017 EDGEWOOD DR | Tax District: |
|
|
| City, State, Zip | EDMOND, OK 73013-5168 | School System: |
Edmond #12 |
|
|
Country: (If noted) |
Land Size: |
0.3146 Acres |
||
|
Land Value: 30,144 |
|
|||
|
Sect 1-T13N-R3W Qtr NW |
HENDERSON HILLS 6TH
Block
022
Lot
010
|
|||
| Full Legal Description: HENDERSON HILLS 6TH 022 010 |
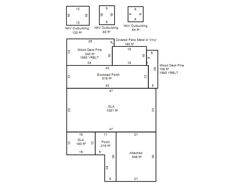
| Photo & Sketch (if available) | Comp Sales (ordered by relevancy) |
|
||||||||||||||||||
|
||||||||||||||||||||
| Value History (*The County Treasurer 405-713-1300 posts & collects actual tax amounts. Contact information HERE) | |||||||||||||
|---|---|---|---|---|---|---|---|---|---|---|---|---|---|
| Year | Market Value | Taxable Mkt Value | Gross Assessed | Exemption | Net Assessed | Millage | Est. Tax | Tax Savings | |||||
|
2026 |
218,000 |
218,000 |
23,980 |
0 |
23,980 |
105.16 |
$2,522 |
$0 |
|||||
|
2025 |
215,500 |
172,541 |
18,978 |
0 |
18,978 |
105.16 |
$1,996 |
$497 |
|||||
|
2024 |
210,000 |
164,325 |
18,075 |
0 |
18,075 |
105.03 |
$1,898 |
$528 |
|||||
|
2023 |
201,000 |
156,500 |
17,214 |
1,000 |
16,214 |
104.24 |
$1,690 |
$614 |
|||||
|
2022 |
171,500 |
151,942 |
16,712 |
1,000 |
15,712 |
104.64 |
$1,644 |
$330 |
|||||
| Property Account Status/Adjustments/Exemptions | ||||||
|---|---|---|---|---|---|---|
| Account # | Exemption Description | Amount | ||||
| No adjustment/exemption records returned. | ||||||
| Property Deed Transaction History (Recorded in the County Clerk's Office) | |||||||
|---|---|---|---|---|---|---|---|
| Date | Type | Book | Page | Price | Grantor | Grantee | |
|
5/19/2025 |
|
Deeds |
$188,000 |
VAN OSDOL CHRIS |
VAN OSDOL RAGAN |
||
|
5/13/2025 |
|
Hmstd Off & |
$0 |
VAN OSDOL REV TRUST |
VAN OSDOL CHRIS |
||
|
10/25/1996 |
|
Historical |
$0 |
VANOSDOL WM R & B D |
VAN OSDOL REV TRUST |
||
|
11/11/1911 |
|
Historical |
$0 |
|
VANOSDOL WM R & B D |
||
| Last Mailed Notice of Value (N.O.V.) Information/History | ||||||||
|---|---|---|---|---|---|---|---|---|
| Year | Date | Market Value | Taxable Market Value | Gross Assessed | Exemption | Net Assessed | ||
|
2026 |
02/23/2026 |
218,000 |
218,000 |
23,980 |
0 |
23,980 |
||
|
2025 |
02/14/2025 |
215,500 |
172,541 |
18,978 |
0 |
18,978 |
||
|
2024 |
02/13/2024 |
210,000 |
161,195 |
17,731 |
1,000 |
16,731 |
||
|
2024 |
04/05/2024 |
210,000 |
164,325 |
18,075 |
0 |
18,075 |
||
|
2023 |
02/14/2023 |
201,000 |
156,500 |
17,214 |
1,000 |
16,214 |
||
| Property Building Permit History | |||||||||||
|---|---|---|---|---|---|---|---|---|---|---|---|
| Issued | Permit # | Provided by | Bldg # | Description | Est Construction Cost | Status | |||||
| No Building Permit records returned. | |||||||||||
| Click button on building number to access detailed information: | ||||||
|---|---|---|---|---|---|---|
| Bldg # | Vacant/Improved Land | Bldg Description | Year Built | SqFt | # Stories | |
|
1 |
Improved |
Ranch 1 Story |
1963 |
1,261 |
1 Stories |
|