|
|
|
| Larry Stein Oklahoma County Assessor (405) 713-1200 - Public Access System |
|
|
|
|
|
|
| Real Property Display - Screen Produced 3/31/2026 11:57:21 PM | ||||
|---|---|---|---|---|
| Account: R122112230 | Type: Residential | Location: |
1817 WOODSIDE DR |
|
| Building Name/Occupant: |
|
EDMOND |
||
| Owner Name 1: | VANDIVER MITCHELL |
Parcel PIN#: |
3612-12-211-2230 |
|
| Owner Name 2: | 1/4 section #: |
3612 |
||
| Owner Name 3: | Parent Acct: |
|
||
| Billing Address: | 1817 WOODSIDE DR | Tax District: |
|
|
| City, State, Zip | EDMOND, OK 73013-2737 | School System: |
Edmond #12 |
|
|
Country: (If noted) |
Land Size: |
0.2865 Acres |
||
|
Land Value: 49,982 |
|
|||
|
Sect 3-T13N-R3W Qtr NW |
RIPPLE CREEK 2ND
Block
011
Lot
025
|
|||
| Full Legal Description: RIPPLE CREEK 2ND 011 025 |
| Photo & Sketch (if available) | Comp Sales (ordered by relevancy) |
|
||||||||||||||||||
|
||||||||||||||||||||
| Value History (*The County Treasurer 405-713-1300 posts & collects actual tax amounts. Contact information HERE) | |||||||||||||
|---|---|---|---|---|---|---|---|---|---|---|---|---|---|
| Year | Market Value | Taxable Mkt Value | Gross Assessed | Exemption | Net Assessed | Millage | Est. Tax | Tax Savings | |||||
|
2026 |
274,000 |
274,000 |
30,140 |
0 |
30,140 |
105.16 |
$3,170 |
$0 |
|||||
|
2025 |
268,500 |
221,221 |
24,333 |
0 |
24,333 |
105.16 |
$2,559 |
$547 |
|||||
|
2024 |
263,500 |
210,687 |
23,175 |
0 |
23,175 |
105.03 |
$2,434 |
$610 |
|||||
|
2023 |
245,000 |
200,655 |
22,072 |
0 |
22,072 |
104.24 |
$2,301 |
$508 |
|||||
|
2022 |
210,500 |
191,100 |
21,021 |
0 |
21,021 |
104.64 |
$2,200 |
$223 |
|||||
| Property Account Status/Adjustments/Exemptions | ||||||
|---|---|---|---|---|---|---|
| Account # | Exemption Description | Amount | ||||
| No adjustment/exemption records returned. | ||||||
| Property Deed Transaction History (Recorded in the County Clerk's Office) | |||||||
|---|---|---|---|---|---|---|---|
| Date | Type | Book | Page | Price | Grantor | Grantee | |
|
4/29/2025 |
|
Deeds |
$270,000 |
CLOUSE NORMAN L & CAROLYN CO TRS |
VANDIVER MITCHELL |
||
|
8/31/2011 |
|
Deeds |
$0 |
DROSCHE CAROLYN FAYE |
CLOUSE NORMAN L & CAROLYN CO TRS |
||
|
6/19/1989 |
|
Historical |
$73,000 |
MUTUAL FEDERAL SAVINGS |
DROSCHE CAROLYN FAYE |
||
|
12/2/1987 |
|
Historical |
$0 |
JONES ROY S & DEBRA A |
MUTUAL FEDERAL SAVINGS |
||
|
12/1/1983 |
|
Historical |
$0 |
|
JONES ROY S & DEBRA A |
||
| Last Mailed Notice of Value (N.O.V.) Information/History | ||||||||
|---|---|---|---|---|---|---|---|---|
| Year | Date | Market Value | Taxable Market Value | Gross Assessed | Exemption | Net Assessed | ||
|
2026 |
02/23/2026 |
274,000 |
274,000 |
30,140 |
0 |
30,140 |
||
|
2025 |
02/14/2025 |
268,500 |
221,221 |
24,333 |
0 |
24,333 |
||
|
2024 |
02/13/2024 |
263,500 |
210,687 |
23,175 |
0 |
23,175 |
||
|
2023 |
02/14/2023 |
245,000 |
200,655 |
22,072 |
0 |
22,072 |
||
|
2022 |
03/15/2022 |
210,500 |
191,100 |
21,021 |
0 |
21,021 |
||
| Property Building Permit History | |||||||||||
|---|---|---|---|---|---|---|---|---|---|---|---|
| Issued | Permit # | Provided by | Bldg # | Description | Est Construction Cost | Status | |||||
| No Building Permit records returned. | |||||||||||
| Click button on building number to access detailed information: | ||||||
|---|---|---|---|---|---|---|
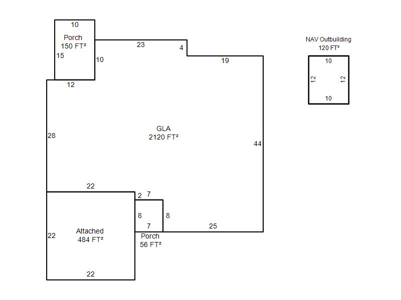
| Bldg # | Vacant/Improved Land | Bldg Description | Year Built | SqFt | # Stories | |
|
1 |
Improved |
Ranch 1 Story |
1983 |
2,120 |
1 Stories |
|