Larry Stein Oklahoma County Assessor (405) 713-1200 - Public Access System
Home Contact Us Guest Book Map Search New Search
Real Property Display - Screen Produced   4/23/2026 1:56:50 PM 
Account: R205741190  Type: Residential

  

Location:

521 NW 155TH CIR

Building Name/Occupant:

 

OKLAHOMA CITY

Owner Name 1:  NOLAND MICHAEL W

Parcel PIN#:

3615-20-574-1190

Owner Name 2:    1/4 section #:

3615

Owner Name 3:    Parent Acct:

3615-14-452-1665

Billing Address:  521 NW 155TH CIR Tax District:

City, State, Zip  EDMOND, OK  73013 School System:

Edmond #12

Country: (If noted)

  

Land Size:

0.2893  Acres

Personal Property

Land Value: 73,710 

Treasurer:

Sect 4-T13N-R3W Qtr SW

 BRENTON HILLS SEC 6   Block 012  Lot 016   Subdivision Sales
 Full Legal Description:  BRENTON HILLS SEC 6 012 016

NOTE:  The following sales may or may not be used to determine Fair Market Value

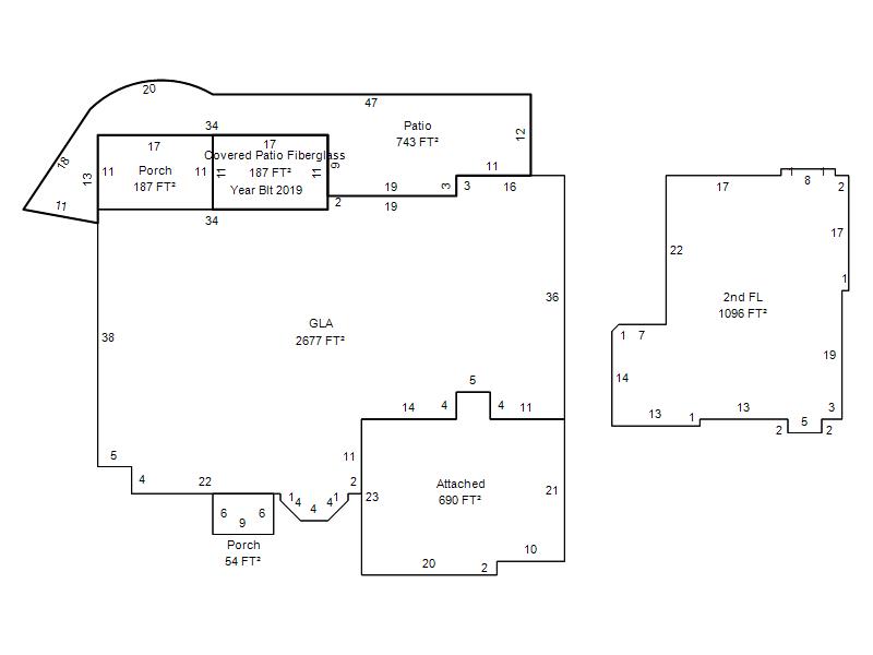
Photo & Sketch (if available) Sales  Sales Report

 521 NW 155TH CIR OKLAHOMA CITY, OK

01/19/2023

 $500,000 

 15606 CLAREMONT BLVD OKLAHOMA CITY, OK

06/12/2025

 $700,000 

 15301 GRAYSON DR OKLAHOMA CITY, OK

08/14/2023

 $610,000 

 15400 ESSEX CT OKLAHOMA CITY, OK

05/23/2025

 $499,500 

 501 NW 154TH ST OKLAHOMA CITY, OK

07/10/2025

 $575,000 

 609 NW 160TH ST OKLAHOMA CITY, OK

06/06/2024

 $535,000 

Value History  (*The County Treasurer 405-713-1300 posts & collects actual tax amounts.  Contact information  HERE)
Year Market Value Taxable Mkt Value Gross Assessed Exemption Net Assessed Millage Est. Tax Tax Savings

2026

554,000 

553,350 

60,868 

60,868 

120.32 

$7,324 

$9 

2025

527,000 

527,000 

57,970 

57,970 

120.32 

$6,975 

$0 

2024

515,500 

515,500 

56,705 

56,705 

119.96 

$6,802 

$0 

[1/7]
Property Account Status/Adjustments/Exemptions
Account # Exemption Description Amount

R205741190

5% Capped Account

Property Deed Transaction History   (Recorded in the County Clerk's Office)
Date Type Book Page Price Grantor Grantee

1/19/2023

Deeds

15374

274

 $0 

SHARUM MELINDA & GARY L

SHARUM GARY L

1/19/2023

Deeds

15374

277

 $500,000 

SHARUM GARY L

NOLAND MICHAEL W

8/13/2018

Deeds

13810

1597

 $395,000 

COURTIN PHILIP & VICKI

SHARUM MELINDA & GARY L

[1/3]
Last Mailed Notice of Value (N.O.V.) Information/History
Year Date Market Value Taxable Market Value Gross Assessed Exemption Net Assessed

2026

02/23/2026

554,000 

553,350 

60,868 

60,868 

2025

02/14/2025

527,000 

527,000 

57,970 

57,970 

2024

02/13/2024

515,500 

515,500 

56,705 

56,705 

[1/4]
Property Building Permit History
Issued Permit # Provided by Bldg # Description Est Construction Cost Status

5/15/2007

10339275

OKLAHOMA CITY

1

Main Dwellin

250,000 

Inactive

Click button below to access detailed information and additional property photos:
  Bldg # Vacant/Improved Land Bldg Description Year Built SqFt # Stories

Click

1

Improved

1½ Story Fin

2008

3,773 

1.5 Stories