|
|
|
| Larry Stein Oklahoma County Assessor (405) 713-1200 - Public Access System |
|
|
|
|
|
|
| Real Property Display - Screen Produced 4/2/2026 8:56:45 AM | ||||
|---|---|---|---|---|
| Account: R208271580 | Type: Residential | Location: |
2305 NW 154TH ST |
|
| Building Name/Occupant: |
|
OKLAHOMA CITY |
||
| Owner Name 1: | CHENG RONGHUA |
Parcel PIN#: |
3622-20-827-1580 |
|
| Owner Name 2: | 1/4 section #: |
3622 |
||
| Owner Name 3: | Parent Acct: |
3622-16-851-1875 |
||
| Billing Address: | 2305 NW 154TH ST | Tax District: |
|
|
| City, State, Zip | EDMOND, OK 73013-8968 | School System: |
Edmond #12 |
|
|
Country: (If noted) |
Land Size: |
0.1653 Acres |
||
|
Land Value: 44,280 |
|
|||
|
Sect 6-T13N-R3W Qtr SE |
ROBIN RIDGE SEC 2
Block
008
Lot
002
|
|||
| Full Legal Description: ROBIN RIDGE SEC 2 008 002 |
| Photo & Sketch (if available) | Comp Sales (ordered by relevancy) |
|
||||||||||||||||||
|
||||||||||||||||||||
| Value History (*The County Treasurer 405-713-1300 posts & collects actual tax amounts. Contact information HERE) | |||||||||||||
|---|---|---|---|---|---|---|---|---|---|---|---|---|---|
| Year | Market Value | Taxable Mkt Value | Gross Assessed | Exemption | Net Assessed | Millage | Est. Tax | Tax Savings | |||||
|
2026 |
371,000 |
371,000 |
40,810 |
0 |
40,810 |
120.32 |
$4,910 |
$0 |
|||||
|
2025 |
360,000 |
288,361 |
31,718 |
1,000 |
30,718 |
120.32 |
$3,696 |
$1,068 |
|||||
|
2024 |
360,000 |
279,963 |
30,794 |
1,000 |
29,794 |
119.96 |
$3,574 |
$1,176 |
|||||
|
2023 |
359,000 |
271,809 |
29,898 |
1,000 |
28,898 |
119.02 |
$3,440 |
$1,261 |
|||||
|
2022 |
311,500 |
263,893 |
29,026 |
1,000 |
28,026 |
120.10 |
$3,366 |
$749 |
|||||
| Property Account Status/Adjustments/Exemptions | ||||||
|---|---|---|---|---|---|---|
| Account # | Exemption Description | Amount | ||||
| No adjustment/exemption records returned. | ||||||
| Property Deed Transaction History (Recorded in the County Clerk's Office) | |||||||
|---|---|---|---|---|---|---|---|
| Date | Type | Book | Page | Price | Grantor | Grantee | |
|
8/7/2025 |
|
Deeds |
$370,000 |
CRAIG JONATHAN |
CHENG RONGHUA |
||
|
2/10/2017 |
|
Deeds |
$229,000 |
KELIHER SEAN C |
CRAIG JONATHAN |
||
|
3/19/2012 |
|
Deeds |
$225,500 |
D R HORTON TEXAS LTD |
KELIHER SEAN C |
||
|
5/31/2011 |
|
Mult Parcel |
$175,000 |
ROBIN RIDGE LLC |
D R HORTON TEXAS LTD |
||
| Last Mailed Notice of Value (N.O.V.) Information/History | ||||||||
|---|---|---|---|---|---|---|---|---|
| Year | Date | Market Value | Taxable Market Value | Gross Assessed | Exemption | Net Assessed | ||
|
2026 |
02/23/2026 |
371,000 |
371,000 |
40,810 |
0 |
40,810 |
||
|
2025 |
02/14/2025 |
360,000 |
288,361 |
31,718 |
1,000 |
30,718 |
||
|
2024 |
02/13/2024 |
360,000 |
279,963 |
30,794 |
1,000 |
29,794 |
||
|
2023 |
02/14/2023 |
359,000 |
271,809 |
29,898 |
1,000 |
28,898 |
||
|
2022 |
03/15/2022 |
311,500 |
263,893 |
29,026 |
1,000 |
28,026 |
||
| Property Building Permit History | ||||||
|---|---|---|---|---|---|---|
| Issued | Permit # | Provided by | Bldg # | Description | Est Construction Cost | Status |
|
11/22/2011 |
10435093 |
OKLAHOMA CITY |
1 |
Main Dwellin |
0 |
Inactive |
| Click button on building number to access detailed information: | ||||||
|---|---|---|---|---|---|---|
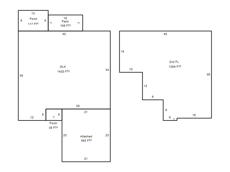
| Bldg # | Vacant/Improved Land | Bldg Description | Year Built | SqFt | # Stories | |
|
1 |
Improved |
2 Story |
2012 |
2,674 |
2 Stories |
|