|
|
|
| Larry Stein Oklahoma County Assessor (405) 713-1200 - Public Access System |
|
|
|
|
|
|
| Real Property Display - Screen Produced 4/2/2026 3:50:52 PM | ||||
|---|---|---|---|---|
| Account: R208271690 | Type: Residential | Location: |
2413 NW 154TH ST |
|
| Building Name/Occupant: |
|
OKLAHOMA CITY |
||
| Owner Name 1: | LOS OLEKSANDRA MYKHAILIVNA |
Parcel PIN#: |
3622-20-827-1690 |
|
| Owner Name 2: | 1/4 section #: |
3622 |
||
| Owner Name 3: | Parent Acct: |
3622-16-851-1875 |
||
| Billing Address: | 2413 NW 154TH ST | Tax District: |
|
|
| City, State, Zip | EDMOND, OK 73013-8970 | School System: |
Edmond #12 |
|
|
Country: (If noted) |
Land Size: |
0.1653 Acres |
||
|
Land Value: 44,280 |
|
|||
|
Sect 6-T13N-R3W Qtr SE |
ROBIN RIDGE SEC 2
Block
008
Lot
013
|
|||
| Full Legal Description: ROBIN RIDGE SEC 2 008 013 |
| Photo & Sketch (if available) | Comp Sales (ordered by relevancy) |
|
||||||||||||||||||
|
||||||||||||||||||||
| Value History (*The County Treasurer 405-713-1300 posts & collects actual tax amounts. Contact information HERE) | |||||||||||||
|---|---|---|---|---|---|---|---|---|---|---|---|---|---|
| Year | Market Value | Taxable Mkt Value | Gross Assessed | Exemption | Net Assessed | Millage | Est. Tax | Tax Savings | |||||
|
2026 |
362,000 |
362,000 |
39,820 |
1,000 |
38,820 |
120.32 |
$4,671 |
$120 |
|||||
|
2025 |
355,500 |
355,500 |
39,105 |
0 |
39,105 |
120.32 |
$4,705 |
$0 |
|||||
|
2024 |
352,000 |
352,000 |
38,720 |
0 |
38,720 |
119.96 |
$4,645 |
$0 |
|||||
|
2023 |
340,500 |
283,342 |
31,167 |
0 |
31,167 |
119.02 |
$3,710 |
$748 |
|||||
|
2022 |
299,500 |
269,850 |
29,683 |
0 |
29,683 |
120.10 |
$3,565 |
$392 |
|||||
| Property Account Status/Adjustments/Exemptions | ||
|---|---|---|
| Account # | Exemption Description | Amount |
|
R208271690 |
Homestead |
1,000 |
| Property Deed Transaction History (Recorded in the County Clerk's Office) | |||||||
|---|---|---|---|---|---|---|---|
| Date | Type | Book | Page | Price | Grantor | Grantee | |
|
2/10/2025 |
|
Deeds |
$390,000 |
LOVELACE DITESHIA |
LOS OLEKSANDRA MYKHAILIVNA |
||
|
9/25/2023 |
|
Deeds |
$350,000 |
VELEZ ANTHONY & COREY LYNN |
LOVELACE DITESHIA |
||
|
9/9/2011 |
|
Deeds |
$240,000 |
ROBIN RIDGE LLC |
VELEZ ANTHONY & COREY LYNN |
||
| Last Mailed Notice of Value (N.O.V.) Information/History | ||||||||
|---|---|---|---|---|---|---|---|---|
| Year | Date | Market Value | Taxable Market Value | Gross Assessed | Exemption | Net Assessed | ||
|
2026 |
02/23/2026 |
362,000 |
362,000 |
39,820 |
1,000 |
38,820 |
||
|
2025 |
02/14/2025 |
355,500 |
355,500 |
39,105 |
0 |
39,105 |
||
|
2025 |
03/28/2025 |
355,500 |
355,500 |
39,105 |
0 |
39,105 |
||
|
2024 |
02/13/2024 |
352,000 |
352,000 |
38,720 |
0 |
38,720 |
||
|
2023 |
02/14/2023 |
340,500 |
283,342 |
31,167 |
0 |
31,167 |
||
| Property Building Permit History | |||||||||||
|---|---|---|---|---|---|---|---|---|---|---|---|
| Issued | Permit # | Provided by | Bldg # | Description | Est Construction Cost | Status | |||||
| No Building Permit records returned. | |||||||||||
| Click button on building number to access detailed information: | ||||||
|---|---|---|---|---|---|---|
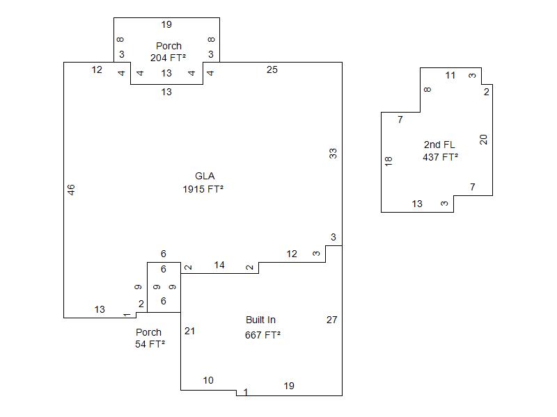
| Bldg # | Vacant/Improved Land | Bldg Description | Year Built | SqFt | # Stories | |
|
1 |
Improved |
1½ Story Fin |
2011 |
2,352 |
1.5 Stories |
|