|
|
|
| Larry Stein Oklahoma County Assessor (405) 713-1200 - Public Access System |
|
|
|
|
|
|
| Real Property Display - Screen Produced 4/1/2026 2:19:45 AM | ||||
|---|---|---|---|---|
| Account: R124691200 | Type: Residential | Location: |
2808 NW 154TH ST |
|
| Building Name/Occupant: |
|
OKLAHOMA CITY |
||
| Owner Name 1: | TERRILL TRACY & JONI |
Parcel PIN#: |
3623-12-469-1200 |
|
| Owner Name 2: | 1/4 section #: |
3623 |
||
| Owner Name 3: | Parent Acct: |
|
||
| Billing Address: | 2808 NW 154TH ST | Tax District: |
|
|
| City, State, Zip | EDMOND, OK 73013-8806 | School System: |
Edmond #12 |
|
|
Country: (If noted) |
Land Size: |
0.1944 Acres |
||
|
Land Value: 42,774 |
|
|||
|
Sect 6-T13N-R3W Qtr SW |
BLUE QUAIL RIDGE 1ST
Block
001
Lot
021
|
|||
| Full Legal Description: BLUE QUAIL RIDGE 1ST 001 021 |
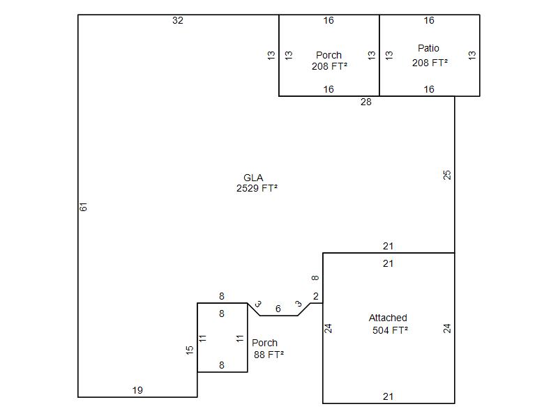
| Photo & Sketch (if available) | Comp Sales (ordered by relevancy) |
|
||||||||||||||||||
|
||||||||||||||||||||
| Value History (*The County Treasurer 405-713-1300 posts & collects actual tax amounts. Contact information HERE) | |||||||||||||
|---|---|---|---|---|---|---|---|---|---|---|---|---|---|
| Year | Market Value | Taxable Mkt Value | Gross Assessed | Exemption | Net Assessed | Millage | Est. Tax | Tax Savings | |||||
|
2026 |
377,000 |
377,000 |
41,470 |
1,000 |
40,470 |
120.32 |
$4,869 |
$120 |
|||||
|
2025 |
367,000 |
367,000 |
40,370 |
1,000 |
39,370 |
120.32 |
$4,737 |
$120 |
|||||
|
2024 |
349,500 |
282,729 |
31,099 |
1,000 |
30,099 |
119.96 |
$3,611 |
$1,001 |
|||||
|
2023 |
333,500 |
274,495 |
30,194 |
1,000 |
29,194 |
119.02 |
$3,475 |
$892 |
|||||
|
2022 |
266,500 |
266,500 |
29,315 |
1,000 |
28,315 |
120.10 |
$3,401 |
$120 |
|||||
| Property Account Status/Adjustments/Exemptions | ||
|---|---|---|
| Account # | Exemption Description | Amount |
|
R124691200 |
3% Cap Homestead |
0 |
|
R124691200 |
Homestead |
1,000 |
| Property Deed Transaction History (Recorded in the County Clerk's Office) | ||||||||||
|---|---|---|---|---|---|---|---|---|---|---|
| Date | Type | Book | Page | Price | Grantor | Grantee | ||||
|
4/30/2024 |
|
Deeds |
$335,000 |
CARTUS FINANCIAL CORPORATION |
TERRILL TRACY & JONI |
|||||
|
3/8/2024 |
|
Deeds |
$335,000 |
HENRY ETHAN |
CARTUS FINANCIAL CORPORATION |
|||||
|
3/29/2021 |
|
Deeds |
$260,000 |
TENTE BRYAN P & JESSICA L |
HENRY ETHAN |
|||||
|
5/12/2016 |
|
Deeds |
$240,000 |
THIBAULT ANDREW M |
TENTE BRYAN P & JESSICA L |
|||||
|
6/25/2010 |
|
Deeds |
$220,500 |
GUYNES JARAD & MEGAN |
THIBAULT ANDREW M |
|||||
| Last Mailed Notice of Value (N.O.V.) Information/History | ||||||||
|---|---|---|---|---|---|---|---|---|
| Year | Date | Market Value | Taxable Market Value | Gross Assessed | Exemption | Net Assessed | ||
|
2026 |
02/23/2026 |
377,000 |
377,000 |
41,470 |
1,000 |
40,470 |
||
|
2025 |
02/14/2025 |
367,000 |
367,000 |
40,370 |
1,000 |
39,370 |
||
|
2024 |
02/13/2024 |
349,500 |
282,729 |
31,099 |
1,000 |
30,099 |
||
|
2023 |
02/14/2023 |
333,500 |
274,495 |
30,194 |
1,000 |
29,194 |
||
|
2022 |
03/15/2022 |
266,500 |
266,500 |
29,315 |
0 |
29,315 |
||
| Property Building Permit History | ||||||
|---|---|---|---|---|---|---|
| Issued | Permit # | Provided by | Bldg # | Description | Est Construction Cost | Status |
|
2/22/1996 |
10212018 |
OKLAHOMA CITY |
1 |
Main Dwellin |
125,000 |
Inactive |
| Click button on building number to access detailed information: | ||||||
|---|---|---|---|---|---|---|
| Bldg # | Vacant/Improved Land | Bldg Description | Year Built | SqFt | # Stories | |
|
1 |
Improved |
Ranch 1 Story |
1996 |
2,529 |
1 Stories |
|