|
|
|
| Larry Stein Oklahoma County Assessor (405) 713-1200 - Public Access System |
|
|
|
|
|
|
| Real Property Display - Screen Produced 4/4/2026 3:35:04 AM | ||||
|---|---|---|---|---|
| Account: R122251265 | Type: Residential | Location: |
14405 N PENNSYLVANIA AVE, Unit 6P |
|
| Building Name/Occupant: |
|
OKLAHOMA CITY |
||
| Owner Name 1: | LEON LUZ |
Parcel PIN#: |
3625-12-225-1265 |
|
| Owner Name 2: | 1/4 section #: |
3625 |
||
| Owner Name 3: | Parent Acct: |
|
||
| Billing Address: | 14405 N PENNSYLVANIA AVE, Unit 6P | Tax District: |
|
|
| City, State, Zip | OKLAHOMA CITY, OK 73134 | School System: |
Edmond #12 |
|
|
Country: (If noted) |
Land Size: |
1.0000 Square Feet |
||
|
Land Value: 12,750 |
|
|||
|
Sect 7-T13N-R3W Qtr NE |
QUAIL SPRINGS CONDOMINIUMS I
Block
000
Lot
000
|
|||
| Full Legal Description: QUAIL SPRINGS CONDOMINIUMS I 000 000 UNIT 6 P |
| Photo & Sketch (if available) | Comp Sales (ordered by relevancy) |
|
||||||||||||||||||
|
||||||||||||||||||||
| Value History (*The County Treasurer 405-713-1300 posts & collects actual tax amounts. Contact information HERE) | |||||||||||||
|---|---|---|---|---|---|---|---|---|---|---|---|---|---|
| Year | Market Value | Taxable Mkt Value | Gross Assessed | Exemption | Net Assessed | Millage | Est. Tax | Tax Savings | |||||
|
2026 |
83,500 |
83,500 |
9,185 |
0 |
9,185 |
120.32 |
$1,105 |
$0 |
|||||
|
2025 |
84,000 |
84,000 |
9,240 |
0 |
9,240 |
120.32 |
$1,112 |
$0 |
|||||
|
2024 |
85,000 |
62,596 |
6,884 |
0 |
6,884 |
119.96 |
$826 |
$296 |
|||||
|
2023 |
77,000 |
59,616 |
6,557 |
0 |
6,557 |
119.02 |
$781 |
$228 |
|||||
|
2022 |
63,500 |
56,778 |
6,245 |
0 |
6,245 |
120.10 |
$750 |
$89 |
|||||
| Property Account Status/Adjustments/Exemptions | ||
|---|---|---|
| Account # | Exemption Description | Amount |
|
R122251265 |
5% Capped Account |
0 |
| Property Deed Transaction History (Recorded in the County Clerk's Office) | ||||||||||
|---|---|---|---|---|---|---|---|---|---|---|
| Date | Type | Book | Page | Price | Grantor | Grantee | ||||
|
3/8/2024 |
|
Deeds |
$94,000 |
AHMED CAROL |
LEON LUZ |
|||||
|
12/30/2009 |
|
Deeds |
$40,000 |
DOOLEY JEANETTE D |
AHMED CAROL |
|||||
|
4/22/2003 |
|
Deeds |
$31,500 |
COLE MARK A |
DOOLEY JEANETTE D |
|||||
|
8/1/2001 |
|
Deeds |
$27,500 |
WILDE VERNON & SANDRA |
COLE MARK A |
|||||
|
4/4/2000 |
|
Other |
$0 |
VILLAGE INVESTMENTS PLUS FUND |
WILDE VERNON & SANDRA |
|||||
| Last Mailed Notice of Value (N.O.V.) Information/History | ||||||||
|---|---|---|---|---|---|---|---|---|
| Year | Date | Market Value | Taxable Market Value | Gross Assessed | Exemption | Net Assessed | ||
|
2025 |
02/14/2025 |
84,000 |
84,000 |
9,240 |
0 |
9,240 |
||
|
2024 |
02/13/2024 |
85,000 |
62,596 |
6,884 |
0 |
6,884 |
||
|
2024 |
04/05/2024 |
85,000 |
62,596 |
6,884 |
0 |
6,884 |
||
|
2023 |
02/14/2023 |
77,000 |
59,616 |
6,557 |
0 |
6,557 |
||
|
2022 |
03/15/2022 |
63,500 |
56,778 |
6,245 |
0 |
6,245 |
||
| Property Building Permit History | |||||||||||
|---|---|---|---|---|---|---|---|---|---|---|---|
| Issued | Permit # | Provided by | Bldg # | Description | Est Construction Cost | Status | |||||
| No Building Permit records returned. | |||||||||||
| Click button on building number to access detailed information: | ||||||
|---|---|---|---|---|---|---|
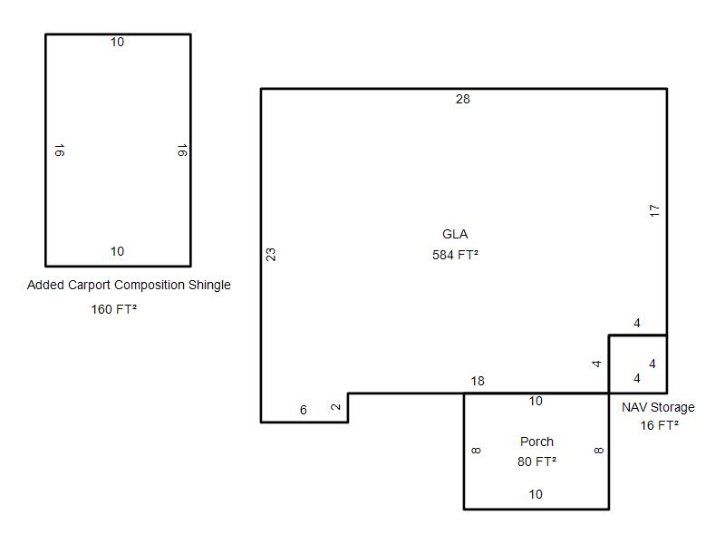
| Bldg # | Vacant/Improved Land | Bldg Description | Year Built | SqFt | # Stories | |
|
1 |
Improved |
Condo <= 3 Stories |
1982 |
584 |
1 Stories |
|