|
|
|
| Larry Stein Oklahoma County Assessor (405) 713-1200 - Public Access System |
|
|
|
|
|
|
| Real Property Display - Screen Produced 4/2/2026 2:46:31 PM | ||||
|---|---|---|---|---|
| Account: R205681100 | Type: Residential | Location: |
1705 NW 146TH ST |
|
| Building Name/Occupant: |
|
OKLAHOMA CITY |
||
| Owner Name 1: | MAGUIRE DIANE |
Parcel PIN#: |
3632-20-568-1100 |
|
| Owner Name 2: | 1/4 section #: |
3632 |
||
| Owner Name 3: | Parent Acct: |
3632-16-851-2076 |
||
| Billing Address: | 1705 NW 146TH ST | Tax District: |
|
|
| City, State, Zip | EDMOND, OK 73013 | School System: |
Edmond #12 |
|
|
Country: (If noted) |
UNITED STATES |
Land Size: |
0.1377 Acres |
|
|
Land Value: 27,300 |
|
|||
|
Sect 8-T13N-R3W Qtr NW |
MARBLELEAF SEC 3
Block
012
Lot
002
|
|||
| Full Legal Description: MARBLELEAF SEC 3 012 002 |
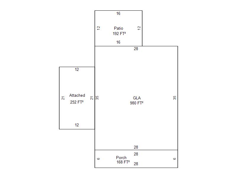
| Photo & Sketch (if available) | Comp Sales (ordered by relevancy) |
|
||||||||||||||||||
|
||||||||||||||||||||
| Value History (*The County Treasurer 405-713-1300 posts & collects actual tax amounts. Contact information HERE) | |||||||||||||
|---|---|---|---|---|---|---|---|---|---|---|---|---|---|
| Year | Market Value | Taxable Mkt Value | Gross Assessed | Exemption | Net Assessed | Millage | Est. Tax | Tax Savings | |||||
|
2026 |
180,000 |
173,000 |
19,030 |
1,000 |
18,030 |
120.32 |
$2,169 |
$213 |
|||||
|
2025 |
179,500 |
173,000 |
19,030 |
1,000 |
18,030 |
120.32 |
$2,169 |
$206 |
|||||
|
2024 |
173,000 |
173,000 |
19,030 |
1,000 |
18,030 |
119.96 |
$2,163 |
$120 |
|||||
|
2023 |
165,500 |
143,325 |
15,765 |
0 |
15,765 |
119.02 |
$1,876 |
$290 |
|||||
|
2022 |
139,000 |
136,500 |
15,015 |
0 |
15,015 |
120.10 |
$1,803 |
$33 |
|||||
| Property Account Status/Adjustments/Exemptions | ||
|---|---|---|
| Account # | Exemption Description | Amount |
|
R205681100 |
3% Cap Homestead |
0 |
|
R205681100 |
Freeze Senior Valuation |
0 |
|
R205681100 |
Homestead |
1,000 |
| Property Deed Transaction History (Recorded in the County Clerk's Office) | ||||||||||
|---|---|---|---|---|---|---|---|---|---|---|
| Date | Type | Book | Page | Price | Grantor | Grantee | ||||
|
12/7/2023 |
|
Deeds |
$172,000 |
HARRIS MADYSON P |
MAGUIRE DIANE |
|||||
|
8/15/2019 |
|
Deeds |
$130,000 |
WALTON CARRIE J |
HARRIS MADYSON P |
|||||
|
6/27/2013 |
|
Deeds |
$111,000 |
MILLER CANDACE |
WALTON CARRIE J |
|||||
|
4/26/2007 |
|
Deeds |
$106,000 |
SAGE AMELIA R |
MILLER CANDACE |
|||||
|
12/23/2005 |
|
Deeds |
$100,000 |
IDEAL HOMES OF NORMAN LP |
SAGE AMELIA R |
|||||
| Last Mailed Notice of Value (N.O.V.) Information/History | ||||||||
|---|---|---|---|---|---|---|---|---|
| Year | Date | Market Value | Taxable Market Value | Gross Assessed | Exemption | Net Assessed | ||
|
2026 |
02/23/2026 |
180,000 |
173,000 |
19,030 |
1,000 |
18,030 |
||
|
2025 |
02/14/2025 |
179,500 |
173,000 |
19,030 |
1,000 |
18,030 |
||
|
2024 |
02/13/2024 |
173,000 |
173,000 |
19,030 |
0 |
19,030 |
||
|
2023 |
02/14/2023 |
165,500 |
143,325 |
15,765 |
0 |
15,765 |
||
|
2022 |
03/15/2022 |
139,000 |
136,500 |
15,015 |
0 |
15,015 |
||
| Property Building Permit History | ||||||
|---|---|---|---|---|---|---|
| Issued | Permit # | Provided by | Bldg # | Description | Est Construction Cost | Status |
|
9/8/2005 |
10311704 |
OKLAHOMA CITY |
1 |
Main Dwellin |
48,000 |
Inactive |
| Click button on building number to access detailed information: | ||||||
|---|---|---|---|---|---|---|
| Bldg # | Vacant/Improved Land | Bldg Description | Year Built | SqFt | # Stories | |
|
1 |
Improved |
Ranch 1 Story |
2005 |
980 |
1 Stories |
|