|
|
|
| Larry Stein Oklahoma County Assessor (405) 713-1200 - Public Access System |
|
|
|
|
|
|
| Real Property Display - Screen Produced 4/2/2026 5:35:27 PM | ||||
|---|---|---|---|---|
| Account: R208811460 | Type: Residential | Location: |
3912 WICKERSHAM DR |
|
| Building Name/Occupant: |
|
EDMOND |
||
| Owner Name 1: | QUEENMING INVESTMENT PROPERTIES LLC |
Parcel PIN#: |
3641-20-881-1460 |
|
| Owner Name 2: | 1/4 section #: |
3641 |
||
| Owner Name 3: | Parent Acct: |
3641-16-851-2350 |
||
| Billing Address: | 3501 HUNTSMAN CT | Tax District: |
|
|
| City, State, Zip | EDMOND, OK 73003-3534 | School System: |
Edmond #12 |
|
|
Country: (If noted) |
Land Size: |
0.1835 Acres |
||
|
Land Value: 48,770 |
|
|||
|
Sect 11-T13N-R3W Qtr NE |
LANDINGS II AT STONEBRIDGE
Block
002
Lot
009
|
|||
| Full Legal Description: LANDINGS II AT STONEBRIDGE 002 009 |
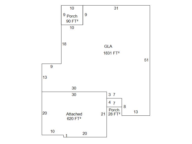
| Photo & Sketch (if available) | Comp Sales (ordered by relevancy) |
|
||||||||||||||||||
|
||||||||||||||||||||
| Value History (*The County Treasurer 405-713-1300 posts & collects actual tax amounts. Contact information HERE) | |||||||||||||
|---|---|---|---|---|---|---|---|---|---|---|---|---|---|
| Year | Market Value | Taxable Mkt Value | Gross Assessed | Exemption | Net Assessed | Millage | Est. Tax | Tax Savings | |||||
|
2026 |
313,500 |
313,500 |
34,485 |
0 |
34,485 |
105.16 |
$3,626 |
$0 |
|||||
|
2025 |
312,000 |
312,000 |
34,320 |
0 |
34,320 |
105.16 |
$3,609 |
$0 |
|||||
|
2024 |
305,500 |
299,880 |
32,986 |
0 |
32,986 |
105.03 |
$3,465 |
$65 |
|||||
|
2023 |
295,000 |
285,600 |
31,416 |
0 |
31,416 |
104.24 |
$3,275 |
$108 |
|||||
|
2022 |
272,000 |
272,000 |
29,920 |
0 |
29,920 |
104.64 |
$3,131 |
$0 |
|||||
| Property Account Status/Adjustments/Exemptions | ||||||
|---|---|---|---|---|---|---|
| Account # | Exemption Description | Amount | ||||
| No adjustment/exemption records returned. | ||||||
| Property Deed Transaction History (Recorded in the County Clerk's Office) | ||||||||||
|---|---|---|---|---|---|---|---|---|---|---|
| Date | Type | Book | Page | Price | Grantor | Grantee | ||||
|
4/29/2025 |
|
Hmstd Off & |
$0 |
PROSPERITY INVESTMENT LLC |
PROSPERITY INVESTMENT PROPERTIES LLC |
|||||
|
4/29/2025 |
|
Deeds |
$290,000 |
PROSPERITY INVESTMENT PROPERTIES LLC |
QUEENMING INVESTMENT PROPERTIES LLC |
|||||
|
12/2/2022 |
|
Hmstd Off & |
$0 |
POLY REAL ESTATE LLC |
PROSPERITY INVESTMENT LLC |
|||||
|
10/7/2021 |
|
Deeds |
$275,000 |
KIRSCH NORMA JEAN TRS |
POLY REAL ESTATE LLC |
|||||
|
10/9/2009 |
|
Deeds |
$200,000 |
DODSON CUSTOM HOMES LLC |
KIRSCH NORMA JEAN TRS |
|||||
| Last Mailed Notice of Value (N.O.V.) Information/History | ||||||||
|---|---|---|---|---|---|---|---|---|
| Year | Date | Market Value | Taxable Market Value | Gross Assessed | Exemption | Net Assessed | ||
|
2026 |
02/23/2026 |
313,500 |
313,500 |
34,485 |
0 |
34,485 |
||
|
2025 |
02/14/2025 |
312,000 |
312,000 |
34,320 |
0 |
34,320 |
||
|
2024 |
02/13/2024 |
305,500 |
299,880 |
32,986 |
0 |
32,986 |
||
|
2023 |
02/14/2023 |
295,000 |
285,600 |
31,416 |
0 |
31,416 |
||
|
2022 |
03/15/2022 |
272,000 |
272,000 |
29,920 |
0 |
29,920 |
||
| Property Building Permit History | ||||||
|---|---|---|---|---|---|---|
| Issued | Permit # | Provided by | Bldg # | Description | Est Construction Cost | Status |
|
7/15/2008 |
10356013 |
EDMOND |
1 |
Main Dwellin |
0 |
Inactive |
|
6/30/2008 |
10356122 |
EDMOND |
1 |
Main Dwellin |
218,000 |
Inactive |
| Click button on building number to access detailed information: | ||||||
|---|---|---|---|---|---|---|
| Bldg # | Vacant/Improved Land | Bldg Description | Year Built | SqFt | # Stories | |
|
1 |
Improved |
Ranch 1 Story |
2008 |
1,831 |
1 Stories |
|