|
|
|
| Larry Stein Oklahoma County Assessor (405) 713-1200 - Public Access System |
|
|
|
|
|
|
| Real Property Display - Screen Produced 3/20/2026 7:55:50 PM | ||||
|---|---|---|---|---|
| Account: R180611010 | Type: Residential | Location: |
13710 CROSSING WAY EAST |
|
| Building Name/Occupant: |
|
OKLAHOMA CITY |
||
| Owner Name 1: | FIELDS ROGER L & SHELLEY D |
Parcel PIN#: |
3643-18-061-1010 |
|
| Owner Name 2: | 1/4 section #: |
3643 |
||
| Owner Name 3: | Parent Acct: |
|
||
| Billing Address: | 13710 CROSSING WAY E | Tax District: |
|
|
| City, State, Zip | EDMOND, OK 73013-4724 | School System: |
Edmond #12 |
|
|
Country: (If noted) |
Land Size: |
0.0574 Acres |
||
|
Land Value: 19,500 |
|
|||
|
Sect 11-T13N-R3W Qtr SW |
THE CROSSING SEC 1
Block
001
Lot
002
|
|||
| Full Legal Description: THE CROSSING SEC 1 001 002 |
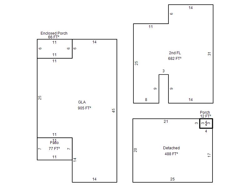
| Photo & Sketch (if available) | Comp Sales (ordered by relevancy) |
|
||||||||||||||||||
|
||||||||||||||||||||
| Value History (*The County Treasurer 405-713-1300 posts & collects actual tax amounts. Contact information HERE) | |||||||||||||
|---|---|---|---|---|---|---|---|---|---|---|---|---|---|
| Year | Market Value | Taxable Mkt Value | Gross Assessed | Exemption | Net Assessed | Millage | Est. Tax | Tax Savings | |||||
|
2025 |
201,000 |
201,000 |
22,110 |
0 |
22,110 |
120.32 |
$2,660 |
$0 |
|||||
|
2024 |
185,500 |
185,500 |
20,405 |
0 |
20,405 |
119.96 |
$2,448 |
$0 |
|||||
|
2023 |
179,000 |
179,000 |
19,690 |
0 |
19,690 |
119.02 |
$2,344 |
$0 |
|||||
|
2022 |
137,000 |
124,570 |
13,702 |
1,000 |
12,702 |
120.10 |
$1,526 |
$284 |
|||||
|
2021 |
126,000 |
120,942 |
13,303 |
1,000 |
12,303 |
118.88 |
$1,463 |
$185 |
|||||
| Property Account Status/Adjustments/Exemptions | ||
|---|---|---|
| Account # | Exemption Description | Amount |
|
R180611010 |
5% Capped Account |
0 |
| Property Deed Transaction History (Recorded in the County Clerk's Office) | |||||||
|---|---|---|---|---|---|---|---|
| Date | Type | Book | Page | Price | Grantor | Grantee | |
|
9/18/2024 |
|
Deeds |
$200,000 |
4 BUCKNERS PROPERTIES LLC |
FIELDS ROGER L & SHELLEY D |
||
|
6/22/2022 |
|
Deeds |
$187,000 |
MCCULLOUGH DWIGHT L |
4 BUCKNERS PROPERTIES LLC |
||
|
10/20/2017 |
|
Deeds |
$120,500 |
ELDER WILLIAM JOSEPH TRS |
MCCULLOUGH DWIGHT L |
||
|
5/27/2015 |
|
Deeds |
$0 |
ELDER JAMES T ELDER JEAN H |
ELDER WILLIAM JOSEPH TRS |
||
|
7/1/1982 |
|
Historical |
$0 |
|
ELDER JAMES T |
||
| Last Mailed Notice of Value (N.O.V.) Information/History | ||||||||
|---|---|---|---|---|---|---|---|---|
| Year | Date | Market Value | Taxable Market Value | Gross Assessed | Exemption | Net Assessed | ||
|
2025 |
02/14/2025 |
201,000 |
201,000 |
22,110 |
0 |
22,110 |
||
|
2024 |
02/13/2024 |
185,500 |
185,500 |
20,405 |
0 |
20,405 |
||
|
2023 |
02/14/2023 |
179,000 |
179,000 |
19,690 |
0 |
19,690 |
||
|
2022 |
03/15/2022 |
137,000 |
124,570 |
13,702 |
1,000 |
12,702 |
||
|
2021 |
03/19/2021 |
126,000 |
120,942 |
13,303 |
1,000 |
12,303 |
||
| Property Building Permit History | |||||||||||
|---|---|---|---|---|---|---|---|---|---|---|---|
| Issued | Permit # | Provided by | Bldg # | Description | Est Construction Cost | Status | |||||
| No Building Permit records returned. | |||||||||||
| Click button on building number to access detailed information: | ||||||
|---|---|---|---|---|---|---|
| Bldg # | Vacant/Improved Land | Bldg Description | Year Built | SqFt | # Stories | |
|
1 |
Improved |
Townhouse One half Story |
1981 |
1,587 |
1.5 Stories |
|