|
|
|
| Larry Stein Oklahoma County Assessor (405) 713-1200 - Public Access System |
|
|
|
|
|
|
| Real Property Display - Screen Produced 3/24/2026 4:35:38 AM | ||||
|---|---|---|---|---|
| Account: R182571970 | Type: Residential | Location: |
3417 BAIRD DR |
|
| Building Name/Occupant: |
|
EDMOND |
||
| Owner Name 1: | KRITZ DAVID PAUL & BLAKE MCKENZIE |
Parcel PIN#: |
3645-18-257-1970 |
|
| Owner Name 2: | 1/4 section #: |
3645 |
||
| Owner Name 3: | Parent Acct: |
|
||
| Billing Address: | 3417 BAIRD DR | Tax District: |
|
|
| City, State, Zip | EDMOND, OK 73013-6328 | School System: |
Edmond #12 |
|
|
Country: (If noted) |
Land Size: |
0.2410 Acres |
||
|
Land Value: 39,900 |
|
|||
|
Sect 12-T13N-R3W Qtr NE |
SMILING HILL
Block
008
Lot
009
|
|||
| Full Legal Description: SMILING HILL 008 009 |
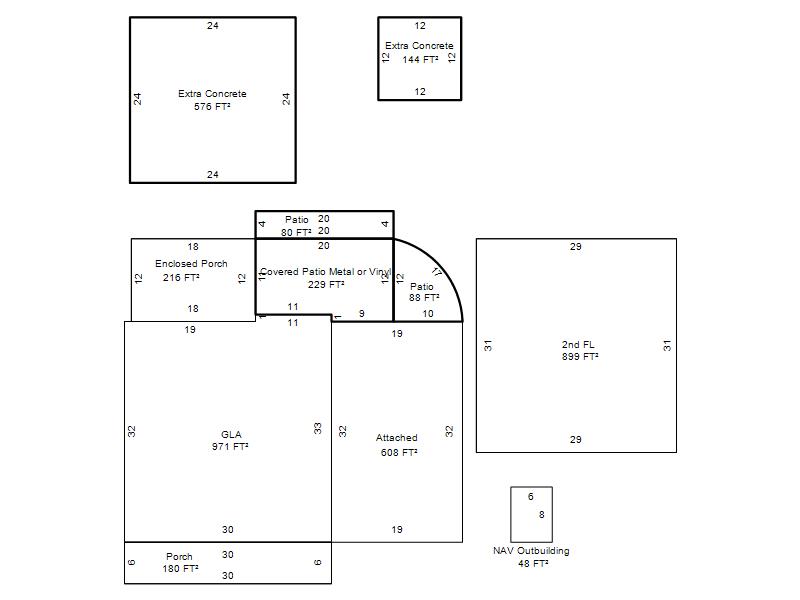
| Photo & Sketch (if available) | Comp Sales (ordered by relevancy) |
|
||||||||||||||||||
|
||||||||||||||||||||
| Value History (*The County Treasurer 405-713-1300 posts & collects actual tax amounts. Contact information HERE) | |||||||||||||
|---|---|---|---|---|---|---|---|---|---|---|---|---|---|
| Year | Market Value | Taxable Mkt Value | Gross Assessed | Exemption | Net Assessed | Millage | Est. Tax | Tax Savings | |||||
|
2025 |
275,000 |
213,304 |
23,463 |
1,000 |
22,463 |
105.16 |
$2,362 |
$819 |
|||||
|
2024 |
274,500 |
207,092 |
22,779 |
1,000 |
21,779 |
105.03 |
$2,288 |
$884 |
|||||
|
2023 |
258,500 |
201,061 |
22,116 |
1,000 |
21,116 |
104.24 |
$2,201 |
$763 |
|||||
|
2022 |
237,000 |
195,205 |
21,472 |
1,000 |
20,472 |
104.64 |
$2,142 |
$586 |
|||||
|
2021 |
190,500 |
189,520 |
20,847 |
1,000 |
19,847 |
104.15 |
$2,067 |
$115 |
|||||
| Property Account Status/Adjustments/Exemptions | ||
|---|---|---|
| Account # | Exemption Description | Amount |
|
R182571970 |
Homestead |
1,000 |
| Property Deed Transaction History (Recorded in the County Clerk's Office) | ||||||||||
|---|---|---|---|---|---|---|---|---|---|---|
| Date | Type | Book | Page | Price | Grantor | Grantee | ||||
|
12/1/2025 |
|
Deeds |
$330,000 |
DAVIS JED ELLIOT & TAYLOR BROOKE TRS |
KRITZ DAVID PAUL & BLAKE MCKENZIE |
|||||
|
9/5/2024 |
|
Deeds |
$0 |
DAVIS JED |
DAVIS JED ELLIOT & TAYLOR BROOKE TRS |
|||||
|
11/20/2017 |
|
Deeds |
$202,000 |
GOSSETT WILLIAM B |
DAVIS JED |
|||||
|
1/12/2017 |
|
Deeds |
$115,000 |
MILLAN DANIEL A |
GOSSETT WILLIAM B |
|||||
|
6/5/2008 |
|
Hmstd Off & |
$0 |
MILLAN PROPERTIES LLC |
MILLAN DANIEL A |
|||||
| Last Mailed Notice of Value (N.O.V.) Information/History | ||||||||
|---|---|---|---|---|---|---|---|---|
| Year | Date | Market Value | Taxable Market Value | Gross Assessed | Exemption | Net Assessed | ||
|
2026 |
02/23/2026 |
291,500 |
291,500 |
32,065 |
0 |
32,065 |
||
|
2025 |
02/14/2025 |
275,000 |
213,304 |
23,463 |
1,000 |
22,463 |
||
|
2024 |
02/13/2024 |
274,500 |
207,092 |
22,779 |
1,000 |
21,779 |
||
|
2023 |
02/14/2023 |
258,500 |
201,061 |
22,116 |
1,000 |
21,116 |
||
|
2022 |
03/15/2022 |
237,000 |
195,205 |
21,472 |
1,000 |
20,472 |
||
| Property Building Permit History | |||||||||||
|---|---|---|---|---|---|---|---|---|---|---|---|
| Issued | Permit # | Provided by | Bldg # | Description | Est Construction Cost | Status | |||||
| No Building Permit records returned. | |||||||||||
| Click button on building number to access detailed information: | ||||||
|---|---|---|---|---|---|---|
| Bldg # | Vacant/Improved Land | Bldg Description | Year Built | SqFt | # Stories | |
|
1 |
Improved |
2 Story |
1970 |
1,870 |
2 Stories |
|