|
|
|
| Larry Stein Oklahoma County Assessor (405) 713-1200 - Public Access System |
|
|
|
|
|
|
| Real Property Display - Screen Produced 4/4/2026 3:32:15 AM | ||||
|---|---|---|---|---|
| Account: R120141660 | Type: Residential | Location: |
2413 SHADY TREE LN |
|
| Building Name/Occupant: |
|
OKLAHOMA CITY |
||
| Owner Name 1: | SNOVEL PAIJ |
Parcel PIN#: |
3652-12-014-1660 |
|
| Owner Name 2: | 1/4 section #: |
3652 |
||
| Owner Name 3: | Parent Acct: |
|
||
| Billing Address: | 2413 SHADY TREE LN | Tax District: |
|
|
| City, State, Zip | EDMOND, OK 73013-5642 | School System: |
Edmond #12 |
|
|
Country: (If noted) |
Land Size: |
0.1768 Acres |
||
|
Land Value: 35,035 |
|
|||
|
Sect 13-T13N-R3W Qtr NW |
NORTHWOOD ADDN IV
Block
017
Lot
019
|
|||
| Full Legal Description: NORTHWOOD ADDN IV 017 019 |
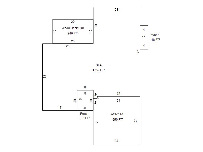
| Photo & Sketch (if available) | Comp Sales (ordered by relevancy) |
|
||||||||||||||||||
|
||||||||||||||||||||
| Value History (*The County Treasurer 405-713-1300 posts & collects actual tax amounts. Contact information HERE) | |||||||||||||
|---|---|---|---|---|---|---|---|---|---|---|---|---|---|
| Year | Market Value | Taxable Mkt Value | Gross Assessed | Exemption | Net Assessed | Millage | Est. Tax | Tax Savings | |||||
|
2026 |
276,000 |
276,000 |
30,360 |
0 |
30,360 |
120.32 |
$3,653 |
$0 |
|||||
|
2025 |
241,500 |
232,204 |
25,541 |
1,000 |
24,541 |
120.32 |
$2,953 |
$243 |
|||||
|
2024 |
233,000 |
225,441 |
24,798 |
1,000 |
23,798 |
119.96 |
$2,855 |
$220 |
|||||
|
2023 |
227,000 |
218,875 |
24,076 |
1,000 |
23,076 |
119.02 |
$2,747 |
$225 |
|||||
|
2022 |
212,500 |
212,500 |
23,375 |
1,000 |
22,375 |
120.10 |
$2,687 |
$120 |
|||||
| Property Account Status/Adjustments/Exemptions | ||||||
|---|---|---|---|---|---|---|
| Account # | Exemption Description | Amount | ||||
| No adjustment/exemption records returned. | ||||||
| Property Deed Transaction History (Recorded in the County Clerk's Office) | ||||||||||
|---|---|---|---|---|---|---|---|---|---|---|
| Date | Type | Book | Page | Price | Grantor | Grantee | ||||
|
4/29/2025 |
|
Deeds |
$291,000 |
STEPHEN BROOKS D & MEGAN N |
SNOVEL PAIJ |
|||||
|
11/19/2021 |
|
Deeds |
$215,000 |
HOLMES HAYDEN |
STEPHEN BROOKS D & MEGAN N |
|||||
|
5/17/2018 |
|
Deeds |
$175,500 |
CURTIS MATTHEW |
HOLMES HAYDEN |
|||||
|
8/10/2011 |
|
Deeds |
$142,000 |
ABEL HOMES INC |
CURTIS MATTHEW |
|||||
|
8/10/2011 |
|
Deeds |
$0 |
CURTIS MATTHEW |
CURTIS MATTHEW |
|||||
| Last Mailed Notice of Value (N.O.V.) Information/History | ||||||||
|---|---|---|---|---|---|---|---|---|
| Year | Date | Market Value | Taxable Market Value | Gross Assessed | Exemption | Net Assessed | ||
|
2026 |
02/23/2026 |
276,000 |
276,000 |
30,360 |
0 |
30,360 |
||
|
2025 |
02/14/2025 |
241,500 |
232,204 |
25,541 |
1,000 |
24,541 |
||
|
2024 |
02/13/2024 |
233,000 |
225,441 |
24,798 |
1,000 |
23,798 |
||
|
2023 |
02/14/2023 |
227,000 |
218,875 |
24,076 |
1,000 |
23,076 |
||
|
2022 |
03/15/2022 |
212,500 |
212,500 |
23,375 |
1,000 |
22,375 |
||
| Property Building Permit History | |||||||||||
|---|---|---|---|---|---|---|---|---|---|---|---|
| Issued | Permit # | Provided by | Bldg # | Description | Est Construction Cost | Status | |||||
| No Building Permit records returned. | |||||||||||
| Click button on building number to access detailed information: | ||||||
|---|---|---|---|---|---|---|
| Bldg # | Vacant/Improved Land | Bldg Description | Year Built | SqFt | # Stories | |
|
1 |
Improved |
Ranch 1 Story |
1983 |
1,759 |
1 Stories |
|