|
|
|
| Larry Stein Oklahoma County Assessor (405) 713-1200 - Public Access System |
|
|
|
|
|
|
| Real Property Display - Screen Produced 3/18/2026 7:08:30 AM | ||||
|---|---|---|---|---|
| Account: R110122200 | Type: Residential | Location: |
2816 TEALWOOD DR |
|
| Building Name/Occupant: |
|
OKLAHOMA CITY |
||
| Owner Name 1: | ISLAND LISA DIANN & RODRICK EUGENE |
Parcel PIN#: |
3671-11-012-2200 |
|
| Owner Name 2: | 1/4 section #: |
3671 |
||
| Owner Name 3: | Parent Acct: |
|
||
| Billing Address: | 2816 TEALWOOD DR | Tax District: |
|
|
| City, State, Zip | OKLAHOMA CITY, OK 73120-1776 | School System: |
Oklahoma City #89 |
|
|
Country: (If noted) |
Land Size: |
0.1286 Acres |
||
|
Land Value: 36,400 |
|
|||
|
Sect 18-T13N-R3W Qtr SW |
TEALWOOD
Block
002
Lot
021
|
|||
| Full Legal Description: TEALWOOD 002 021 |
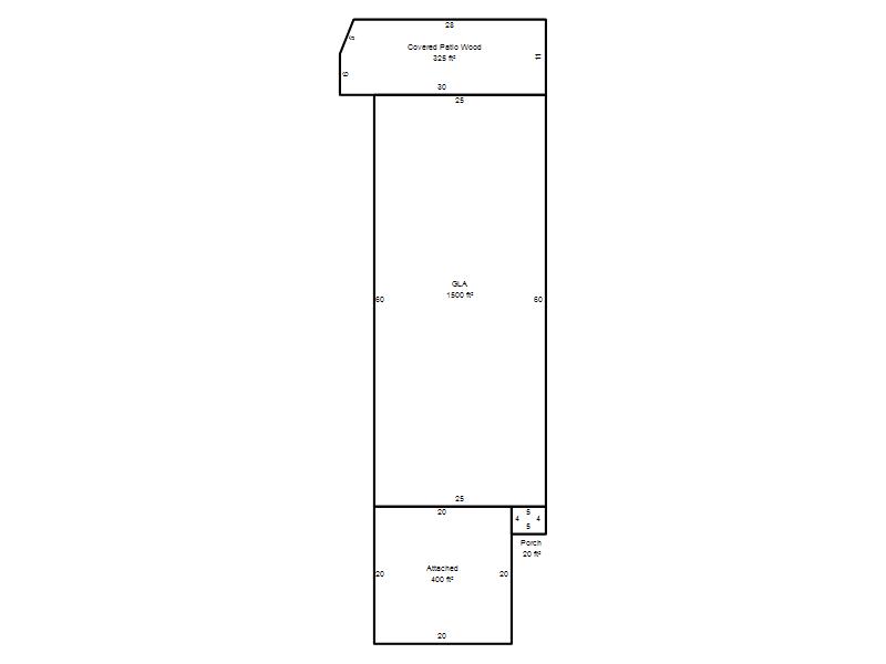
| Photo & Sketch (if available) | Comp Sales (ordered by relevancy) |
|
||||||||||||||||||
|
||||||||||||||||||||
| Value History (*The County Treasurer 405-713-1300 posts & collects actual tax amounts. Contact information HERE) | |||||||||||||
|---|---|---|---|---|---|---|---|---|---|---|---|---|---|
| Year | Market Value | Taxable Mkt Value | Gross Assessed | Exemption | Net Assessed | Millage | Est. Tax | Tax Savings | |||||
|
2025 |
202,000 |
180,502 |
19,854 |
0 |
19,854 |
122.90 |
$2,440 |
$291 |
|||||
|
2024 |
199,000 |
171,907 |
18,909 |
0 |
18,909 |
123.89 |
$2,343 |
$369 |
|||||
|
2023 |
189,500 |
163,721 |
18,008 |
0 |
18,008 |
122.82 |
$2,212 |
$348 |
|||||
|
2022 |
162,000 |
155,925 |
17,151 |
0 |
17,151 |
117.63 |
$2,018 |
$79 |
|||||
|
2021 |
148,500 |
148,500 |
16,335 |
0 |
16,335 |
117.70 |
$1,923 |
$0 |
|||||
| Property Account Status/Adjustments/Exemptions | ||||||
|---|---|---|---|---|---|---|
| Account # | Exemption Description | Amount | ||||
| No adjustment/exemption records returned. | ||||||
| Property Deed Transaction History (Recorded in the County Clerk's Office) | ||||||||||
|---|---|---|---|---|---|---|---|---|---|---|
| Date | Type | Book | Page | Price | Grantor | Grantee | ||||
|
1/10/2025 |
|
Deeds |
$210,000 |
BEN SARAH CHRISTINE |
ISLAND LISA DIANN & RODRICK EUGENE |
|||||
|
11/21/2022 |
|
Hmstd Off & |
$0 |
SUNNYSLOPE REALTY LLC |
BEN SARAH CHRISTINE |
|||||
|
1/3/2020 |
|
Deeds |
$155,000 |
LOYD KERRIE RAELYN |
SUNNYSLOPE REALTY LLC |
|||||
|
4/13/2017 |
|
Deeds |
$133,000 |
HARPER ADAM N PLASTERS MICHELLE L |
LOYD KERRIE RAELYN |
|||||
|
6/21/2013 |
|
Deeds |
$123,000 |
TAYLOR JASON W TAYLOR WILLIAM H |
HARPER ADAM N PLASTERS MICHELLE L |
|||||
| Last Mailed Notice of Value (N.O.V.) Information/History | ||||||||
|---|---|---|---|---|---|---|---|---|
| Year | Date | Market Value | Taxable Market Value | Gross Assessed | Exemption | Net Assessed | ||
|
2026 |
02/23/2026 |
219,500 |
219,500 |
24,145 |
0 |
24,145 |
||
|
2025 |
02/14/2025 |
202,000 |
180,502 |
19,854 |
0 |
19,854 |
||
|
2024 |
02/13/2024 |
199,000 |
171,907 |
18,909 |
0 |
18,909 |
||
|
2023 |
02/14/2023 |
189,500 |
163,721 |
18,008 |
0 |
18,008 |
||
|
2022 |
03/15/2022 |
162,000 |
155,925 |
17,151 |
0 |
17,151 |
||
| Property Building Permit History | ||||||
|---|---|---|---|---|---|---|
| Issued | Permit # | Provided by | Bldg # | Description | Est Construction Cost | Status |
|
4/25/2001 |
10204493 |
OKLAHOMA CITY |
1 |
Main Dwellin |
80,000 |
Inactive |
|
3/14/1995 |
10204494 |
OKLAHOMA CITY |
1 |
Main Dwellin |
50,000 |
Inactive |
| Click button on building number to access detailed information: | ||||||
|---|---|---|---|---|---|---|
| Bldg # | Vacant/Improved Land | Bldg Description | Year Built | SqFt | # Stories | |
|
1 |
Improved |
Ranch 1 Story |
2001 |
1,500 |
1 Stories |
|