|
|
|
| Larry Stein Oklahoma County Assessor (405) 713-1200 - Public Access System |
|
|
|
|
|
|
| Real Property Display - Screen Produced 4/5/2026 2:43:12 AM | ||||
|---|---|---|---|---|
| Account: R109921160 | Type: Residential | Location: |
11605 VICTORIA PL |
|
| Building Name/Occupant: |
|
OKLAHOMA CITY |
||
| Owner Name 1: | ROBERTS BRIAN & LIA |
Parcel PIN#: |
3676-10-992-1160 |
|
| Owner Name 2: | 1/4 section #: |
3676 |
||
| Owner Name 3: | Parent Acct: |
|
||
| Billing Address: | 11605 VICTORIA PL | Tax District: |
|
|
| City, State, Zip | OKLAHOMA CITY, OK 73120-6915 | School System: |
Oklahoma City #89 |
|
|
Country: (If noted) |
Land Size: |
0.2439 Acres |
||
|
Land Value: 39,848 |
|
|||
|
Sect 19-T13N-R3W Qtr NW |
BEL AIR SEC 2 STONEGATE
Block
037
Lot
009
|
|||
| Full Legal Description: BEL AIR SEC 2 STONEGATE 037 009 |
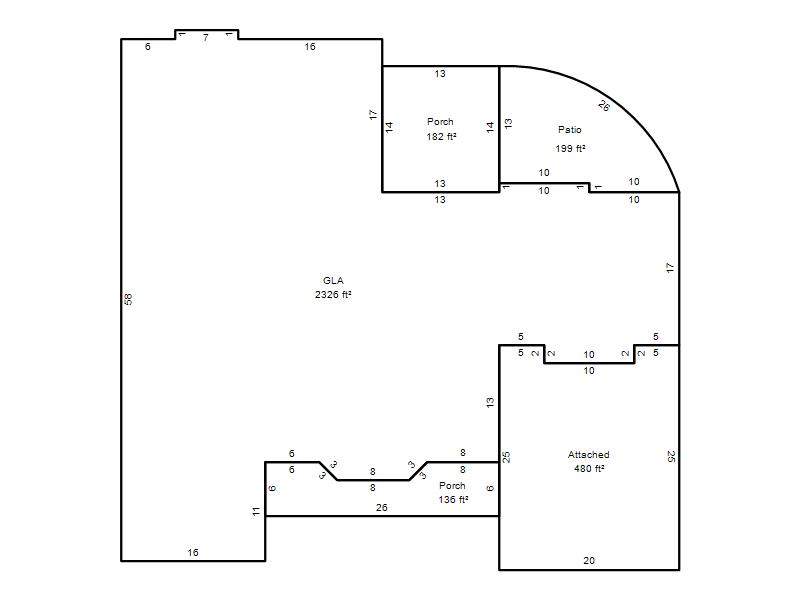
| Photo & Sketch (if available) | Comp Sales (ordered by relevancy) |
|
||||||||||||||||||
|
||||||||||||||||||||
| Value History (*The County Treasurer 405-713-1300 posts & collects actual tax amounts. Contact information HERE) | |||||||||||||
|---|---|---|---|---|---|---|---|---|---|---|---|---|---|
| Year | Market Value | Taxable Mkt Value | Gross Assessed | Exemption | Net Assessed | Millage | Est. Tax | Tax Savings | |||||
|
2026 |
313,000 |
313,000 |
34,430 |
0 |
34,430 |
122.90 |
$4,231 |
$0 |
|||||
|
2025 |
307,500 |
307,500 |
33,825 |
0 |
33,825 |
122.90 |
$4,157 |
$0 |
|||||
|
2024 |
301,000 |
234,997 |
25,848 |
0 |
25,848 |
123.89 |
$3,203 |
$899 |
|||||
|
2023 |
285,500 |
223,807 |
24,618 |
0 |
24,618 |
122.82 |
$3,024 |
$833 |
|||||
|
2022 |
242,000 |
213,150 |
23,446 |
0 |
23,446 |
117.63 |
$2,758 |
$373 |
|||||
| Property Account Status/Adjustments/Exemptions | ||
|---|---|---|
| Account # | Exemption Description | Amount |
|
R109921160 |
5% Capped Account |
0 |
| Property Deed Transaction History (Recorded in the County Clerk's Office) | ||||||||||
|---|---|---|---|---|---|---|---|---|---|---|
| Date | Type | Book | Page | Price | Grantor | Grantee | ||||
|
1/22/2024 |
|
Deeds |
$307,500 |
JOHNSON TAYLOR |
ROBERTS BRIAN & LIA |
|||||
|
10/27/2017 |
|
Deeds |
$189,000 |
GRAVES JON & COURTNEY |
JOHNSON TAYLOR |
|||||
|
12/6/2012 |
|
Deeds |
$165,000 |
BROWN JOE K & TAMBRA L |
GRAVES JON & COURTNEY |
|||||
|
3/29/2012 |
|
Deeds |
$65,000 |
FIDLER NINA F |
BROWN JOE K & TAMBRA L |
|||||
|
11/13/1989 |
|
Historical |
$0 |
FIDLER JOHN B & NINA F |
FIDLER NINA F |
|||||
| Last Mailed Notice of Value (N.O.V.) Information/History | ||||||||
|---|---|---|---|---|---|---|---|---|
| Year | Date | Market Value | Taxable Market Value | Gross Assessed | Exemption | Net Assessed | ||
|
2026 |
02/23/2026 |
313,000 |
313,000 |
34,430 |
0 |
34,430 |
||
|
2025 |
02/14/2025 |
307,500 |
307,500 |
33,825 |
0 |
33,825 |
||
|
2024 |
02/13/2024 |
301,000 |
234,997 |
25,848 |
0 |
25,848 |
||
|
2023 |
02/14/2023 |
285,500 |
223,807 |
24,618 |
0 |
24,618 |
||
|
2022 |
03/15/2022 |
242,000 |
213,150 |
23,446 |
0 |
23,446 |
||
| Property Building Permit History | |||||||||||
|---|---|---|---|---|---|---|---|---|---|---|---|
| Issued | Permit # | Provided by | Bldg # | Description | Est Construction Cost | Status | |||||
| No Building Permit records returned. | |||||||||||
| Click button on building number to access detailed information: | ||||||
|---|---|---|---|---|---|---|
| Bldg # | Vacant/Improved Land | Bldg Description | Year Built | SqFt | # Stories | |
|
1 |
Improved |
Ranch 1 Story |
1968 |
2,326 |
1 Stories |
|