|
|
|
| Larry Stein Oklahoma County Assessor (405) 713-1200 - Public Access System |
|
|
|
|
|
|
| Real Property Display - Screen Produced 3/18/2026 3:52:59 AM | ||||
|---|---|---|---|---|
| Account: R130763785 | Type: Residential | Location: |
505 NW 111TH ST |
|
| Building Name/Occupant: |
|
OKLAHOMA CITY |
||
| Owner Name 1: | JOMI PROPERTIES LLC |
Parcel PIN#: |
3683-13-076-3785 |
|
| Owner Name 2: | 1/4 section #: |
3683 |
||
| Owner Name 3: | Parent Acct: |
3683-13-076-3780 |
||
| Billing Address: | 505 NW 111TH ST | Tax District: |
|
|
| City, State, Zip | OKLAHOMA CITY, OK 73114-6814 | School System: |
Oklahoma City #89 |
|
|
Country: (If noted) |
Land Size: |
0.1607 Acres |
||
|
Land Value: 28,000 |
|
|||
|
Sect 21-T13N-R3W Qtr SW |
COLLEGE PARK ADD
Block
029
Lot
000
|
|||
| Full Legal Description: COLLEGE PARK ADD 029 000 LOTS 45 & 46 |
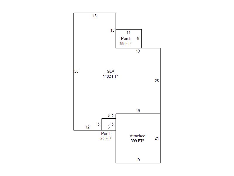
| Photo & Sketch (if available) | Comp Sales (ordered by relevancy) |
|
||||||||||||||||||
|
||||||||||||||||||||
| Value History (*The County Treasurer 405-713-1300 posts & collects actual tax amounts. Contact information HERE) | |||||||||||||
|---|---|---|---|---|---|---|---|---|---|---|---|---|---|
| Year | Market Value | Taxable Mkt Value | Gross Assessed | Exemption | Net Assessed | Millage | Est. Tax | Tax Savings | |||||
| No PropertyValuation records returned. | |||||||||||||
| Property Account Status/Adjustments/Exemptions | ||
|---|---|---|
| Account # | Exemption Description | Amount |
|
R130763785 |
5% Capped Account |
0 |
| Property Deed Transaction History (Recorded in the County Clerk's Office) | |||||||
|---|---|---|---|---|---|---|---|
| Date | Type | Book | Page | Price | Grantor | Grantee | |
|
4/29/2024 |
|
Deeds |
$187,000 |
JOSEPH GEORGE |
JOMI PROPERTIES LLC |
||
|
6/12/2018 |
|
Deeds |
$105,000 |
GRISHAM CHARLES D & PATRICIA A |
JOSEPH GEORGE |
||
|
4/18/2011 |
|
Deeds |
$0 |
GIRSHAM PATRICIA A |
GRISHAM CHARLES D & PATRICIA A |
||
|
4/18/2011 |
|
Hmstd Off & |
$0 |
GRISHAM PATRICIA A |
GRISHAM CHARLES D & PATRICIA A |
||
| Last Mailed Notice of Value (N.O.V.) Information/History | ||||||||
|---|---|---|---|---|---|---|---|---|
| Year | Date | Market Value | Taxable Market Value | Gross Assessed | Exemption | Net Assessed | ||
| No Notice of Value N.O.V. records returned. | ||||||||
| Property Building Permit History | ||||||
|---|---|---|---|---|---|---|
| Issued | Permit # | Provided by | Bldg # | Description | Est Construction Cost | Status |
|
10/23/2006 |
10329661 |
OKLAHOMA CITY |
1 |
Main Dwellin |
80,000 |
Inactive |
| Click button on building number to access detailed information: | ||||||
|---|---|---|---|---|---|---|
| Bldg # | Vacant/Improved Land | Bldg Description | Year Built | SqFt | # Stories | |
|
1 |
Improved |
Ranch 1 Story |
2007 |
1,402 |
1 Stories |
|