|
|
|
| Larry Stein Oklahoma County Assessor (405) 713-1200 - Public Access System |
|
|
|
|
|
|
| Real Property Display - Screen Produced 4/1/2026 12:28:16 PM | ||||
|---|---|---|---|---|
| Account: R130751315 | Type: Residential | Location: |
220 ALLENHURST AVE |
|
| Building Name/Occupant: |
|
OKLAHOMA CITY |
||
| Owner Name 1: | ROBINSON KOOPER |
Parcel PIN#: |
3687-13-075-1315 |
|
| Owner Name 2: | ROBINSON MICHAEL WAYNE | 1/4 section #: |
3687 |
|
| Owner Name 3: | ROBINSON KATHY | Parent Acct: |
|
|
| Billing Address: | 5000 W SIMPSON RD | Tax District: |
|
|
| City, State, Zip | EDMOND, OK 73025-1480 | School System: |
Oklahoma City #89 |
|
|
Country: (If noted) |
Land Size: |
0.1939 Acres |
||
|
Land Value: 23,654 |
|
|||
|
Sect 22-T13N-R3W Qtr SW |
BROADWAY PARK
Block
002
Lot
007
|
|||
| Full Legal Description: BROADWAY PARK 002 007 |
| Photo & Sketch (if available) | Comp Sales (ordered by relevancy) |
|
||||||||||||||||||
|
||||||||||||||||||||
| Value History (*The County Treasurer 405-713-1300 posts & collects actual tax amounts. Contact information HERE) | |||||||||||||
|---|---|---|---|---|---|---|---|---|---|---|---|---|---|
| Year | Market Value | Taxable Mkt Value | Gross Assessed | Exemption | Net Assessed | Millage | Est. Tax | Tax Savings | |||||
|
2026 |
143,500 |
143,325 |
15,765 |
0 |
15,765 |
122.90 |
$1,938 |
$2 |
|||||
|
2025 |
136,500 |
136,500 |
15,015 |
0 |
15,015 |
122.90 |
$1,845 |
$0 |
|||||
|
2024 |
133,500 |
133,500 |
14,685 |
0 |
14,685 |
123.89 |
$1,819 |
$0 |
|||||
|
2023 |
112,500 |
76,639 |
8,429 |
1,000 |
7,429 |
122.82 |
$913 |
$607 |
|||||
|
2022 |
87,500 |
74,407 |
8,183 |
1,000 |
7,183 |
117.63 |
$845 |
$287 |
|||||
| Property Account Status/Adjustments/Exemptions | ||
|---|---|---|
| Account # | Exemption Description | Amount |
|
R130751315 |
5% Capped Account |
0 |
| Property Deed Transaction History (Recorded in the County Clerk's Office) | ||||||||||
|---|---|---|---|---|---|---|---|---|---|---|
| Date | Type | Book | Page | Price | Grantor | Grantee | ||||
|
9/22/2023 |
|
Deeds |
$160,000 |
HOWARD KRISTI BROX |
ROBINSON KOOPER |
|||||
|
5/28/2019 |
|
Deeds |
$0 |
WILLIAMS ANTHONY DARRELL |
WILLIAMS KRISTI BROX |
|||||
|
10/7/2004 |
|
Deeds |
$70,000 |
HOMES OF OKC INC |
HOWARD KRISTI B |
|||||
|
3/29/2004 |
|
Deeds |
$40,000 |
ELLIOTT MICHAEL D |
HOMES OF OKC INC |
|||||
|
12/30/1991 |
|
Historical |
$32,000 |
CRAY ELLEN MICKENS |
ELLIOTT MICHAEL D |
|||||
| Last Mailed Notice of Value (N.O.V.) Information/History | ||||||||
|---|---|---|---|---|---|---|---|---|
| Year | Date | Market Value | Taxable Market Value | Gross Assessed | Exemption | Net Assessed | ||
|
2026 |
02/23/2026 |
143,500 |
143,325 |
15,765 |
0 |
15,765 |
||
|
2025 |
02/14/2025 |
136,500 |
136,500 |
15,015 |
0 |
15,015 |
||
|
2024 |
02/13/2024 |
133,500 |
133,500 |
14,685 |
0 |
14,685 |
||
|
2023 |
02/14/2023 |
112,500 |
76,639 |
8,429 |
1,000 |
7,429 |
||
|
2022 |
03/15/2022 |
87,500 |
74,407 |
8,183 |
1,000 |
7,183 |
||
| Property Building Permit History | |||||||||||
|---|---|---|---|---|---|---|---|---|---|---|---|
| Issued | Permit # | Provided by | Bldg # | Description | Est Construction Cost | Status | |||||
| No Building Permit records returned. | |||||||||||
| Click button on building number to access detailed information: | ||||||
|---|---|---|---|---|---|---|
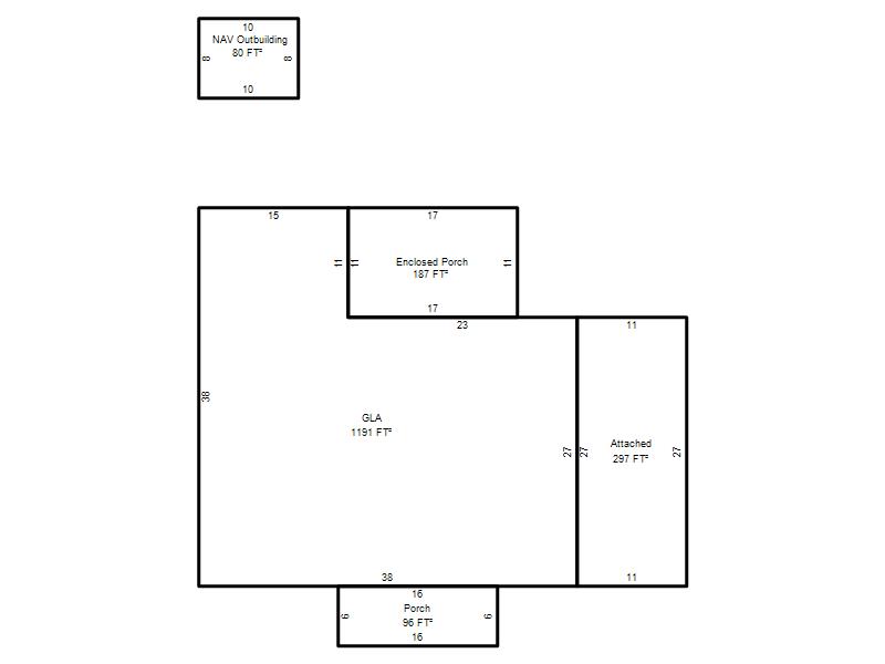
| Bldg # | Vacant/Improved Land | Bldg Description | Year Built | SqFt | # Stories | |
|
1 |
Improved |
Ranch 1 Story |
1963 |
1,191 |
1 Stories |
|