|
|
|
| Larry Stein Oklahoma County Assessor (405) 713-1200 - Public Access System |
|
|
|
|
|
|
| Real Property Display - Screen Produced 3/3/2026 11:04:58 AM | ||||
|---|---|---|---|---|
| Account: R130202665 | Type: Residential | Location: |
611 NW 94TH ST |
|
| Building Name/Occupant: |
|
OKLAHOMA CITY |
||
| Owner Name 1: | COCHRANE JEREMIAH WULLF & RAIMIE WULLF |
Parcel PIN#: |
3711-13-020-2665 |
|
| Owner Name 2: | 1/4 section #: |
3711 |
||
| Owner Name 3: | Parent Acct: |
|
||
| Billing Address: | 611 NW 94TH ST | Tax District: |
|
|
| City, State, Zip | OKLAHOMA CITY, OK 73114-6403 | School System: |
Oklahoma City #89 |
|
|
Country: (If noted) |
Land Size: |
0.1607 Acres |
||
|
Land Value: 11,900 |
|
|||
|
Sect 28-T13N-R3W Qtr SW |
EAST BRITTON ADD
Block
023
Lot
000
|
|||
| Full Legal Description: EAST BRITTON ADD 023 000 LOTS 39 & 40 |
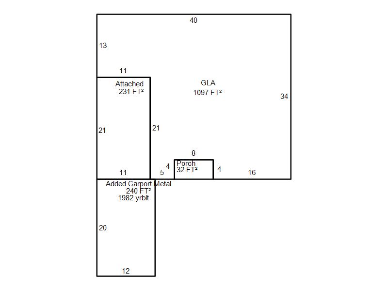
| Photo & Sketch (if available) | Comp Sales (ordered by relevancy) |
|
||||||||||||||||||
|
||||||||||||||||||||
| Value History (*The County Treasurer 405-713-1300 posts & collects actual tax amounts. Contact information HERE) | |||||||||||||
|---|---|---|---|---|---|---|---|---|---|---|---|---|---|
| Year | Market Value | Taxable Mkt Value | Gross Assessed | Exemption | Net Assessed | Millage | Est. Tax | Tax Savings | |||||
|
2025 |
145,500 |
145,500 |
16,005 |
0 |
16,005 |
122.90 |
$1,967 |
$0 |
|||||
|
2024 |
101,000 |
18,921 |
2,081 |
1,000 |
1,081 |
123.89 |
$134 |
$1,242 |
|||||
|
2023 |
100,000 |
18,921 |
2,081 |
1,000 |
1,081 |
122.82 |
$133 |
$1,218 |
|||||
|
2022 |
81,000 |
18,921 |
2,081 |
1,000 |
1,081 |
117.63 |
$127 |
$921 |
|||||
|
2021 |
65,500 |
18,921 |
2,081 |
1,000 |
1,081 |
117.70 |
$127 |
$721 |
|||||
| Property Account Status/Adjustments/Exemptions | ||
|---|---|---|
| Account # | Exemption Description | Amount |
|
R130202665 |
5% Capped Account |
0 |
| Property Deed Transaction History (Recorded in the County Clerk's Office) | |||||||
|---|---|---|---|---|---|---|---|
| Date | Type | Book | Page | Price | Grantor | Grantee | |
|
10/28/2024 |
|
Deeds |
$170,000 |
SHEPHERD KENNETH |
COCHRANE JEREMIAH WULLF & RAIMIE WULLF |
||
|
7/8/2024 |
|
Hmstd Off & |
$0 |
WOLF EARNEST G & NANCY CO TRS |
WOLF DAVID C SUCC TRS |
||
|
7/8/2024 |
|
Deeds |
$70,000 |
WOLF DAVID C SUCC TRS |
SHEPHERD KENNETH |
||
|
8/26/1997 |
|
Historical |
$0 |
WOLF EARNEST G & NANCY S |
WOLF EARNEST G & NANCY CO TRS |
||
|
11/11/1911 |
|
Historical |
$0 |
|
WOLF EARNEST G & NANCY S |
||
| Last Mailed Notice of Value (N.O.V.) Information/History | ||||||||
|---|---|---|---|---|---|---|---|---|
| Year | Date | Market Value | Taxable Market Value | Gross Assessed | Exemption | Net Assessed | ||
|
2025 |
02/14/2025 |
145,500 |
145,500 |
16,005 |
0 |
16,005 |
||
|
2024 |
02/13/2024 |
101,000 |
18,921 |
2,081 |
1,000 |
1,081 |
||
|
2023 |
02/14/2023 |
100,000 |
18,921 |
2,081 |
1,000 |
1,081 |
||
|
2022 |
03/15/2022 |
81,000 |
18,921 |
2,081 |
1,000 |
1,081 |
||
|
2021 |
03/19/2021 |
65,500 |
18,921 |
2,081 |
1,000 |
1,081 |
||
| Property Building Permit History | |||||||||||
|---|---|---|---|---|---|---|---|---|---|---|---|
| Issued | Permit # | Provided by | Bldg # | Description | Est Construction Cost | Status | |||||
| No Building Permit records returned. | |||||||||||
| Click button on building number to access detailed information: | ||||||
|---|---|---|---|---|---|---|
| Bldg # | Vacant/Improved Land | Bldg Description | Year Built | SqFt | # Stories | |
|
1 |
Improved |
Ranch 1 Story |
1961 |
1,097 |
1 Stories |
|