|
|
|
| Larry Stein Oklahoma County Assessor (405) 713-1200 - Public Access System |
|
|
|
|
|
|
| Real Property Display - Screen Produced 3/3/2026 5:06:38 PM | ||||
|---|---|---|---|---|
| Account: R130562400 | Type: Residential | Location: |
1017 NW 99TH ST |
|
| Building Name/Occupant: |
|
OKLAHOMA CITY |
||
| Owner Name 1: | TEKTON PROPERTIES LLC |
Parcel PIN#: |
3711-13-056-2400 |
|
| Owner Name 2: | 1/4 section #: |
3711 |
||
| Owner Name 3: | Parent Acct: |
|
||
| Billing Address: | 16613 LITTLE LEAF LN | Tax District: |
|
|
| City, State, Zip | EDMOND, OK 73012 | School System: |
Oklahoma City #89 |
|
|
Country: (If noted) |
Land Size: |
0.1607 Acres |
||
|
Land Value: 11,900 |
|
|||
|
Sect 28-T13N-R3W Qtr SW |
CENTRAL VIEW HEIGHTS
Block
002
Lot
000
|
|||
| Full Legal Description: CENTRAL VIEW HEIGHTS 002 000 LOTS 42 & 43 |
| Photo & Sketch (if available) | Comp Sales (ordered by relevancy) |
|
||||||||||||||||||
|
||||||||||||||||||||
| Value History (*The County Treasurer 405-713-1300 posts & collects actual tax amounts. Contact information HERE) | |||||||||||||
|---|---|---|---|---|---|---|---|---|---|---|---|---|---|
| Year | Market Value | Taxable Mkt Value | Gross Assessed | Exemption | Net Assessed | Millage | Est. Tax | Tax Savings | |||||
|
2025 |
72,000 |
65,984 |
7,257 |
0 |
7,257 |
122.90 |
$892 |
$81 |
|||||
|
2024 |
64,000 |
62,842 |
6,912 |
0 |
6,912 |
123.89 |
$856 |
$16 |
|||||
|
2023 |
62,000 |
59,850 |
6,583 |
0 |
6,583 |
122.82 |
$809 |
$29 |
|||||
|
2022 |
57,000 |
57,000 |
6,270 |
0 |
6,270 |
117.63 |
$738 |
$0 |
|||||
|
2021 |
42,500 |
41,475 |
4,562 |
0 |
4,562 |
117.70 |
$537 |
$13 |
|||||
| Property Account Status/Adjustments/Exemptions | ||
|---|---|---|
| Account # | Exemption Description | Amount |
|
R130562400 |
5% Capped Account |
0 |
| Property Deed Transaction History (Recorded in the County Clerk's Office) | ||||||||||
|---|---|---|---|---|---|---|---|---|---|---|
| Date | Type | Book | Page | Price | Grantor | Grantee | ||||
|
10/4/2021 |
|
Deeds |
$48,000 |
SHIPLEY TREVOR D |
OGLE PROPERTY SOLUTIONS LLC |
|||||
|
10/4/2021 |
|
Deeds |
$58,000 |
OGLE PROPERTY SOLUTIONS LLC |
TEKTON PROPERTIES LLC |
|||||
|
10/16/2017 |
|
Deeds |
$40,000 |
SHIPLEY TREVOR |
WILSON RODNEY D |
|||||
|
10/13/2017 |
|
Deeds |
$0 |
SHIPLEY DINA M |
SHIPLEY TREVOR D |
|||||
|
4/3/2017 |
|
Deeds |
$0 |
SHIPLEY TREVOR D & DINA M |
SHIPLEY TREVOR |
|||||
| Last Mailed Notice of Value (N.O.V.) Information/History | ||||||||
|---|---|---|---|---|---|---|---|---|
| Year | Date | Market Value | Taxable Market Value | Gross Assessed | Exemption | Net Assessed | ||
|
2026 |
02/23/2026 |
73,000 |
69,283 |
7,620 |
0 |
7,620 |
||
|
2025 |
02/14/2025 |
72,000 |
65,984 |
7,257 |
0 |
7,257 |
||
|
2024 |
02/13/2024 |
64,000 |
62,842 |
6,912 |
0 |
6,912 |
||
|
2023 |
02/14/2023 |
62,000 |
59,850 |
6,583 |
0 |
6,583 |
||
|
2022 |
03/15/2022 |
57,000 |
57,000 |
6,270 |
0 |
6,270 |
||
| Property Building Permit History | |||||||||||
|---|---|---|---|---|---|---|---|---|---|---|---|
| Issued | Permit # | Provided by | Bldg # | Description | Est Construction Cost | Status | |||||
| No Building Permit records returned. | |||||||||||
| Click button on building number to access detailed information: | ||||||
|---|---|---|---|---|---|---|
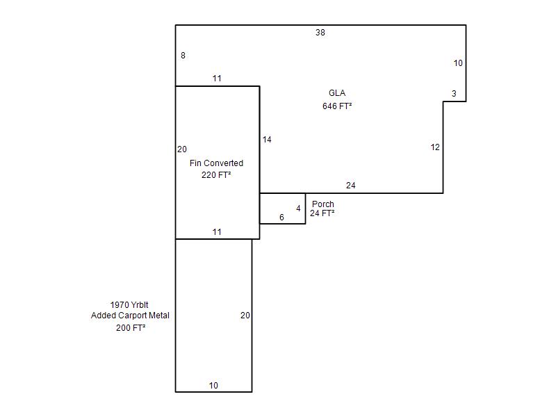
| Bldg # | Vacant/Improved Land | Bldg Description | Year Built | SqFt | # Stories | |
|
1 |
Improved |
Ranch 1 Story |
1946 |
646 |
1 Stories |
|