|
|
|
| Larry Stein Oklahoma County Assessor (405) 713-1200 - Public Access System |
|
|
|
|
|
|
| Real Property Display - Screen Produced 4/4/2026 10:44:35 AM | ||||
|---|---|---|---|---|
| Account: R130844050 | Type: Residential | Location: |
1013 NW 104TH ST |
|
| Building Name/Occupant: |
|
OKLAHOMA CITY |
||
| Owner Name 1: | STORY SHIRLEE F & DANNY R |
Parcel PIN#: |
3712-13-084-4050 |
|
| Owner Name 2: | 1/4 section #: |
3712 |
||
| Owner Name 3: | Parent Acct: |
|
||
| Billing Address: | 1013 NW 104TH ST | Tax District: |
|
|
| City, State, Zip | OKLAHOMA CITY, OK 73114-5530 | School System: |
Oklahoma City #89 |
|
|
Country: (If noted) |
Land Size: |
0.1864 Acres |
||
|
Land Value: 19,082 |
|
|||
|
Sect 28-T13N-R3W Qtr NW |
HOMEDALE ADDITION
Block
005
Lot
000
|
|||
| Full Legal Description: HOMEDALE ADDITION BLK 005 LOT 000 E19FT OF LOT 38 & ALL OF LOT 39 & W14FT OF LOT 40 |
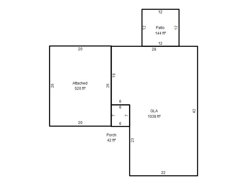
| Photo & Sketch (if available) | Comp Sales (ordered by relevancy) |
|
||||||||||||||||||
|
||||||||||||||||||||
| Value History (*The County Treasurer 405-713-1300 posts & collects actual tax amounts. Contact information HERE) | |||||||||||||
|---|---|---|---|---|---|---|---|---|---|---|---|---|---|
| Year | Market Value | Taxable Mkt Value | Gross Assessed | Exemption | Net Assessed | Millage | Est. Tax | Tax Savings | |||||
|
2026 |
118,500 |
118,500 |
13,035 |
0 |
13,035 |
122.90 |
$1,602 |
$0 |
|||||
|
2025 |
121,500 |
77,616 |
8,537 |
0 |
8,537 |
122.90 |
$1,049 |
$593 |
|||||
|
2024 |
109,500 |
73,920 |
8,131 |
0 |
8,131 |
123.89 |
$1,007 |
$485 |
|||||
|
2023 |
107,000 |
70,400 |
7,743 |
0 |
7,743 |
122.82 |
$951 |
$494 |
|||||
|
2022 |
91,000 |
67,048 |
7,374 |
0 |
7,374 |
117.63 |
$868 |
$310 |
|||||
| Property Account Status/Adjustments/Exemptions | ||||||
|---|---|---|---|---|---|---|
| Account # | Exemption Description | Amount | ||||
| No adjustment/exemption records returned. | ||||||
| Property Deed Transaction History (Recorded in the County Clerk's Office) | |||||||
|---|---|---|---|---|---|---|---|
| Date | Type | Book | Page | Price | Grantor | Grantee | |
|
4/24/2025 |
|
Deeds |
$95,000 |
BRANCH ROBERT JUAREZ |
STORY SHIRLEE F & DANNY R |
||
|
9/19/2018 |
|
Hmstd Off & |
$0 |
BRANCH JAMES L & CLAUDINE |
BRANCH ROBERT JUAREZ |
||
|
5/2/1997 |
|
Historical |
$0 |
BRANCH JAMES L & CLAUDINE |
BRANCH JAMES L & CLAUDINE |
||
|
7/1/1981 |
|
Historical |
$0 |
|
BRANCH JAMES L & CLAUDINE |
||
| Last Mailed Notice of Value (N.O.V.) Information/History | ||||||||
|---|---|---|---|---|---|---|---|---|
| Year | Date | Market Value | Taxable Market Value | Gross Assessed | Exemption | Net Assessed | ||
|
2026 |
02/23/2026 |
118,500 |
118,500 |
13,035 |
0 |
13,035 |
||
|
2025 |
02/14/2025 |
121,500 |
77,616 |
8,537 |
0 |
8,537 |
||
|
2024 |
02/13/2024 |
109,500 |
73,920 |
8,131 |
0 |
8,131 |
||
|
2023 |
02/14/2023 |
107,000 |
70,400 |
7,743 |
0 |
7,743 |
||
|
2022 |
03/15/2022 |
91,000 |
67,048 |
7,374 |
0 |
7,374 |
||
| Property Building Permit History | |||||||||||
|---|---|---|---|---|---|---|---|---|---|---|---|
| Issued | Permit # | Provided by | Bldg # | Description | Est Construction Cost | Status | |||||
| No Building Permit records returned. | |||||||||||
| Click button on building number to access detailed information: | ||||||
|---|---|---|---|---|---|---|
| Bldg # | Vacant/Improved Land | Bldg Description | Year Built | SqFt | # Stories | |
|
1 |
Improved |
Ranch 1 Story |
1969 |
1,038 |
1 Stories |
|