|
|
|
| Larry Stein Oklahoma County Assessor (405) 713-1200 - Public Access System |
|
|
|
|
|
|
| Real Property Display - Screen Produced 3/3/2026 11:00:12 AM | ||||
|---|---|---|---|---|
| Account: R130647550 | Type: Residential | Location: |
1413 NW 97TH ST |
|
| Building Name/Occupant: |
|
OKLAHOMA CITY |
||
| Owner Name 1: | PETTINGER HEATHER J |
Parcel PIN#: |
3714-13-064-7550 |
|
| Owner Name 2: | 1/4 section #: |
3714 |
||
| Owner Name 3: | Parent Acct: |
|
||
| Billing Address: | 1413 NW 97TH ST | Tax District: |
|
|
| City, State, Zip | OKLAHOMA CITY, OK 73114-4807 | School System: |
Oklahoma City #89 |
|
|
Country: (If noted) |
Land Size: |
0.1607 Acres |
||
|
Land Value: 18,200 |
|
|||
|
Sect 29-T13N-R3W Qtr SE |
ALTAVUE ADDITION
Block
025
Lot
000
|
|||
| Full Legal Description: ALTAVUE ADDITION 025 000 LOTS 13 & 14 |
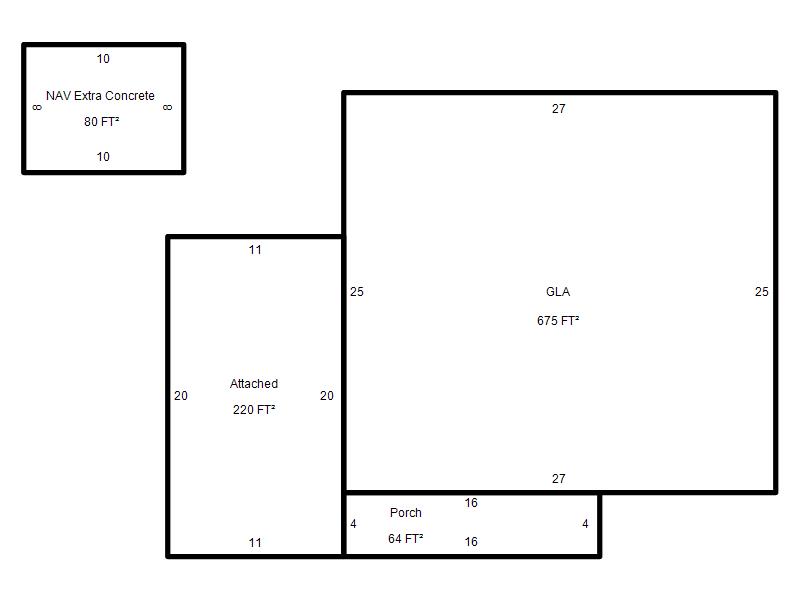
| Photo & Sketch (if available) | Comp Sales (ordered by relevancy) |
|
||||||||||||||||||
|
||||||||||||||||||||
| Value History (*The County Treasurer 405-713-1300 posts & collects actual tax amounts. Contact information HERE) | |||||||||||||
|---|---|---|---|---|---|---|---|---|---|---|---|---|---|
| Year | Market Value | Taxable Mkt Value | Gross Assessed | Exemption | Net Assessed | Millage | Est. Tax | Tax Savings | |||||
|
2025 |
132,500 |
132,500 |
14,575 |
0 |
14,575 |
122.90 |
$1,791 |
$0 |
|||||
|
2024 |
78,000 |
44,576 |
4,902 |
0 |
4,902 |
123.89 |
$607 |
$455 |
|||||
|
2023 |
73,000 |
42,454 |
4,669 |
0 |
4,669 |
122.82 |
$574 |
$413 |
|||||
|
2022 |
54,500 |
40,433 |
4,446 |
0 |
4,446 |
117.63 |
$523 |
$182 |
|||||
|
2021 |
48,500 |
38,508 |
4,235 |
0 |
4,235 |
117.70 |
$499 |
$129 |
|||||
| Property Account Status/Adjustments/Exemptions | ||
|---|---|---|
| Account # | Exemption Description | Amount |
|
R130647550 |
5% Capped Account |
0 |
| Property Deed Transaction History (Recorded in the County Clerk's Office) | ||||||||||
|---|---|---|---|---|---|---|---|---|---|---|
| Date | Type | Book | Page | Price | Grantor | Grantee | ||||
|
9/12/2024 |
|
Deeds |
$155,000 |
WORLD CLASS HOMEBUYERS LLC |
PETTINGER HEATHER J |
|||||
|
4/25/2024 |
|
Deeds |
$62,000 |
FLESHMAN FAMILY INVESTMENTS INC |
WORLD CLASS HOMEBUYERS LLC |
|||||
|
2/26/1991 |
|
Historical |
$6,426 |
SECRETARY OF HOUSING |
FLESHMAN FAMILY |
|||||
|
11/27/1990 |
|
Historical |
$0 |
SHOOPMAN RUSSELL L & TANIA R |
SECRETARY OF HOUSING |
|||||
|
8/1/1986 |
|
Historical |
$0 |
SHOOPMAN RUSSELL LEO |
SHOOPMAN RUSSELL L & TANIA R |
|||||
| Last Mailed Notice of Value (N.O.V.) Information/History | ||||||||
|---|---|---|---|---|---|---|---|---|
| Year | Date | Market Value | Taxable Market Value | Gross Assessed | Exemption | Net Assessed | ||
|
2025 |
02/14/2025 |
132,500 |
132,500 |
14,575 |
0 |
14,575 |
||
|
2024 |
02/13/2024 |
78,000 |
44,576 |
4,902 |
0 |
4,902 |
||
|
2023 |
02/14/2023 |
73,000 |
42,454 |
4,669 |
0 |
4,669 |
||
|
2022 |
03/15/2022 |
54,500 |
40,433 |
4,446 |
0 |
4,446 |
||
|
2021 |
03/19/2021 |
48,500 |
38,508 |
4,235 |
0 |
4,235 |
||
| Property Building Permit History | |||||||||||
|---|---|---|---|---|---|---|---|---|---|---|---|
| Issued | Permit # | Provided by | Bldg # | Description | Est Construction Cost | Status | |||||
| No Building Permit records returned. | |||||||||||
| Click button on building number to access detailed information: | ||||||
|---|---|---|---|---|---|---|
| Bldg # | Vacant/Improved Land | Bldg Description | Year Built | SqFt | # Stories | |
|
1 |
Improved |
Ranch 1 Story |
1949 |
675 |
1 Stories |
|