|
|
|
| Larry Stein Oklahoma County Assessor (405) 713-1200 - Public Access System |
|
|
|
|
|
|
| Real Property Display - Screen Produced 4/4/2026 5:09:19 AM | ||||
|---|---|---|---|---|
| Account: R179421480 | Type: Residential | Location: |
1717 DUBLIN RD |
|
| Building Name/Occupant: |
|
VILLAGE |
||
| Owner Name 1: | GEORGETOWN RESIDENTIAL RENTALS LLC |
Parcel PIN#: |
3715-17-942-1480 |
|
| Owner Name 2: | 1/4 section #: |
3715 |
||
| Owner Name 3: | Parent Acct: |
|
||
| Billing Address: | 324 N ROBINSON AVE, Unit 100 | Tax District: |
|
|
| City, State, Zip | OKLAHOMA CITY, OK 73102-6417 | School System: |
Oklahoma City #89 |
|
|
Country: (If noted) |
Land Size: |
0.1610 Acres |
||
|
Land Value: 32,971 |
|
|||
|
Sect 29-T13N-R3W Qtr SW |
CASADY WAVERLY SEC 2
Block
009
Lot
010
|
|||
| Full Legal Description: CASADY WAVERLY SEC 2 009 010 |
| Photo & Sketch (if available) | Comp Sales (ordered by relevancy) |
|
||||||||||||||||||
|
||||||||||||||||||||
| Value History (*The County Treasurer 405-713-1300 posts & collects actual tax amounts. Contact information HERE) | |||||||||||||
|---|---|---|---|---|---|---|---|---|---|---|---|---|---|
| Year | Market Value | Taxable Mkt Value | Gross Assessed | Exemption | Net Assessed | Millage | Est. Tax | Tax Savings | |||||
|
2026 |
234,500 |
234,500 |
25,795 |
0 |
25,795 |
122.45 |
$3,159 |
$0 |
|||||
|
2025 |
232,000 |
227,630 |
25,039 |
1,000 |
24,039 |
122.45 |
$2,944 |
$181 |
|||||
|
2024 |
221,000 |
221,000 |
24,310 |
1,000 |
23,310 |
124.97 |
$2,913 |
$125 |
|||||
|
2023 |
176,000 |
176,000 |
19,360 |
0 |
19,360 |
120.11 |
$2,325 |
$0 |
|||||
|
2022 |
152,500 |
114,427 |
12,585 |
0 |
12,585 |
115.25 |
$1,451 |
$483 |
|||||
| Property Account Status/Adjustments/Exemptions | ||||||
|---|---|---|---|---|---|---|
| Account # | Exemption Description | Amount | ||||
| No adjustment/exemption records returned. | ||||||
| Property Deed Transaction History (Recorded in the County Clerk's Office) | ||||||||||
|---|---|---|---|---|---|---|---|---|---|---|
| Date | Type | Book | Page | Price | Grantor | Grantee | ||||
|
1/31/2025 |
|
Deeds |
$220,000 |
SIMCO SAMUEL L |
GEORGETOWN RESIDENTIAL RENTALS LLC |
|||||
|
4/14/2023 |
|
Deeds |
$225,000 |
NIGHT OWL INVESTMENT LLC |
SIMCO SAMUEL L |
|||||
|
9/29/2022 |
|
Deeds |
$145,000 |
PHAM LONG K |
INDEPENDENCE INVESTING LLC |
|||||
|
9/29/2022 |
|
Deeds |
$174,000 |
INDEPENDENCE INVESTING LLC |
NIGHT OWL INVESTMENT LLC |
|||||
|
4/13/2018 |
|
Hmstd Off & |
$0 |
PHAM TANG KIM |
PHAM LONG K |
|||||
| Last Mailed Notice of Value (N.O.V.) Information/History | ||||||||
|---|---|---|---|---|---|---|---|---|
| Year | Date | Market Value | Taxable Market Value | Gross Assessed | Exemption | Net Assessed | ||
|
2026 |
02/23/2026 |
234,500 |
234,500 |
25,795 |
0 |
25,795 |
||
|
2025 |
02/14/2025 |
232,000 |
227,630 |
25,039 |
1,000 |
24,039 |
||
|
2025 |
03/28/2025 |
232,000 |
227,630 |
25,039 |
1,000 |
24,039 |
||
|
2024 |
02/13/2024 |
221,000 |
221,000 |
24,310 |
1,000 |
23,310 |
||
|
2023 |
02/14/2023 |
176,000 |
176,000 |
19,360 |
0 |
19,360 |
||
| Property Building Permit History | |||||||||||
|---|---|---|---|---|---|---|---|---|---|---|---|
| Issued | Permit # | Provided by | Bldg # | Description | Est Construction Cost | Status | |||||
| No Building Permit records returned. | |||||||||||
| Click button on building number to access detailed information: | ||||||
|---|---|---|---|---|---|---|
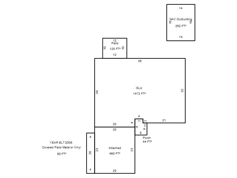
| Bldg # | Vacant/Improved Land | Bldg Description | Year Built | SqFt | # Stories | |
|
1 |
Improved |
Ranch 1 Story |
1972 |
1,472 |
1 Stories |
|