|
|
|
| Larry Stein Oklahoma County Assessor (405) 713-1200 - Public Access System |
|
|
|
|
|
|
| Real Property Display - Screen Produced 4/1/2026 3:07:58 AM | ||||
|---|---|---|---|---|
| Account: R179491095 | Type: Residential | Location: |
1924 PLYMOUTH LN |
|
| Building Name/Occupant: |
|
VILLAGE |
||
| Owner Name 1: | TWEEDY LEE CHRISTOPHER |
Parcel PIN#: |
3716-17-949-1095 |
|
| Owner Name 2: | TWEEDY KARA S | 1/4 section #: |
3716 |
|
| Owner Name 3: | Parent Acct: |
|
||
| Billing Address: | 517 MACY ST | Tax District: |
|
|
| City, State, Zip | NORMAN, OK 73071-5026 | School System: |
Oklahoma City #89 |
|
|
Country: (If noted) |
Land Size: |
0.1894 Acres |
||
|
Land Value: 35,475 |
|
|||
|
Sect 29-T13N-R3W Qtr NW |
CASADY MANOR 3RD
Block
013
Lot
010
|
|||
| Full Legal Description: CASADY MANOR 3RD 013 010 |
| Photo & Sketch (if available) | Comp Sales (ordered by relevancy) |
|
||||||||||||||||||
|
||||||||||||||||||||
| Value History (*The County Treasurer 405-713-1300 posts & collects actual tax amounts. Contact information HERE) | |||||||||||||
|---|---|---|---|---|---|---|---|---|---|---|---|---|---|
| Year | Market Value | Taxable Mkt Value | Gross Assessed | Exemption | Net Assessed | Millage | Est. Tax | Tax Savings | |||||
|
2026 |
237,000 |
237,000 |
26,070 |
0 |
26,070 |
122.45 |
$3,192 |
$0 |
|||||
|
2025 |
186,000 |
186,000 |
20,460 |
0 |
20,460 |
122.45 |
$2,505 |
$0 |
|||||
|
2024 |
184,500 |
153,153 |
16,846 |
0 |
16,846 |
124.97 |
$2,105 |
$431 |
|||||
|
2023 |
178,000 |
145,860 |
16,044 |
0 |
16,044 |
120.11 |
$1,927 |
$425 |
|||||
|
2022 |
148,000 |
138,915 |
15,280 |
0 |
15,280 |
115.25 |
$1,761 |
$115 |
|||||
| Property Account Status/Adjustments/Exemptions | ||||||
|---|---|---|---|---|---|---|
| Account # | Exemption Description | Amount | ||||
| No adjustment/exemption records returned. | ||||||
| Property Deed Transaction History (Recorded in the County Clerk's Office) | ||||||||||
|---|---|---|---|---|---|---|---|---|---|---|
| Date | Type | Book | Page | Price | Grantor | Grantee | ||||
|
2/21/2025 |
|
Deeds |
$235,000 |
RAMIREZ BALDOMAR |
TWEEDY LEE CHRISTOPHER & KARA S |
|||||
|
2/21/2025 |
|
Hmstd Off & |
$0 |
RAMIREZ BALDOMAR |
TWEEDY LEE CHRISTOPHER |
|||||
|
5/8/2024 |
|
Deeds |
$140,000 |
CUDJOE KENDAL LEROY |
RODRIGUEZ BALDOMAR |
|||||
|
5/8/2024 |
|
Deeds |
$0 |
CUDJOE KENDAL LEROY |
RAMIREZ BALDOMAR |
|||||
|
5/8/2024 |
|
Hmstd Off & |
$0 |
CUDJOE KENDAL LEROY |
RAMIREZ BALDOMAR |
|||||
| Last Mailed Notice of Value (N.O.V.) Information/History | ||||||||
|---|---|---|---|---|---|---|---|---|
| Year | Date | Market Value | Taxable Market Value | Gross Assessed | Exemption | Net Assessed | ||
|
2026 |
02/23/2026 |
237,000 |
237,000 |
26,070 |
0 |
26,070 |
||
|
2025 |
02/14/2025 |
186,000 |
186,000 |
20,460 |
0 |
20,460 |
||
|
2025 |
03/28/2025 |
186,000 |
186,000 |
20,460 |
0 |
20,460 |
||
|
2024 |
02/13/2024 |
184,500 |
153,153 |
16,846 |
0 |
16,846 |
||
|
2023 |
02/14/2023 |
178,000 |
145,860 |
16,044 |
0 |
16,044 |
||
| Property Building Permit History | |||||||||||
|---|---|---|---|---|---|---|---|---|---|---|---|
| Issued | Permit # | Provided by | Bldg # | Description | Est Construction Cost | Status | |||||
| No Building Permit records returned. | |||||||||||
| Click button on building number to access detailed information: | ||||||
|---|---|---|---|---|---|---|
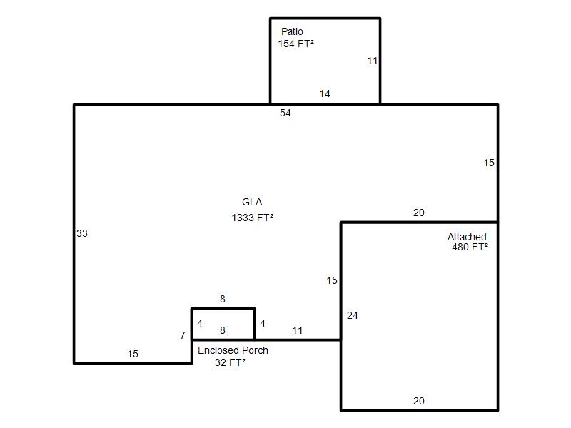
| Bldg # | Vacant/Improved Land | Bldg Description | Year Built | SqFt | # Stories | |
|
1 |
Improved |
Ranch 1 Story |
1961 |
1,333 |
1 Stories |
|