|
|
|
| Larry Stein Oklahoma County Assessor (405) 713-1200 - Public Access System |
|
|
|
|
|
|
| Real Property Display - Screen Produced 4/2/2026 7:21:46 AM | ||||
|---|---|---|---|---|
| Account: R179341785 | Type: Residential | Location: |
2403 W BRITTON RD |
|
| Building Name/Occupant: |
|
VILLAGE |
||
| Owner Name 1: | SFR WORKFORCE OWNER 2 LLC |
Parcel PIN#: |
3718-17-934-1785 |
|
| Owner Name 2: | 1/4 section #: |
3718 |
||
| Owner Name 3: | Parent Acct: |
|
||
| Billing Address: | PO BOX 4900 | Tax District: |
|
|
| City, State, Zip | SCOTTSDALE, AZ 85261 | School System: |
Oklahoma City #89 |
|
|
Country: (If noted) |
UNITED STATES |
Land Size: |
0.1491 Acres |
|
|
Land Value: 26,958 |
|
|||
|
Sect 30-T13N-R3W Qtr SE |
CASADY HEIGHTS 6TH
Block
015
Lot
000
|
|||
| Full Legal Description: CASADY HEIGHTS 6TH 015 000 E16FT OF LOT 45 & ALL OF LOTS 46 & 47 & W2FT OF LOT 48 |
| Photo & Sketch (if available) | Comp Sales (ordered by relevancy) |
|
||||||||||||||||||
|
||||||||||||||||||||
| Value History (*The County Treasurer 405-713-1300 posts & collects actual tax amounts. Contact information HERE) | |||||||||||||
|---|---|---|---|---|---|---|---|---|---|---|---|---|---|
| Year | Market Value | Taxable Mkt Value | Gross Assessed | Exemption | Net Assessed | Millage | Est. Tax | Tax Savings | |||||
|
2026 |
154,500 |
154,500 |
16,995 |
0 |
16,995 |
122.45 |
$2,081 |
$0 |
|||||
|
2025 |
149,500 |
149,500 |
16,445 |
0 |
16,445 |
122.45 |
$2,014 |
$0 |
|||||
|
2024 |
145,000 |
145,000 |
15,950 |
0 |
15,950 |
124.97 |
$1,993 |
$0 |
|||||
|
2023 |
146,500 |
146,500 |
16,115 |
0 |
16,115 |
120.11 |
$1,936 |
$0 |
|||||
|
2022 |
124,000 |
116,865 |
12,855 |
0 |
12,855 |
115.25 |
$1,482 |
$90 |
|||||
| Property Account Status/Adjustments/Exemptions | ||
|---|---|---|
| Account # | Exemption Description | Amount |
|
R179341785 |
5% Capped Account |
0 |
| Property Deed Transaction History (Recorded in the County Clerk's Office) | ||||||||||
|---|---|---|---|---|---|---|---|---|---|---|
| Date | Type | Book | Page | Price | Grantor | Grantee | ||||
|
10/10/2023 |
|
Hmstd Off & |
$0 |
JKV WORKFORCE OWNER 2 LLC |
SFR WORKFORCE OWNER 2 LLC |
|||||
|
12/7/2022 |
|
Hmstd Off & |
$0 |
JKV WORKFORCE I LLC |
JKV WORKFORCE OWNER 2 LLC |
|||||
|
12/7/2022 |
|
Hmstd Off & |
$0 |
JKV WORKFORCE OWNER 2 LLC |
JKV WORKFORCE OWNER 2 LLC |
|||||
|
3/31/2022 |
|
Deeds |
$135,000 |
LNR PROPERTIES LLC |
JKV WORKFORCE I LLC |
|||||
|
9/6/2013 |
|
Deeds |
$90,000 |
SEWELL DAVID G |
LNR PROPERTIES LLC |
|||||
| Last Mailed Notice of Value (N.O.V.) Information/History | ||||||||
|---|---|---|---|---|---|---|---|---|
| Year | Date | Market Value | Taxable Market Value | Gross Assessed | Exemption | Net Assessed | ||
|
2026 |
02/23/2026 |
154,500 |
154,500 |
16,995 |
0 |
16,995 |
||
|
2025 |
02/14/2025 |
149,500 |
149,500 |
16,445 |
0 |
16,445 |
||
|
2023 |
02/14/2023 |
146,500 |
146,500 |
16,115 |
0 |
16,115 |
||
|
2022 |
03/15/2022 |
124,000 |
116,865 |
12,855 |
0 |
12,855 |
||
|
2021 |
03/19/2021 |
116,500 |
111,300 |
12,243 |
0 |
12,243 |
||
| Property Building Permit History | |||||||||||
|---|---|---|---|---|---|---|---|---|---|---|---|
| Issued | Permit # | Provided by | Bldg # | Description | Est Construction Cost | Status | |||||
| No Building Permit records returned. | |||||||||||
| Click button on building number to access detailed information: | ||||||
|---|---|---|---|---|---|---|
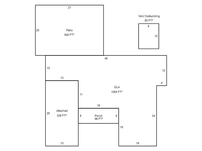
| Bldg # | Vacant/Improved Land | Bldg Description | Year Built | SqFt | # Stories | |
|
1 |
Improved |
Ranch 1 Story |
1952 |
1,054 |
1 Stories |
|