|
|
|
| Larry Stein Oklahoma County Assessor (405) 713-1200 - Public Access System |
|
|
|
|
|
|
| Real Property Display - Screen Produced 4/6/2026 8:52:14 AM | ||||
|---|---|---|---|---|
| Account: R179645170 | Type: Residential | Location: |
1723 ANDOVER CT |
|
| Building Name/Occupant: |
|
VILLAGE |
||
| Owner Name 1: | WHITE DONNA TRS |
Parcel PIN#: |
3721-17-964-5170 |
|
| Owner Name 2: | DMBW REV TRUST | 1/4 section #: |
3721 |
|
| Owner Name 3: | Parent Acct: |
|
||
| Billing Address: | 7604 RUMSEY RD | Tax District: |
|
|
| City, State, Zip | OKLAHOMA CITY, OK 73132-5337 | School System: |
Oklahoma City #89 |
|
|
Country: (If noted) |
Land Size: |
0.1612 Acres |
||
|
Land Value: 29,484 |
|
|||
|
Sect 31-T13N-R3W Qtr NE |
VILLAGE SECOND ADD
Block
150
Lot
012
|
|||
| Full Legal Description: VILLAGE SECOND ADD 150 012 |
| Photo & Sketch (if available) | Comp Sales (ordered by relevancy) |
|
||||||||||||||||||
|
||||||||||||||||||||
| Value History (*The County Treasurer 405-713-1300 posts & collects actual tax amounts. Contact information HERE) | |||||||||||||
|---|---|---|---|---|---|---|---|---|---|---|---|---|---|
| Year | Market Value | Taxable Mkt Value | Gross Assessed | Exemption | Net Assessed | Millage | Est. Tax | Tax Savings | |||||
|
2026 |
140,500 |
140,500 |
15,455 |
0 |
15,455 |
122.45 |
$1,892 |
$0 |
|||||
|
2025 |
139,000 |
109,047 |
11,995 |
0 |
11,995 |
122.45 |
$1,469 |
$403 |
|||||
|
2024 |
133,500 |
103,855 |
11,424 |
0 |
11,424 |
124.97 |
$1,428 |
$408 |
|||||
|
2023 |
127,000 |
98,910 |
10,880 |
0 |
10,880 |
120.11 |
$1,307 |
$371 |
|||||
|
2022 |
104,500 |
94,200 |
10,360 |
0 |
10,360 |
115.25 |
$1,194 |
$131 |
|||||
| Property Account Status/Adjustments/Exemptions | ||||||
|---|---|---|---|---|---|---|
| Account # | Exemption Description | Amount | ||||
| No adjustment/exemption records returned. | ||||||
| Property Deed Transaction History (Recorded in the County Clerk's Office) | ||||||||||
|---|---|---|---|---|---|---|---|---|---|---|
| Date | Type | Book | Page | Price | Grantor | Grantee | ||||
|
4/4/2025 |
|
Deeds |
$120,000 |
VILLAGE TEN INVESTMENTS LLC |
WHITE DONNA TRS |
|||||
|
3/24/2010 |
|
Hmstd Off & |
$0 |
HARPER FAMILY TRUST |
VILLAGE TEN INVESTMENTS LLC |
|||||
|
4/15/2009 |
|
Hmstd Off & |
$0 |
HARPER KENT F TRS HARPER TRUST |
HARPER KENT F |
|||||
|
4/15/2009 |
|
Deeds |
$0 |
HARPER KENT F & JEANNIE M |
HARPER FAMILY TRUST |
|||||
|
10/27/1994 |
|
Historical |
$0 |
HARPER DAVID |
HARPER FORD DAVID & MARY J TRS |
|||||
| Last Mailed Notice of Value (N.O.V.) Information/History | ||||||||
|---|---|---|---|---|---|---|---|---|
| Year | Date | Market Value | Taxable Market Value | Gross Assessed | Exemption | Net Assessed | ||
|
2026 |
02/23/2026 |
140,500 |
140,500 |
15,455 |
0 |
15,455 |
||
|
2025 |
02/14/2025 |
139,000 |
109,047 |
11,995 |
0 |
11,995 |
||
|
2024 |
02/13/2024 |
133,500 |
103,855 |
11,424 |
0 |
11,424 |
||
|
2023 |
02/14/2023 |
127,000 |
98,910 |
10,880 |
0 |
10,880 |
||
|
2022 |
03/15/2022 |
104,500 |
94,200 |
10,360 |
0 |
10,360 |
||
| Property Building Permit History | |||||||||||
|---|---|---|---|---|---|---|---|---|---|---|---|
| Issued | Permit # | Provided by | Bldg # | Description | Est Construction Cost | Status | |||||
| No Building Permit records returned. | |||||||||||
| Click button on building number to access detailed information: | ||||||
|---|---|---|---|---|---|---|
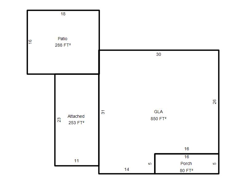
| Bldg # | Vacant/Improved Land | Bldg Description | Year Built | SqFt | # Stories | |
|
1 |
Improved |
Ranch 1 Story |
1950 |
850 |
1 Stories |
|