|
|
|
| Larry Stein Oklahoma County Assessor (405) 713-1200 - Public Access System |
|
|
|
|
|
|
| Real Property Display - Screen Produced 4/4/2026 6:47:07 PM | ||||
|---|---|---|---|---|
| Account: R179645960 | Type: Residential | Location: |
1801 CARLISLE RD |
|
| Building Name/Occupant: |
|
VILLAGE |
||
| Owner Name 1: | LMRK OWNER I LLC |
Parcel PIN#: |
3721-17-964-5960 |
|
| Owner Name 2: | 1/4 section #: |
3721 |
||
| Owner Name 3: | Parent Acct: |
|
||
| Billing Address: | 345 HERITAGE AVE, Unit 130 | Tax District: |
|
|
| City, State, Zip | PORTSMOUTH, NH 03802-3809 | School System: |
Oklahoma City #89 |
|
|
Country: (If noted) |
Land Size: |
0.1655 Acres |
||
|
Land Value: 30,274 |
|
|||
|
Sect 31-T13N-R3W Qtr NE |
VILLAGE SECOND ADD
Block
152
Lot
025
|
|||
| Full Legal Description: VILLAGE SECOND ADD 152 025 |
| Photo & Sketch (if available) | Comp Sales (ordered by relevancy) |
|
||||||||||||||||||
|
||||||||||||||||||||
| Value History (*The County Treasurer 405-713-1300 posts & collects actual tax amounts. Contact information HERE) | |||||||||||||
|---|---|---|---|---|---|---|---|---|---|---|---|---|---|
| Year | Market Value | Taxable Mkt Value | Gross Assessed | Exemption | Net Assessed | Millage | Est. Tax | Tax Savings | |||||
|
2026 |
163,000 |
163,000 |
17,930 |
0 |
17,930 |
122.45 |
$2,196 |
$0 |
|||||
|
2025 |
170,500 |
170,500 |
18,755 |
0 |
18,755 |
122.45 |
$2,297 |
$0 |
|||||
|
2024 |
126,000 |
111,300 |
12,243 |
0 |
12,243 |
124.97 |
$1,530 |
$202 |
|||||
|
2023 |
106,000 |
106,000 |
11,660 |
0 |
11,660 |
120.11 |
$1,400 |
$0 |
|||||
|
2022 |
98,000 |
88,123 |
9,692 |
0 |
9,692 |
115.25 |
$1,117 |
$125 |
|||||
| Property Account Status/Adjustments/Exemptions | ||
|---|---|---|
| Account # | Exemption Description | Amount |
|
R179645960 |
5% Capped Account |
0 |
| Property Deed Transaction History (Recorded in the County Clerk's Office) | ||||||||||
|---|---|---|---|---|---|---|---|---|---|---|
| Date | Type | Book | Page | Price | Grantor | Grantee | ||||
|
11/12/2025 |
|
Hmstd Off & |
$0 |
TH PROPERTY OWNER I LLC |
LMRK OWNER I LLC |
|||||
|
4/29/2024 |
|
Deeds |
$149,000 |
TRENT ASSETS LLC |
TH PROPERTY OWNER I LLC |
|||||
|
1/28/2022 |
|
Deeds |
$105,000 |
FERGUSON WANDA F |
TRENT ASSETS LLC |
|||||
|
2/13/2020 |
|
Hmstd Off & |
$0 |
FERGUSON BILL F & WANDA F |
FERGUSON WANDA F |
|||||
|
4/27/1987 |
|
Historical |
$0 |
BLITZER NEIL D |
FERGUSON BILL F & WANDA F |
|||||
| Last Mailed Notice of Value (N.O.V.) Information/History | ||||||||
|---|---|---|---|---|---|---|---|---|
| Year | Date | Market Value | Taxable Market Value | Gross Assessed | Exemption | Net Assessed | ||
|
2025 |
02/14/2025 |
170,500 |
170,500 |
18,755 |
0 |
18,755 |
||
|
2024 |
02/13/2024 |
126,000 |
111,300 |
12,243 |
0 |
12,243 |
||
|
2023 |
02/14/2023 |
106,000 |
106,000 |
11,660 |
0 |
11,660 |
||
|
2022 |
03/15/2022 |
98,000 |
88,123 |
9,692 |
0 |
9,692 |
||
|
2021 |
03/19/2021 |
91,000 |
83,927 |
9,231 |
0 |
9,231 |
||
| Property Building Permit History | |||||||||||
|---|---|---|---|---|---|---|---|---|---|---|---|
| Issued | Permit # | Provided by | Bldg # | Description | Est Construction Cost | Status | |||||
| No Building Permit records returned. | |||||||||||
| Click button on building number to access detailed information: | ||||||
|---|---|---|---|---|---|---|
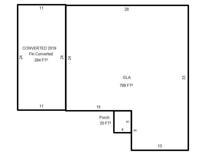
| Bldg # | Vacant/Improved Land | Bldg Description | Year Built | SqFt | # Stories | |
|
1 |
Improved |
Ranch 1 Story |
1950 |
789 |
1 Stories |
|