|
|
|
| Larry Stein Oklahoma County Assessor (405) 713-1200 - Public Access System |
|
|
|
|
|
|
| Real Property Display - Screen Produced 4/3/2026 6:02:16 AM | ||||
|---|---|---|---|---|
| Account: R179520040 | Type: Residential | Location: |
2128 WESTCHESTER DR |
|
| Building Name/Occupant: |
|
VILLAGE |
||
| Owner Name 1: | COLESON GERALD DAVID |
Parcel PIN#: |
3724-17-952-0040 |
|
| Owner Name 2: | 1/4 section #: |
3724 |
||
| Owner Name 3: | Parent Acct: |
|
||
| Billing Address: | 2128 WESTCHESTER DR | Tax District: |
|
|
| City, State, Zip | OKLAHOMA CITY, OK 73120-4826 | School System: |
Oklahoma City #89 |
|
|
Country: (If noted) |
Land Size: |
0.1756 Acres |
||
|
Land Value: 31,365 |
|
|||
|
Sect 31-T13N-R3W Qtr NW |
VILLAGE REPLAT ADD
Block
134
Lot
008
|
|||
| Full Legal Description: VILLAGE REPLAT ADD 134 008 |
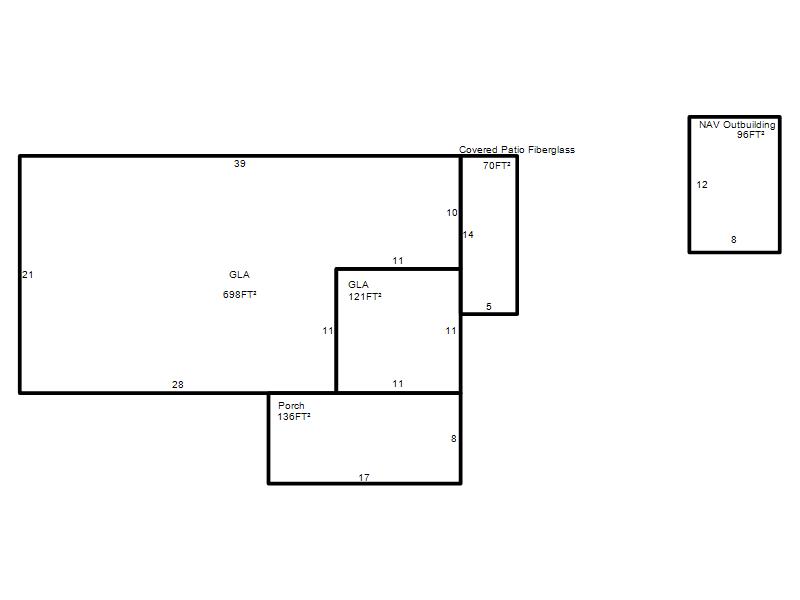
| Photo & Sketch (if available) | Comp Sales (ordered by relevancy) |
|
||||||||||||||||||
|
||||||||||||||||||||
| Value History (*The County Treasurer 405-713-1300 posts & collects actual tax amounts. Contact information HERE) | |||||||||||||
|---|---|---|---|---|---|---|---|---|---|---|---|---|---|
| Year | Market Value | Taxable Mkt Value | Gross Assessed | Exemption | Net Assessed | Millage | Est. Tax | Tax Savings | |||||
|
2026 |
135,000 |
135,000 |
14,850 |
1,000 |
13,850 |
122.45 |
$1,696 |
$122 |
|||||
|
2025 |
124,000 |
96,384 |
10,601 |
0 |
10,601 |
122.45 |
$1,298 |
$372 |
|||||
|
2024 |
119,000 |
91,795 |
10,096 |
0 |
10,096 |
124.97 |
$1,262 |
$374 |
|||||
|
2023 |
112,500 |
87,424 |
9,615 |
0 |
9,615 |
120.11 |
$1,155 |
$331 |
|||||
|
2022 |
93,000 |
83,261 |
9,158 |
0 |
9,158 |
115.25 |
$1,056 |
$123 |
|||||
| Property Account Status/Adjustments/Exemptions | ||
|---|---|---|
| Account # | Exemption Description | Amount |
|
R179520040 |
Homestead |
1,000 |
| Property Deed Transaction History (Recorded in the County Clerk's Office) | ||||||||||
|---|---|---|---|---|---|---|---|---|---|---|
| Date | Type | Book | Page | Price | Grantor | Grantee | ||||
|
11/19/2025 |
|
Deeds |
$150,000 |
MCINTYRE JOHN A & MARSHA E TRS |
COLESON GERALD DAVID |
|||||
|
5/30/2017 |
|
Hmstd Off & |
$0 |
MCINTYRE JOHN A & MARSHA E TRS & REV LIVING TRUST |
MCINTYRE JOHN A & MARSHA E |
|||||
|
5/30/2017 |
|
Hmstd Off & |
$0 |
MCINTYRE JOHN A & MARSHA E |
MCINTYRE JOHN A & MARSHA E TRS |
|||||
|
10/27/2000 |
|
Deeds |
$0 |
MCINTYRE JOHN A & MARSHA E |
MCINTYRE JOHN A &MARSHA E TRS MCINTYRE JOHN A & MARSHA E REV |
|||||
|
5/17/1993 |
|
Historical |
$0 |
MCINTYRE JOHN AARON & MARSHA E |
MCINTYRE JOHN A & MARSHA E |
|||||
| Last Mailed Notice of Value (N.O.V.) Information/History | ||||||||
|---|---|---|---|---|---|---|---|---|
| Year | Date | Market Value | Taxable Market Value | Gross Assessed | Exemption | Net Assessed | ||
|
2026 |
02/23/2026 |
135,000 |
135,000 |
14,850 |
0 |
14,850 |
||
|
2025 |
02/14/2025 |
124,000 |
96,384 |
10,601 |
0 |
10,601 |
||
|
2024 |
02/13/2024 |
119,000 |
91,795 |
10,096 |
0 |
10,096 |
||
|
2023 |
02/14/2023 |
112,500 |
87,424 |
9,615 |
0 |
9,615 |
||
|
2022 |
03/15/2022 |
93,000 |
83,261 |
9,158 |
0 |
9,158 |
||
| Property Building Permit History | |||||||||||
|---|---|---|---|---|---|---|---|---|---|---|---|
| Issued | Permit # | Provided by | Bldg # | Description | Est Construction Cost | Status | |||||
| No Building Permit records returned. | |||||||||||
| Click button on building number to access detailed information: | ||||||
|---|---|---|---|---|---|---|
| Bldg # | Vacant/Improved Land | Bldg Description | Year Built | SqFt | # Stories | |
|
1 |
Improved |
Ranch 1 Story |
1950 |
819 |
1 Stories |
|