|
|
|
| Larry Stein Oklahoma County Assessor (405) 713-1200 - Public Access System |
|
|
|
|
|
|
| Real Property Display - Screen Produced 4/1/2026 6:07:58 PM | ||||
|---|---|---|---|---|
| Account: R179521270 | Type: Residential | Location: |
2124 CARLISLE RD |
|
| Building Name/Occupant: |
|
VILLAGE |
||
| Owner Name 1: | RUSSELL & DELAINA LLC |
Parcel PIN#: |
3724-17-952-1270 |
|
| Owner Name 2: | 1/4 section #: |
3724 |
||
| Owner Name 3: | Parent Acct: |
|
||
| Billing Address: | 2430 GINA CT | Tax District: |
|
|
| City, State, Zip | GUTHRIE, OK 73044-8820 | School System: |
Oklahoma City #89 |
|
|
Country: (If noted) |
Land Size: |
0.1320 Acres |
||
|
Land Value: 23,575 |
|
|||
|
Sect 31-T13N-R3W Qtr NW |
VILLAGE REPLAT ADD
Block
138
Lot
007
|
|||
| Full Legal Description: VILLAGE REPLAT ADD 138 007 |
| Photo & Sketch (if available) | Comp Sales (ordered by relevancy) |
|
||||||||||||||||||
|
||||||||||||||||||||
| Value History (*The County Treasurer 405-713-1300 posts & collects actual tax amounts. Contact information HERE) | |||||||||||||
|---|---|---|---|---|---|---|---|---|---|---|---|---|---|
| Year | Market Value | Taxable Mkt Value | Gross Assessed | Exemption | Net Assessed | Millage | Est. Tax | Tax Savings | |||||
|
2026 |
184,000 |
184,000 |
20,240 |
0 |
20,240 |
122.45 |
$2,478 |
$0 |
|||||
|
2025 |
185,000 |
185,000 |
20,350 |
0 |
20,350 |
122.45 |
$2,492 |
$0 |
|||||
|
2024 |
121,500 |
94,474 |
10,391 |
0 |
10,391 |
124.97 |
$1,299 |
$372 |
|||||
|
2023 |
115,500 |
89,976 |
9,897 |
0 |
9,897 |
120.11 |
$1,189 |
$337 |
|||||
|
2022 |
94,500 |
85,692 |
9,424 |
0 |
9,424 |
115.25 |
$1,086 |
$112 |
|||||
| Property Account Status/Adjustments/Exemptions | ||
|---|---|---|
| Account # | Exemption Description | Amount |
|
R179521270 |
5% Capped Account |
0 |
| Property Deed Transaction History (Recorded in the County Clerk's Office) | |||||||
|---|---|---|---|---|---|---|---|
| Date | Type | Book | Page | Price | Grantor | Grantee | |
|
9/23/2024 |
|
Deeds |
$180,000 |
ALEX STEELE PROPERTIES LLC |
RUSSELL & DELAINA LLC |
||
|
6/28/2024 |
|
Deeds |
$70,000 |
BONAVIDA WANDA L TRS |
5TH STREET CAPITAL LLC |
||
|
6/28/2024 |
|
Deeds |
$105,000 |
5TH STREET CAPITAL LLC |
ALEX STEELE PROPERTIES LLC |
||
|
7/1/2020 |
|
Hmstd Off & |
$0 |
DAVIS WANDA L |
BONAVIDA WANDA L TRS |
||
|
7/1/1977 |
|
Historical |
$0 |
|
DAVIS WANDA L |
||
| Last Mailed Notice of Value (N.O.V.) Information/History | ||||||||
|---|---|---|---|---|---|---|---|---|
| Year | Date | Market Value | Taxable Market Value | Gross Assessed | Exemption | Net Assessed | ||
|
2025 |
02/14/2025 |
185,000 |
185,000 |
20,350 |
0 |
20,350 |
||
|
2024 |
02/13/2024 |
121,500 |
94,474 |
10,391 |
0 |
10,391 |
||
|
2023 |
02/14/2023 |
115,500 |
89,976 |
9,897 |
0 |
9,897 |
||
|
2022 |
03/15/2022 |
94,500 |
85,692 |
9,424 |
0 |
9,424 |
||
|
2021 |
03/19/2021 |
87,500 |
81,612 |
8,977 |
0 |
8,977 |
||
| Property Building Permit History | |||||||||||
|---|---|---|---|---|---|---|---|---|---|---|---|
| Issued | Permit # | Provided by | Bldg # | Description | Est Construction Cost | Status | |||||
| No Building Permit records returned. | |||||||||||
| Click button on building number to access detailed information: | ||||||
|---|---|---|---|---|---|---|
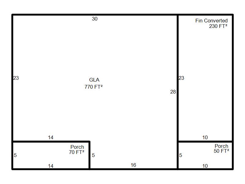
| Bldg # | Vacant/Improved Land | Bldg Description | Year Built | SqFt | # Stories | |
|
1 |
Improved |
Ranch 1 Story |
1950 |
770 |
1 Stories |
|