|
|
|
| Larry Stein Oklahoma County Assessor (405) 713-1200 - Public Access System |
|
|
|
|
|
|
| Real Property Display - Screen Produced 3/16/2026 11:00:22 AM | ||||
|---|---|---|---|---|
| Account: R130725940 | Type: Residential | Location: |
1006 WESTCHESTER DR |
|
| Building Name/Occupant: |
|
OKLAHOMA CITY |
||
| Owner Name 1: | SPARKMAN DYLAN R |
Parcel PIN#: |
3725-13-072-5940 |
|
| Owner Name 2: | 1/4 section #: |
3725 |
||
| Owner Name 3: | Parent Acct: |
|
||
| Billing Address: | 1006 WESTCHESTER DR | Tax District: |
|
|
| City, State, Zip | OKLAHOMA CITY, OK 73114 | School System: |
Oklahoma City #89 |
|
|
Country: (If noted) |
UNITED STATES |
Land Size: |
0.2571 Acres |
|
|
Land Value: 54,320 |
|
|||
|
Sect 32-T13N-R3W Qtr NE |
BRITTON HEIGHTS ADD
Block
033
Lot
000
|
|||
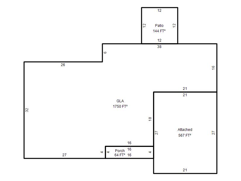
| Full Legal Description: BRITTON HEIGHTS ADD 033 000 W20FT LOT 4 & ALL LOTS 5 & 6 AND E10FT LOT 7 |
| Photo & Sketch (if available) | Comp Sales (ordered by relevancy) |
|
||||||||||||||||||
|
||||||||||||||||||||
| Value History (*The County Treasurer 405-713-1300 posts & collects actual tax amounts. Contact information HERE) | |||||||||||||
|---|---|---|---|---|---|---|---|---|---|---|---|---|---|
| Year | Market Value | Taxable Mkt Value | Gross Assessed | Exemption | Net Assessed | Millage | Est. Tax | Tax Savings | |||||
|
2025 |
332,500 |
331,145 |
36,425 |
1,000 |
35,425 |
122.90 |
$4,354 |
$141 |
|||||
|
2024 |
321,500 |
321,500 |
35,365 |
1,000 |
34,365 |
123.89 |
$4,257 |
$124 |
|||||
|
2023 |
376,000 |
376,000 |
41,360 |
0 |
41,360 |
122.82 |
$5,080 |
$0 |
|||||
|
2022 |
166,500 |
141,135 |
15,524 |
0 |
15,524 |
117.63 |
$1,826 |
$328 |
|||||
|
2021 |
149,000 |
134,415 |
14,785 |
1,000 |
13,785 |
117.70 |
$1,623 |
$307 |
|||||
| Property Account Status/Adjustments/Exemptions | ||
|---|---|---|
| Account # | Exemption Description | Amount |
|
R130725940 |
3% Cap Homestead |
0 |
|
R130725940 |
Homestead |
1,000 |
| Property Deed Transaction History (Recorded in the County Clerk's Office) | |||||||
|---|---|---|---|---|---|---|---|
| Date | Type | Book | Page | Price | Grantor | Grantee | |
|
7/12/2022 |
|
Deeds |
$375,000 |
IAS INVESTMENTS LLC |
SPARKMAN DYLAN R |
||
|
1/13/2022 |
|
Deeds |
$185,500 |
WEBSTER MATINA L |
IAS INVESTMENTS LLC |
||
|
8/20/2021 |
|
Hmstd Off & |
$0 |
BLANTON MARY C TRS |
WEBSTER MATINA L |
||
|
8/30/1991 |
|
Historical |
$0 |
BLANTON MARY C |
BLANTON MARY C TRS |
||
|
7/1/1977 |
|
Historical |
$0 |
|
BLANTON MARY C |
||
| Last Mailed Notice of Value (N.O.V.) Information/History | ||||||||
|---|---|---|---|---|---|---|---|---|
| Year | Date | Market Value | Taxable Market Value | Gross Assessed | Exemption | Net Assessed | ||
|
2026 |
02/23/2026 |
336,500 |
336,500 |
37,015 |
1,000 |
36,015 |
||
|
2025 |
02/14/2025 |
332,500 |
331,145 |
36,425 |
1,000 |
35,425 |
||
|
2023 |
02/14/2023 |
376,000 |
376,000 |
41,360 |
0 |
41,360 |
||
|
2022 |
03/15/2022 |
166,500 |
141,135 |
15,524 |
0 |
15,524 |
||
|
2021 |
03/19/2021 |
149,000 |
134,415 |
14,785 |
1,000 |
13,785 |
||
| Property Building Permit History | ||||||
|---|---|---|---|---|---|---|
| Issued | Permit # | Provided by | Bldg # | Description | Est Construction Cost | Status |
|
5/11/2022 |
BLDR-2022-00383 |
|
1 |
Remodeled |
80,000 |
Inactive |
| Click button on building number to access detailed information: | ||||||
|---|---|---|---|---|---|---|
| Bldg # | Vacant/Improved Land | Bldg Description | Year Built | SqFt | # Stories | |
|
1 |
Improved |
Ranch 1 Story |
1960 |
1,750 |
1 Stories |
|