|
|
|
| Larry Stein Oklahoma County Assessor (405) 713-1200 - Public Access System |
|
|
|
|
|
|
| Real Property Display - Screen Produced 4/4/2026 2:46:05 PM | ||||
|---|---|---|---|---|
| Account: R130711805 | Type: Residential | Location: |
8601 N GEORGIA AVE |
|
| Building Name/Occupant: |
|
OKLAHOMA CITY |
||
| Owner Name 1: | SCHWAB KATHY TRUST |
Parcel PIN#: |
3726-13-071-1805 |
|
| Owner Name 2: | 1/4 section #: |
3726 |
||
| Owner Name 3: | Parent Acct: |
|
||
| Billing Address: | 8601 N GEORGIA AVE | Tax District: |
|
|
| City, State, Zip | OKLAHOMA CITY, OK 73114-1218 | School System: |
Oklahoma City #89 |
|
|
Country: (If noted) |
Land Size: |
0.3626 Acres |
||
|
Land Value: 102,661 |
|
|||
|
Sect 32-T13N-R3W Qtr SE |
WAVERLY SECTION
Block
006
Lot
003
|
|||
| Full Legal Description: WAVERLY SECTION 006 003 |
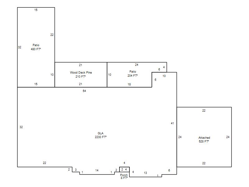
| Photo & Sketch (if available) | Comp Sales (ordered by relevancy) |
|
||||||||||||||||||
|
||||||||||||||||||||
| Value History (*The County Treasurer 405-713-1300 posts & collects actual tax amounts. Contact information HERE) | |||||||||||||
|---|---|---|---|---|---|---|---|---|---|---|---|---|---|
| Year | Market Value | Taxable Mkt Value | Gross Assessed | Exemption | Net Assessed | Millage | Est. Tax | Tax Savings | |||||
|
2026 |
640,000 |
640,000 |
70,400 |
1,000 |
69,400 |
122.90 |
$8,529 |
$123 |
|||||
|
2025 |
630,000 |
630,000 |
69,300 |
1,000 |
68,300 |
122.90 |
$8,394 |
$123 |
|||||
|
2024 |
589,500 |
431,385 |
47,452 |
1,000 |
46,452 |
123.89 |
$5,755 |
$2,279 |
|||||
|
2023 |
546,500 |
418,821 |
46,069 |
1,000 |
45,069 |
122.82 |
$5,536 |
$1,848 |
|||||
|
2022 |
480,000 |
406,623 |
44,728 |
1,000 |
43,728 |
117.63 |
$5,144 |
$1,067 |
|||||
| Property Account Status/Adjustments/Exemptions | ||
|---|---|---|
| Account # | Exemption Description | Amount |
|
R130711805 |
3% Cap Homestead |
0 |
|
R130711805 |
Homestead |
1,000 |
| Property Deed Transaction History (Recorded in the County Clerk's Office) | ||||||||||
|---|---|---|---|---|---|---|---|---|---|---|
| Date | Type | Book | Page | Price | Grantor | Grantee | ||||
|
5/23/2024 |
|
Deeds |
$625,000 |
WILLIAMS C BRAD & AMY E |
SCHWAB KATHY TRUST |
|||||
|
11/17/2016 |
|
Deeds |
$0 |
WILLIAMS C BRAD HOLMES AMY E |
WILLIAMS C BRAD & AMY E |
|||||
|
5/9/2007 |
|
Deeds |
$330,000 |
ROBINSON COOPER B ROBINSON KARMA |
WILLIAMS C BRAD HOLMES AMY E |
|||||
|
12/15/2001 |
|
Deeds |
$235,000 |
KEITH ROBERT D & MARGARET A |
ROBINSON COOPER B ROBINSON KARMA |
|||||
|
11/17/2000 |
|
Deeds |
$170,000 |
MUNNELL EDWARD R & P |
KEITH ROBERT D & MARGARET A |
|||||
| Last Mailed Notice of Value (N.O.V.) Information/History | ||||||||
|---|---|---|---|---|---|---|---|---|
| Year | Date | Market Value | Taxable Market Value | Gross Assessed | Exemption | Net Assessed | ||
|
2026 |
02/23/2026 |
640,000 |
640,000 |
70,400 |
1,000 |
69,400 |
||
|
2025 |
02/14/2025 |
630,000 |
630,000 |
69,300 |
0 |
69,300 |
||
|
2024 |
02/13/2024 |
589,500 |
431,385 |
47,452 |
1,000 |
46,452 |
||
|
2023 |
02/14/2023 |
546,500 |
418,821 |
46,069 |
1,000 |
45,069 |
||
|
2022 |
03/15/2022 |
480,000 |
406,623 |
44,728 |
1,000 |
43,728 |
||
| Property Building Permit History | ||||||
|---|---|---|---|---|---|---|
| Issued | Permit # | Provided by | Bldg # | Description | Est Construction Cost | Status |
|
8/6/2020 |
POOL-2020-00402 |
|
1 |
Swimming Pool |
65,000 |
Inactive |
| Click button on building number to access detailed information: | ||||||
|---|---|---|---|---|---|---|
| Bldg # | Vacant/Improved Land | Bldg Description | Year Built | SqFt | # Stories | |
|
1 |
Improved |
Ranch 1 Story |
1960 |
2,230 |
1 Stories |
|