|
|
|
| Larry Stein Oklahoma County Assessor (405) 713-1200 - Public Access System |
|
|
|
|
|
|
| Real Property Display - Screen Produced 4/2/2026 3:50:53 PM | ||||
|---|---|---|---|---|
| Account: R169681030 | Type: Residential | Location: |
7305 LANCET CT |
|
| Building Name/Occupant: |
|
NICHOLS HILLS |
||
| Owner Name 1: | MATTHEW J SILL LLC |
Parcel PIN#: |
3727-16-968-1030 |
|
| Owner Name 2: | 1/4 section #: |
3727 |
||
| Owner Name 3: | Parent Acct: |
|
||
| Billing Address: | 2541 W WILSHIRE BLVD | Tax District: |
|
|
| City, State, Zip | OKLAHOMA CITY, OK 73116-4119 | School System: |
Oklahoma City #89 |
|
|
Country: (If noted) |
Land Size: |
0.5600 Acres |
||
|
Land Value: 217,000 |
|
|||
|
Sect 32-T13N-R3W Qtr SW |
BUTTRAM ESTATES SEC 3
Block
084
Lot
047
|
|||
| Full Legal Description: BUTTRAM ESTATES SEC 3 084 047 |
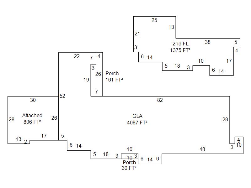
| Photo & Sketch (if available) | Comp Sales (ordered by relevancy) |
|
||||||||||||||||||
|
||||||||||||||||||||
| Value History (*The County Treasurer 405-713-1300 posts & collects actual tax amounts. Contact information HERE) | |||||||||||||
|---|---|---|---|---|---|---|---|---|---|---|---|---|---|
| Year | Market Value | Taxable Mkt Value | Gross Assessed | Exemption | Net Assessed | Millage | Est. Tax | Tax Savings | |||||
|
2026 |
2,228,000 |
2,228,000 |
245,080 |
0 |
245,080 |
140.78 |
$34,502 |
$0 |
|||||
|
2025 |
2,202,500 |
2,202,500 |
242,275 |
0 |
242,275 |
140.78 |
$34,107 |
$0 |
|||||
|
2024 |
1,777,000 |
1,236,000 |
135,960 |
1,000 |
134,960 |
141.11 |
$19,044 |
$8,539 |
|||||
|
2023 |
1,200,000 |
1,200,000 |
132,000 |
1,000 |
131,000 |
139.71 |
$18,302 |
$140 |
|||||
|
2022 |
1,085,000 |
1,085,000 |
119,350 |
1,000 |
118,350 |
127.53 |
$15,093 |
$128 |
|||||
| Property Account Status/Adjustments/Exemptions | ||
|---|---|---|
| Account # | Exemption Description | Amount |
|
R169681030 |
5% Capped Account |
0 |
| Property Deed Transaction History (Recorded in the County Clerk's Office) | |||||||
|---|---|---|---|---|---|---|---|
| Date | Type | Book | Page | Price | Grantor | Grantee | |
|
8/26/2024 |
|
Deeds |
$2,200,000 |
FITZGERALD CHAD |
MATTHEW J SILL LLC |
||
|
2/25/2022 |
|
Deeds |
$1,085,000 |
ZUHDI ANNETTE TRS |
FITZGERALD CHAD |
||
|
2/27/2017 |
|
Deeds |
$0 |
ZUHDI NAZIH TRS ZUHDI 2006 REV TRUST |
ZUHDI ANNETTE TRS |
||
|
7/3/2006 |
|
Deeds |
$0 |
ZUHDI NAZIH & ANNETTE |
ZUHDI NAZIH TRS ZUHDI 2006 REV TRUST |
||
|
4/1/1983 |
|
Historical |
$0 |
|
ZUHDI NAZIH & ANNETTE |
||
| Last Mailed Notice of Value (N.O.V.) Information/History | ||||||||
|---|---|---|---|---|---|---|---|---|
| Year | Date | Market Value | Taxable Market Value | Gross Assessed | Exemption | Net Assessed | ||
|
2026 |
02/23/2026 |
2,228,000 |
2,228,000 |
245,080 |
0 |
245,080 |
||
|
2025 |
02/14/2025 |
2,202,500 |
2,202,500 |
242,275 |
0 |
242,275 |
||
|
2024 |
02/13/2024 |
1,777,000 |
1,236,000 |
135,960 |
1,000 |
134,960 |
||
|
2023 |
03/02/2023 |
1,624,000 |
1,624,000 |
178,640 |
1,000 |
177,640 |
||
|
2022 |
03/15/2022 |
1,426,500 |
1,426,500 |
156,915 |
1,000 |
155,915 |
||
| Property Building Permit History | ||||||
|---|---|---|---|---|---|---|
| Issued | Permit # | Provided by | Bldg # | Description | Est Construction Cost | Status |
|
5/25/2022 |
156924 |
|
1 |
Remodeled |
120,000 |
Inactive |
|
4/19/2022 |
|
|
|
Remodeled |
|
Inactive |
|
10/1/1995 |
10254447 |
NICHOLS HILLS |
1 |
Remodeled |
15,000 |
Inactive |
| Click button on building number to access detailed information: | ||||||
|---|---|---|---|---|---|---|
| Bldg # | Vacant/Improved Land | Bldg Description | Year Built | SqFt | # Stories | |
|
1 |
Improved |
1½ Story Fin |
1974 |
5,462 |
1.5 Stories |
|