|
|
|
| Larry Stein Oklahoma County Assessor (405) 713-1200 - Public Access System |
|
|
|
|
|
|
| Real Property Display - Screen Produced 4/2/2026 9:08:53 AM | ||||
|---|---|---|---|---|
| Account: R179103160 | Type: Residential | Location: |
1315 OXFORD WAY |
|
| Building Name/Occupant: |
|
VILLAGE |
||
| Owner Name 1: | MADISON EARL C III & JENNIFER |
Parcel PIN#: |
3728-17-910-3160 |
|
| Owner Name 2: | 1/4 section #: |
3728 |
||
| Owner Name 3: | Parent Acct: |
|
||
| Billing Address: | 1315 OXFORD WAY | Tax District: |
|
|
| City, State, Zip | OKLAHOMA CITY, OK 73120-1617 | School System: |
Oklahoma City #89 |
|
|
Country: (If noted) |
Land Size: |
0.1558 Acres |
||
|
Land Value: 29,519 |
|
|||
|
Sect 32-T13N-R3W Qtr NW |
CASADY HEIGHTS ADD
Block
007
Lot
000
|
|||
| Full Legal Description: CASADY HEIGHTS ADD 007 000 E25FT LOT 32 & LOT 33 EX E20FT |
| Photo & Sketch (if available) | Comp Sales (ordered by relevancy) |
|
||||||||||||||||||
|
||||||||||||||||||||
| Value History (*The County Treasurer 405-713-1300 posts & collects actual tax amounts. Contact information HERE) | |||||||||||||
|---|---|---|---|---|---|---|---|---|---|---|---|---|---|
| Year | Market Value | Taxable Mkt Value | Gross Assessed | Exemption | Net Assessed | Millage | Est. Tax | Tax Savings | |||||
|
2026 |
161,500 |
161,500 |
17,765 |
0 |
17,765 |
122.45 |
$2,175 |
$0 |
|||||
|
2025 |
161,500 |
161,500 |
17,765 |
1,000 |
16,765 |
122.45 |
$2,053 |
$122 |
|||||
|
2024 |
157,500 |
157,500 |
17,325 |
1,000 |
16,325 |
124.97 |
$2,040 |
$125 |
|||||
|
2023 |
166,000 |
166,000 |
18,260 |
1,000 |
17,260 |
120.11 |
$2,073 |
$120 |
|||||
|
2022 |
127,500 |
116,688 |
12,835 |
0 |
12,835 |
115.25 |
$1,479 |
$137 |
|||||
| Property Account Status/Adjustments/Exemptions | ||||||
|---|---|---|---|---|---|---|
| Account # | Exemption Description | Amount | ||||
| No adjustment/exemption records returned. | ||||||
| Property Deed Transaction History (Recorded in the County Clerk's Office) | ||||||||||
|---|---|---|---|---|---|---|---|---|---|---|
| Date | Type | Book | Page | Price | Grantor | Grantee | ||||
|
5/2/2025 |
|
Deeds |
$195,000 |
BOYLE MADISON |
MADISON EARL C III & JENNIFER |
|||||
|
7/15/2022 |
|
Deeds |
$165,000 |
ROLLAND AMY |
BOYLE MADISON |
|||||
|
7/8/2011 |
|
Deeds |
$92,500 |
LESLIE CHRISTOPHER M LESLIE DAVID M |
ROLLAND AMY |
|||||
|
5/25/2006 |
|
Deeds |
$80,000 |
SAWYER NEWELL E |
LESLIE CHRISTOPHER M LESLIE DAVID M |
|||||
|
2/8/2006 |
|
Deeds |
$50,000 |
BRINDLEY AILEEN LOFTIN LINDA S |
SAWYER NEWELL E |
|||||
| Last Mailed Notice of Value (N.O.V.) Information/History | ||||||||
|---|---|---|---|---|---|---|---|---|
| Year | Date | Market Value | Taxable Market Value | Gross Assessed | Exemption | Net Assessed | ||
|
2025 |
02/14/2025 |
161,500 |
161,500 |
17,765 |
1,000 |
16,765 |
||
|
2023 |
02/14/2023 |
166,000 |
166,000 |
18,260 |
1,000 |
17,260 |
||
|
2022 |
03/15/2022 |
127,500 |
116,688 |
12,835 |
0 |
12,835 |
||
|
2021 |
03/19/2021 |
120,000 |
111,132 |
12,224 |
0 |
12,224 |
||
|
2020 |
03/10/2020 |
110,000 |
105,840 |
11,642 |
0 |
11,642 |
||
| Property Building Permit History | |||||||||||
|---|---|---|---|---|---|---|---|---|---|---|---|
| Issued | Permit # | Provided by | Bldg # | Description | Est Construction Cost | Status | |||||
| No Building Permit records returned. | |||||||||||
| Click button on building number to access detailed information: | ||||||
|---|---|---|---|---|---|---|
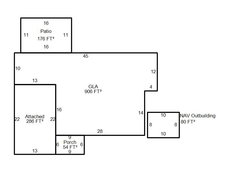
| Bldg # | Vacant/Improved Land | Bldg Description | Year Built | SqFt | # Stories | |
|
1 |
Improved |
Ranch 1 Story |
1950 |
906 |
1 Stories |
|