|
|
|
| Larry Stein Oklahoma County Assessor (405) 713-1200 - Public Access System |
|
|
|
|
|
|
| Real Property Display - Screen Produced 4/1/2026 12:28:55 AM | ||||
|---|---|---|---|---|
| Account: R130480855 | Type: Residential | Location: |
329 NW 84TH ST |
|
| Building Name/Occupant: |
|
OKLAHOMA CITY |
||
| Owner Name 1: | PAGE JONAH |
Parcel PIN#: |
3730-13-048-0855 |
|
| Owner Name 2: | 1/4 section #: |
3730 |
||
| Owner Name 3: | Parent Acct: |
|
||
| Billing Address: | 329 NW 84TH ST | Tax District: |
|
|
| City, State, Zip | OKLAHOMA CITY, OK 73114-3403 | School System: |
Oklahoma City #89 |
|
|
Country: (If noted) |
Land Size: |
0.1573 Acres |
||
|
Land Value: 20,550 |
|
|||
|
Sect 33-T13N-R3W Qtr SE |
NORTH HIGHLAND ADD
Block
007
Lot
000
|
|||
| Full Legal Description: NORTH HIGHLAND ADD 007 000 LOTS 25 & 26 |
| Photo & Sketch (if available) | Comp Sales (ordered by relevancy) |
|
||||||||||||||||||
|
||||||||||||||||||||
| Value History (*The County Treasurer 405-713-1300 posts & collects actual tax amounts. Contact information HERE) | |||||||||||||
|---|---|---|---|---|---|---|---|---|---|---|---|---|---|
| Year | Market Value | Taxable Mkt Value | Gross Assessed | Exemption | Net Assessed | Millage | Est. Tax | Tax Savings | |||||
|
2026 |
119,500 |
119,500 |
13,145 |
0 |
13,145 |
122.90 |
$1,616 |
$0 |
|||||
|
2025 |
115,000 |
97,240 |
10,696 |
0 |
10,696 |
122.90 |
$1,315 |
$240 |
|||||
|
2024 |
110,000 |
92,610 |
10,187 |
0 |
10,187 |
123.89 |
$1,262 |
$237 |
|||||
|
2023 |
103,500 |
88,200 |
9,702 |
0 |
9,702 |
122.82 |
$1,192 |
$207 |
|||||
|
2022 |
84,000 |
84,000 |
9,240 |
0 |
9,240 |
117.63 |
$1,087 |
$0 |
|||||
| Property Account Status/Adjustments/Exemptions | ||||||
|---|---|---|---|---|---|---|
| Account # | Exemption Description | Amount | ||||
| No adjustment/exemption records returned. | ||||||
| Property Deed Transaction History (Recorded in the County Clerk's Office) | ||||||||||
|---|---|---|---|---|---|---|---|---|---|---|
| Date | Type | Book | Page | Price | Grantor | Grantee | ||||
|
2/20/2026 |
|
Deeds |
$112,000 |
MICKELTHWATE ABIGAIL |
PAGE JONAH |
|||||
|
6/25/2025 |
|
Hmstd Off & |
$0 |
MICKELTHWATE ABIGAIL |
MICKELTHWATE ABIGAIL |
|||||
|
6/12/2025 |
|
Deeds |
$116,500 |
ALCHEMY INVESTMENTS LLC |
MICKELTHWATE ABIGAIL |
|||||
|
4/9/2021 |
|
Deeds |
$77,000 |
FMX LLC |
LEGACY INVESTMENT HOLDINGS LLC |
|||||
|
4/9/2021 |
|
Deeds |
$85,000 |
LEGACY INVESTMENT HOLDINGS LLC |
ALCHEMY INVESTMENTS LLC |
|||||
| Last Mailed Notice of Value (N.O.V.) Information/History | ||||||||
|---|---|---|---|---|---|---|---|---|
| Year | Date | Market Value | Taxable Market Value | Gross Assessed | Exemption | Net Assessed | ||
|
2026 |
02/23/2026 |
119,500 |
119,500 |
13,145 |
0 |
13,145 |
||
|
2026 |
03/30/2026 |
119,500 |
119,500 |
13,145 |
0 |
13,145 |
||
|
2025 |
02/14/2025 |
115,000 |
97,240 |
10,696 |
0 |
10,696 |
||
|
2024 |
02/13/2024 |
110,000 |
92,610 |
10,187 |
0 |
10,187 |
||
|
2023 |
02/14/2023 |
103,500 |
88,200 |
9,702 |
0 |
9,702 |
||
| Property Building Permit History | ||||||
|---|---|---|---|---|---|---|
| Issued | Permit # | Provided by | Bldg # | Description | Est Construction Cost | Status |
|
1/1/1900 |
10455386 |
OKLAHOMA CITY |
1 |
Remodeled |
0 |
Inactive |
| Click button on building number to access detailed information: | ||||||
|---|---|---|---|---|---|---|
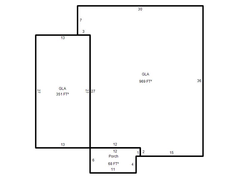
| Bldg # | Vacant/Improved Land | Bldg Description | Year Built | SqFt | # Stories | |
|
1 |
Improved |
Ranch 1 Story |
1961 |
1,320 |
1 Stories |
|