|
|
|
| Larry Stein Oklahoma County Assessor (405) 713-1200 - Public Access System |
|
|
|
|
|
|
| Real Property Display - Screen Produced 3/3/2026 9:43:02 PM | ||||
|---|---|---|---|---|
| Account: R130122160 | Type: Residential | Location: |
709 NW 90TH ST |
|
| Building Name/Occupant: |
|
OKLAHOMA CITY |
||
| Owner Name 1: | SANDER BROOKE |
Parcel PIN#: |
3732-13-012-2160 |
|
| Owner Name 2: | 1/4 section #: |
3732 |
||
| Owner Name 3: | Parent Acct: |
|
||
| Billing Address: | 709 NW 90TH ST | Tax District: |
|
|
| City, State, Zip | OKLAHOMA CITY, OK 73114 | School System: |
Oklahoma City #89 |
|
|
Country: (If noted) |
Land Size: |
0.2410 Acres |
||
|
Land Value: 21,525 |
|
|||
|
Sect 33-T13N-R3W Qtr NW |
BRITTON CITY FIRST
Block
008
Lot
000
|
|||
| Full Legal Description: BRITTON CITY FIRST 008 000 LOTS 43 THRU 45 |
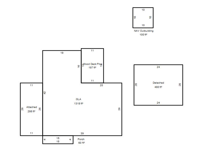
| Photo & Sketch (if available) | Comp Sales (ordered by relevancy) |
|
||||||||||||||||||
|
||||||||||||||||||||
| Value History (*The County Treasurer 405-713-1300 posts & collects actual tax amounts. Contact information HERE) | |||||||||||||
|---|---|---|---|---|---|---|---|---|---|---|---|---|---|
| Year | Market Value | Taxable Mkt Value | Gross Assessed | Exemption | Net Assessed | Millage | Est. Tax | Tax Savings | |||||
|
2025 |
197,000 |
197,000 |
21,670 |
0 |
21,670 |
122.90 |
$2,663 |
$0 |
|||||
|
2024 |
192,000 |
192,000 |
21,120 |
0 |
21,120 |
123.89 |
$2,617 |
$0 |
|||||
|
2023 |
186,000 |
186,000 |
20,460 |
0 |
20,460 |
122.82 |
$2,513 |
$0 |
|||||
|
2022 |
71,500 |
52,897 |
5,817 |
1,000 |
4,817 |
117.63 |
$567 |
$358 |
|||||
|
2021 |
64,000 |
51,357 |
5,648 |
1,000 |
4,648 |
117.70 |
$547 |
$281 |
|||||
| Property Account Status/Adjustments/Exemptions | ||
|---|---|---|
| Account # | Exemption Description | Amount |
|
R130122160 |
5% Capped Account |
0 |
| Property Deed Transaction History (Recorded in the County Clerk's Office) | ||||||||||
|---|---|---|---|---|---|---|---|---|---|---|
| Date | Type | Book | Page | Price | Grantor | Grantee | ||||
|
7/15/2022 |
|
Deeds |
$185,000 |
BRATTON BRIANA |
SANDER BROOKE |
|||||
|
3/28/2022 |
|
Deeds |
$69,000 |
SUNDQUIST TOBY C |
BRATTON BRIANA |
|||||
|
7/22/2017 |
|
Deeds |
$0 |
SUNDQUIST TOBY C & PAIGE N |
SUNDQUIST TOBY C |
|||||
|
6/18/2009 |
|
Deeds |
$0 |
SUNQUIST TOBY |
SUNDQUIST TOBY C & PAIGE N |
|||||
|
4/25/2008 |
|
Deeds |
$76,000 |
BANKSTON OBRITTA M |
SUNQUIST TOBY |
|||||
| Last Mailed Notice of Value (N.O.V.) Information/History | ||||||||
|---|---|---|---|---|---|---|---|---|
| Year | Date | Market Value | Taxable Market Value | Gross Assessed | Exemption | Net Assessed | ||
|
2026 |
02/23/2026 |
201,500 |
201,500 |
22,165 |
0 |
22,165 |
||
|
2025 |
02/14/2025 |
197,000 |
197,000 |
21,670 |
0 |
21,670 |
||
|
2024 |
02/13/2024 |
192,000 |
192,000 |
21,120 |
0 |
21,120 |
||
|
2023 |
02/14/2023 |
186,000 |
186,000 |
20,460 |
0 |
20,460 |
||
|
2022 |
03/15/2022 |
71,500 |
52,897 |
5,817 |
1,000 |
4,817 |
||
| Property Building Permit History | |||||||||||
|---|---|---|---|---|---|---|---|---|---|---|---|
| Issued | Permit # | Provided by | Bldg # | Description | Est Construction Cost | Status | |||||
| No Building Permit records returned. | |||||||||||
| Click button on building number to access detailed information: | ||||||
|---|---|---|---|---|---|---|
| Bldg # | Vacant/Improved Land | Bldg Description | Year Built | SqFt | # Stories | |
|
1 |
Improved |
Ranch 1 Story |
1954 |
1,318 |
1 Stories |
|