|
|
|
| Larry Stein Oklahoma County Assessor (405) 713-1200 - Public Access System |
|
|
|
|
|
|
| Real Property Display - Screen Produced 3/3/2026 6:32:15 PM | ||||
|---|---|---|---|---|
| Account: R130166040 | Type: Residential | Location: |
729 NW 88TH ST |
|
| Building Name/Occupant: |
|
OKLAHOMA CITY |
||
| Owner Name 1: | PRAIRIE PROPERTY SOLUTIONS LLC |
Parcel PIN#: |
3732-13-016-6040 |
|
| Owner Name 2: | 1/4 section #: |
3732 |
||
| Owner Name 3: | Parent Acct: |
|
||
| Billing Address: | PO BOX 515 | Tax District: |
|
|
| City, State, Zip | OKLAHOMA CITY, OK 73101 | School System: |
Oklahoma City #89 |
|
|
Country: (If noted) |
Land Size: |
0.1607 Acres |
||
|
Land Value: 19,600 |
|
|||
|
Sect 33-T13N-R3W Qtr NW |
BRITTON CITY SECOND
Block
032
Lot
000
|
|||
| Full Legal Description: BRITTON CITY SECOND 032 000 LOTS 33 & 34 |
| Photo & Sketch (if available) | Comp Sales (ordered by relevancy) |
|
||||||||||||||||||
|
||||||||||||||||||||
| Value History (*The County Treasurer 405-713-1300 posts & collects actual tax amounts. Contact information HERE) | |||||||||||||
|---|---|---|---|---|---|---|---|---|---|---|---|---|---|
| Year | Market Value | Taxable Mkt Value | Gross Assessed | Exemption | Net Assessed | Millage | Est. Tax | Tax Savings | |||||
|
2025 |
129,000 |
110,801 |
12,187 |
0 |
12,187 |
122.90 |
$1,498 |
$246 |
|||||
|
2024 |
123,000 |
105,525 |
11,607 |
0 |
11,607 |
123.89 |
$1,438 |
$238 |
|||||
|
2023 |
100,500 |
100,500 |
11,055 |
0 |
11,055 |
122.82 |
$1,358 |
$0 |
|||||
|
2022 |
98,000 |
70,759 |
7,781 |
0 |
7,781 |
117.63 |
$916 |
$352 |
|||||
|
2021 |
81,500 |
67,390 |
7,411 |
0 |
7,411 |
117.70 |
$872 |
$183 |
|||||
| Property Account Status/Adjustments/Exemptions | ||
|---|---|---|
| Account # | Exemption Description | Amount |
|
R130166040 |
5% Capped Account |
0 |
| Property Deed Transaction History (Recorded in the County Clerk's Office) | ||||||||||
|---|---|---|---|---|---|---|---|---|---|---|
| Date | Type | Book | Page | Price | Grantor | Grantee | ||||
|
1/27/2022 |
|
Deeds |
$98,500 |
SELECT SOLUTIONS LLC |
PRAIRIE PROPERTY SOLUTIONS LLC |
|||||
|
5/7/2009 |
|
Other |
$0 |
SECRETARY OF HOUSING & URBAN DEV |
SELECT SOLUTIONS LLC |
|||||
|
5/2/2008 |
|
Hmstd Off & |
$0 |
BELL GEORGE ANTHONY |
SECRETARY OF HOUSING & URBAN DEV |
|||||
|
1/26/2007 |
|
Deeds |
$63,500 |
LAMKIN THOMAS NEAL III & MANDI D LYNN |
BELL GEORGE ANTHONY |
|||||
|
12/16/2005 |
|
Deeds |
$46,000 |
BRANSON LEONA CHARLENE IRREV 2005 TRS |
LAMKIN THOMAS NEAL III & MANDI D LYNN |
|||||
| Last Mailed Notice of Value (N.O.V.) Information/History | ||||||||
|---|---|---|---|---|---|---|---|---|
| Year | Date | Market Value | Taxable Market Value | Gross Assessed | Exemption | Net Assessed | ||
|
2026 |
02/23/2026 |
129,000 |
116,341 |
12,797 |
0 |
12,797 |
||
|
2025 |
02/14/2025 |
129,000 |
110,801 |
12,187 |
0 |
12,187 |
||
|
2024 |
02/13/2024 |
123,000 |
105,525 |
11,607 |
0 |
11,607 |
||
|
2023 |
02/14/2023 |
100,500 |
100,500 |
11,055 |
0 |
11,055 |
||
|
2022 |
03/15/2022 |
98,000 |
70,759 |
7,781 |
0 |
7,781 |
||
| Property Building Permit History | |||||||||||
|---|---|---|---|---|---|---|---|---|---|---|---|
| Issued | Permit # | Provided by | Bldg # | Description | Est Construction Cost | Status | |||||
| No Building Permit records returned. | |||||||||||
| Click button on building number to access detailed information: | ||||||
|---|---|---|---|---|---|---|
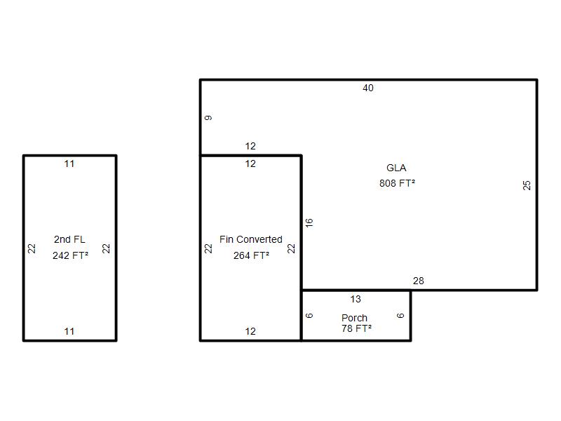
| Bldg # | Vacant/Improved Land | Bldg Description | Year Built | SqFt | # Stories | |
|
1 |
Improved |
1½ Story Fin |
1950 |
1,050 |
1.5 Stories |
|