|
|
|
| Larry Stein Oklahoma County Assessor (405) 713-1200 - Public Access System |
|
|
|
|
|
|
| Real Property Display - Screen Produced 3/3/2026 2:39:58 PM | ||||
|---|---|---|---|---|
| Account: R130166150 | Type: Residential | Location: |
705 NW 88TH ST |
|
| Building Name/Occupant: |
|
OKLAHOMA CITY |
||
| Owner Name 1: | LEGACY INVESTMENT HOLDINGS LLC |
Parcel PIN#: |
3732-13-016-6150 |
|
| Owner Name 2: | 1/4 section #: |
3732 |
||
| Owner Name 3: | Parent Acct: |
|
||
| Billing Address: | 6011 N ROBINSON AVE | Tax District: |
|
|
| City, State, Zip | OKLAHOMA CITY, OK 73118 | School System: |
Oklahoma City #89 |
|
|
Country: (If noted) |
Land Size: |
0.1607 Acres |
||
|
Land Value: 19,600 |
|
|||
|
Sect 33-T13N-R3W Qtr NW |
BRITTON CITY SECOND
Block
032
Lot
000
|
|||
| Full Legal Description: BRITTON CITY SECOND 032 000 LOTS 45 & 46 |
| Photo & Sketch (if available) | Comp Sales (ordered by relevancy) |
|
||||||||||||||||||
|
||||||||||||||||||||
| Value History (*The County Treasurer 405-713-1300 posts & collects actual tax amounts. Contact information HERE) | |||||||||||||
|---|---|---|---|---|---|---|---|---|---|---|---|---|---|
| Year | Market Value | Taxable Mkt Value | Gross Assessed | Exemption | Net Assessed | Millage | Est. Tax | Tax Savings | |||||
|
2025 |
82,000 |
78,277 |
8,610 |
0 |
8,610 |
122.90 |
$1,058 |
$50 |
|||||
|
2024 |
77,500 |
74,550 |
8,200 |
0 |
8,200 |
123.89 |
$1,016 |
$40 |
|||||
|
2023 |
71,000 |
71,000 |
7,810 |
0 |
7,810 |
122.82 |
$959 |
$0 |
|||||
|
2022 |
59,500 |
44,365 |
4,879 |
0 |
4,879 |
117.63 |
$574 |
$196 |
|||||
|
2021 |
48,500 |
42,253 |
4,647 |
0 |
4,647 |
117.70 |
$547 |
$81 |
|||||
| Property Account Status/Adjustments/Exemptions | ||
|---|---|---|
| Account # | Exemption Description | Amount |
|
R130166150 |
5% Capped Account |
0 |
| Property Deed Transaction History (Recorded in the County Clerk's Office) | |||||||
|---|---|---|---|---|---|---|---|
| Date | Type | Book | Page | Price | Grantor | Grantee | |
|
10/7/2022 |
|
Deeds |
$70,000 |
SELECT SOLUTIONS LLC |
LEGACY INVESTMENT HOLDINGS LLC |
||
|
3/28/2008 |
|
Deeds |
$25,000 |
ANDEEL JEFFREY SCOTT REV TRUST |
SELECT SOLUTIONS LLC |
||
|
11/2/2006 |
|
Deeds |
$0 |
ANDEEL JEFFREY SCOTT |
ANDEEL JEFFREY SCOTT REV TRUST |
||
|
5/19/1987 |
|
Historical |
$0 |
SECRETARY OF HOUSING |
ANDEEL JEFFREY SCOTT |
||
|
7/1/1986 |
|
Historical |
$0 |
|
SECRETARY OF HOUSING |
||
| Last Mailed Notice of Value (N.O.V.) Information/History | ||||||||
|---|---|---|---|---|---|---|---|---|
| Year | Date | Market Value | Taxable Market Value | Gross Assessed | Exemption | Net Assessed | ||
|
2026 |
02/23/2026 |
86,500 |
82,190 |
9,040 |
0 |
9,040 |
||
|
2025 |
02/14/2025 |
82,000 |
78,277 |
8,610 |
0 |
8,610 |
||
|
2024 |
02/13/2024 |
77,500 |
74,550 |
8,200 |
0 |
8,200 |
||
|
2023 |
02/14/2023 |
71,000 |
71,000 |
7,810 |
0 |
7,810 |
||
|
2022 |
03/15/2022 |
59,500 |
44,365 |
4,879 |
0 |
4,879 |
||
| Property Building Permit History | |||||||||||
|---|---|---|---|---|---|---|---|---|---|---|---|
| Issued | Permit # | Provided by | Bldg # | Description | Est Construction Cost | Status | |||||
| No Building Permit records returned. | |||||||||||
| Click button on building number to access detailed information: | ||||||
|---|---|---|---|---|---|---|
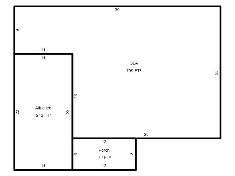
| Bldg # | Vacant/Improved Land | Bldg Description | Year Built | SqFt | # Stories | |
|
1 |
Improved |
Ranch 1 Story |
1950 |
799 |
1 Stories |
|