|
|
|
| Larry Stein Oklahoma County Assessor (405) 713-1200 - Public Access System |
|
|
|
|
|
|
| Real Property Display - Screen Produced 3/3/2026 9:42:03 PM | ||||
|---|---|---|---|---|
| Account: R130205005 | Type: Residential | Location: |
516 NW 89TH ST |
|
| Building Name/Occupant: |
|
OKLAHOMA CITY |
||
| Owner Name 1: | GUM BENJAMIN |
Parcel PIN#: |
3732-13-020-5005 |
|
| Owner Name 2: | 1/4 section #: |
3732 |
||
| Owner Name 3: | Parent Acct: |
|
||
| Billing Address: | 516 NW 89TH ST | Tax District: |
|
|
| City, State, Zip | OKLAHOMA CITY, OK 73114-3018 | School System: |
Oklahoma City #89 |
|
|
Country: (If noted) |
Land Size: |
0.1607 Acres |
||
|
Land Value: 19,600 |
|
|||
|
Sect 33-T13N-R3W Qtr NW |
EAST BRITTON ADD
Block
033
Lot
000
|
|||
| Full Legal Description: EAST BRITTON ADD 033 000 LOTS 9 & 10 |
| Photo & Sketch (if available) | Comp Sales (ordered by relevancy) |
|
||||||||||||||||||
|
||||||||||||||||||||
| Value History (*The County Treasurer 405-713-1300 posts & collects actual tax amounts. Contact information HERE) | |||||||||||||
|---|---|---|---|---|---|---|---|---|---|---|---|---|---|
| Year | Market Value | Taxable Mkt Value | Gross Assessed | Exemption | Net Assessed | Millage | Est. Tax | Tax Savings | |||||
|
2025 |
179,500 |
179,500 |
19,745 |
0 |
19,745 |
122.90 |
$2,427 |
$0 |
|||||
|
2024 |
173,500 |
173,500 |
19,085 |
0 |
19,085 |
123.89 |
$2,364 |
$0 |
|||||
|
2023 |
155,000 |
145,425 |
15,996 |
0 |
15,996 |
122.82 |
$1,965 |
$129 |
|||||
|
2022 |
138,500 |
138,500 |
15,235 |
0 |
15,235 |
117.63 |
$1,792 |
$0 |
|||||
|
2021 |
84,500 |
84,500 |
9,295 |
0 |
9,295 |
117.70 |
$1,094 |
$0 |
|||||
| Property Account Status/Adjustments/Exemptions | ||
|---|---|---|
| Account # | Exemption Description | Amount |
|
R130205005 |
5% Capped Account |
0 |
| Property Deed Transaction History (Recorded in the County Clerk's Office) | ||||||||||
|---|---|---|---|---|---|---|---|---|---|---|
| Date | Type | Book | Page | Price | Grantor | Grantee | ||||
|
11/7/2023 |
|
Deeds |
$175,000 |
ODAY BRADEN |
GUM BENJAMIN |
|||||
|
3/19/2021 |
|
Deeds |
$140,000 |
URBAN CORE INVESTMENTS LLC |
ODAY BRADEN |
|||||
|
6/15/2020 |
|
Deeds |
$60,000 |
ALEXANDER TRISTAN D |
URBAN CORE INVESTMENTS LLC |
|||||
|
1/6/2016 |
|
Deeds |
$65,000 |
SHREFFLER PAUL ERNEST & TERRY K |
ALEXANDER TRISTAN D |
|||||
|
12/31/2003 |
|
Deeds |
$0 |
SHREFFLER PAULINE TRS SHREFFLER PAULINE REV TRUST |
SHREFFLER PAUL ERNEST & TERRY K |
|||||
| Last Mailed Notice of Value (N.O.V.) Information/History | ||||||||
|---|---|---|---|---|---|---|---|---|
| Year | Date | Market Value | Taxable Market Value | Gross Assessed | Exemption | Net Assessed | ||
|
2026 |
02/23/2026 |
181,500 |
181,500 |
19,965 |
0 |
19,965 |
||
|
2025 |
02/14/2025 |
179,500 |
179,500 |
19,745 |
0 |
19,745 |
||
|
2024 |
02/13/2024 |
173,500 |
173,500 |
19,085 |
0 |
19,085 |
||
|
2023 |
02/14/2023 |
155,000 |
145,425 |
15,996 |
0 |
15,996 |
||
|
2022 |
03/15/2022 |
138,500 |
138,500 |
15,235 |
0 |
15,235 |
||
| Property Building Permit History | |||||||||||
|---|---|---|---|---|---|---|---|---|---|---|---|
| Issued | Permit # | Provided by | Bldg # | Description | Est Construction Cost | Status | |||||
| No Building Permit records returned. | |||||||||||
| Click button on building number to access detailed information: | ||||||
|---|---|---|---|---|---|---|
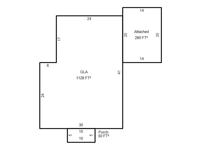
| Bldg # | Vacant/Improved Land | Bldg Description | Year Built | SqFt | # Stories | |
|
1 |
Improved |
Ranch 1 Story |
1931 |
1,128 |
1 Stories |
|