|
|
|
| Larry Stein Oklahoma County Assessor (405) 713-1200 - Public Access System |
|
|
|
|
|
|
| Real Property Display - Screen Produced 3/21/2026 7:11:43 AM | ||||
|---|---|---|---|---|
| Account: R150465035 | Type: Residential | Location: |
223 E KITTYHAWK DR |
|
| Building Name/Occupant: |
|
MIDWEST CITY |
||
| Owner Name 1: | P163 LLC |
Parcel PIN#: |
1437-15-046-5035 |
|
| Owner Name 2: | 1/4 section #: |
1437 |
||
| Owner Name 3: | Parent Acct: |
|
||
| Billing Address: | 7317 NE 107TH ST | Tax District: |
|
|
| City, State, Zip | OKLAHOMA CITY, OK 73151 | School System: |
Mid-Del #52 |
|
|
Country: (If noted) |
Land Size: |
0.1286 Acres |
||
|
Land Value: 17,920 |
|
|||
|
Sect 10-T11N-R2W Qtr NE |
PINE ADDITION
Block
004
Lot
005
|
|||
| Full Legal Description: PINE ADDITION 004 005 |
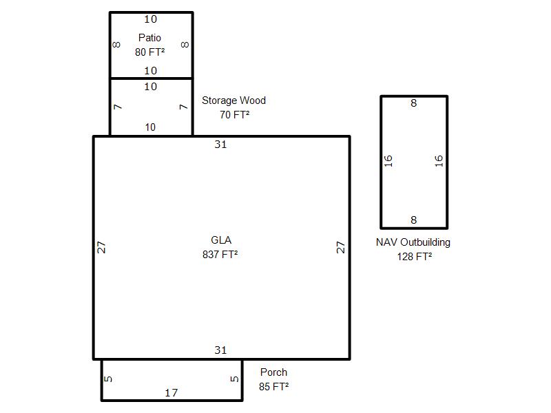
| Photo & Sketch (if available) | Comp Sales (ordered by relevancy) |
|
||||||||||||||||||
|
||||||||||||||||||||
| Value History (*The County Treasurer 405-713-1300 posts & collects actual tax amounts. Contact information HERE) | |||||||||||||
|---|---|---|---|---|---|---|---|---|---|---|---|---|---|
| Year | Market Value | Taxable Mkt Value | Gross Assessed | Exemption | Net Assessed | Millage | Est. Tax | Tax Savings | |||||
|
2025 |
97,500 |
93,975 |
10,337 |
0 |
10,337 |
119.58 |
$1,236 |
$46 |
|||||
|
2024 |
89,500 |
89,500 |
9,845 |
0 |
9,845 |
122.51 |
$1,206 |
$0 |
|||||
|
2023 |
77,000 |
30,741 |
3,381 |
2,000 |
1,381 |
117.71 |
$163 |
$834 |
|||||
|
2022 |
69,000 |
30,741 |
3,381 |
2,000 |
1,381 |
116.64 |
$161 |
$724 |
|||||
|
2021 |
58,500 |
30,741 |
3,381 |
2,000 |
1,381 |
119.45 |
$165 |
$604 |
|||||
| Property Account Status/Adjustments/Exemptions | ||
|---|---|---|
| Account # | Exemption Description | Amount |
|
R150465035 |
5% Capped Account |
0 |
| Property Deed Transaction History (Recorded in the County Clerk's Office) | ||||||||||
|---|---|---|---|---|---|---|---|---|---|---|
| Date | Type | Book | Page | Price | Grantor | Grantee | ||||
|
8/30/2023 |
|
Hmstd Off & |
$0 |
HYSELL BILLIE G |
P163 LLC |
|||||
|
8/30/2023 |
|
Deeds |
$85,000 |
HYSELL BILLIE G LF EST |
P163 LLC |
|||||
|
1/25/2013 |
|
Deeds |
$0 |
HYSELL JOSHUA PAUL |
HYSELL BILLIE G LF EST |
|||||
|
12/11/2012 |
|
Deeds |
$0 |
HYSELL BILLY B |
HYSELL JOSHUA PAUL |
|||||
|
12/11/2012 |
|
Deeds |
$0 |
SMITH WINDFIELD E LF EST HYSELL BILLY G |
HYSELL BILLY B |
|||||
| Last Mailed Notice of Value (N.O.V.) Information/History | ||||||||
|---|---|---|---|---|---|---|---|---|
| Year | Date | Market Value | Taxable Market Value | Gross Assessed | Exemption | Net Assessed | ||
|
2026 |
02/06/2026 |
96,500 |
96,500 |
10,615 |
0 |
10,615 |
||
|
2025 |
01/31/2025 |
97,500 |
93,975 |
10,337 |
0 |
10,337 |
||
|
2024 |
01/22/2024 |
89,500 |
89,500 |
9,845 |
0 |
9,845 |
||
|
2023 |
01/23/2023 |
77,000 |
30,741 |
3,381 |
2,000 |
1,381 |
||
|
2022 |
02/22/2022 |
69,000 |
30,741 |
3,381 |
2,000 |
1,381 |
||
| Property Building Permit History | |||||||||||
|---|---|---|---|---|---|---|---|---|---|---|---|
| Issued | Permit # | Provided by | Bldg # | Description | Est Construction Cost | Status | |||||
| No Building Permit records returned. | |||||||||||
| Click button on building number to access detailed information: | ||||||
|---|---|---|---|---|---|---|
| Bldg # | Vacant/Improved Land | Bldg Description | Year Built | SqFt | # Stories | |
|
1 |
Improved |
Ranch 1 Story |
1944 |
837 |
1 Stories |
|