|
|
|
| Larry Stein Oklahoma County Assessor (405) 713-1200 - Public Access System |
|
|
|
|
|
|
| Real Property Display - Screen Produced 4/5/2026 12:51:18 AM | ||||
|---|---|---|---|---|
| Account: R150468550 | Type: Residential | Location: |
226 E JACOBS DR |
|
| Building Name/Occupant: |
|
MIDWEST CITY |
||
| Owner Name 1: | ELLIOTT VICTORIA & SILAS |
Parcel PIN#: |
1437-15-046-8550 |
|
| Owner Name 2: | 1/4 section #: |
1437 |
||
| Owner Name 3: | Parent Acct: |
|
||
| Billing Address: | 226 E JACOBS DR | Tax District: |
|
|
| City, State, Zip | MIDWEST CITY, OK 73110-5304 | School System: |
Mid-Del #52 |
|
|
Country: (If noted) |
Land Size: |
0.1400 Acres |
||
|
Land Value: 19,520 |
|
|||
|
Sect 10-T11N-R2W Qtr NE |
PINE ADDITION
Block
006
Lot
003
|
|||
| Full Legal Description: PINE ADDITION 006 003 |
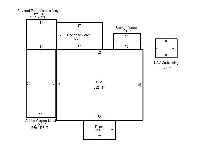
| Photo & Sketch (if available) | Comp Sales (ordered by relevancy) |
|
||||||||||||||||||
|
||||||||||||||||||||
| Value History (*The County Treasurer 405-713-1300 posts & collects actual tax amounts. Contact information HERE) | |||||||||||||
|---|---|---|---|---|---|---|---|---|---|---|---|---|---|
| Year | Market Value | Taxable Mkt Value | Gross Assessed | Exemption | Net Assessed | Millage | Est. Tax | Tax Savings | |||||
|
2026 |
108,000 |
108,000 |
11,880 |
1,000 |
10,880 |
119.58 |
$1,301 |
$120 |
|||||
|
2025 |
111,500 |
107,635 |
11,839 |
1,000 |
10,839 |
119.58 |
$1,296 |
$170 |
|||||
|
2024 |
104,500 |
104,500 |
11,495 |
1,000 |
10,495 |
122.51 |
$1,286 |
$123 |
|||||
|
2023 |
93,500 |
74,666 |
8,213 |
0 |
8,213 |
117.71 |
$967 |
$244 |
|||||
|
2022 |
85,500 |
71,111 |
7,821 |
0 |
7,821 |
116.64 |
$912 |
$185 |
|||||
| Property Account Status/Adjustments/Exemptions | ||
|---|---|---|
| Account # | Exemption Description | Amount |
|
R150468550 |
3% Cap Homestead |
0 |
|
R150468550 |
Homestead |
1,000 |
| Property Deed Transaction History (Recorded in the County Clerk's Office) | ||||||||||
|---|---|---|---|---|---|---|---|---|---|---|
| Date | Type | Book | Page | Price | Grantor | Grantee | ||||
|
5/5/2023 |
|
Deeds |
$114,000 |
ACADEMY REAL ESTATE & DEVELOPMENT LLC |
ELLIOTT VICTORIA & SILAS |
|||||
|
10/18/2018 |
|
Deeds |
$66,000 |
NIPPER CHRISTI MICHELE |
ACADEMY REAL ESTATE & DEVELOPMENT LLC |
|||||
|
3/26/2015 |
|
Deeds |
$44,000 |
OLMSTEAD JARED DEWAYNE |
NIPPER CHRISTI MICHELE |
|||||
|
9/14/2012 |
|
Deeds |
$0 |
OLMSTEAD JARED & ASHLEY |
OLMSTEAD JARED DEWAYNE |
|||||
|
7/31/2012 |
|
Deeds |
$57,000 |
BRYANT COLE |
OLMSTEAD JARED & ASHLEY |
|||||
| Last Mailed Notice of Value (N.O.V.) Information/History | ||||||||
|---|---|---|---|---|---|---|---|---|
| Year | Date | Market Value | Taxable Market Value | Gross Assessed | Exemption | Net Assessed | ||
|
2026 |
02/06/2026 |
108,000 |
108,000 |
11,880 |
1,000 |
10,880 |
||
|
2025 |
01/31/2025 |
111,500 |
107,635 |
11,839 |
1,000 |
10,839 |
||
|
2024 |
01/22/2024 |
104,500 |
104,500 |
11,495 |
1,000 |
10,495 |
||
|
2023 |
01/23/2023 |
93,500 |
74,666 |
8,213 |
0 |
8,213 |
||
|
2022 |
02/22/2022 |
85,500 |
71,111 |
7,821 |
0 |
7,821 |
||
| Property Building Permit History | |||||||||||
|---|---|---|---|---|---|---|---|---|---|---|---|
| Issued | Permit # | Provided by | Bldg # | Description | Est Construction Cost | Status | |||||
| No Building Permit records returned. | |||||||||||
| Click button on building number to access detailed information: | ||||||
|---|---|---|---|---|---|---|
| Bldg # | Vacant/Improved Land | Bldg Description | Year Built | SqFt | # Stories | |
|
1 |
Improved |
Ranch 1 Story |
1944 |
832 |
1 Stories |
|