|
|
|
| Larry Stein Oklahoma County Assessor (405) 713-1200 - Public Access System |
|
|
|
|
|
|
| Real Property Display - Screen Produced 3/17/2026 12:22:40 PM | ||||
|---|---|---|---|---|
| Account: R150480575 | Type: Residential | Location: |
7302 SE 15TH ST |
|
| Building Name/Occupant: |
|
MIDWEST CITY |
||
| Owner Name 1: | SCHARTZER AUSTIN |
Parcel PIN#: |
1437-15-048-0575 |
|
| Owner Name 2: | 1/4 section #: |
1437 |
||
| Owner Name 3: | Parent Acct: |
|
||
| Billing Address: | 7302 SE 15TH ST | Tax District: |
|
|
| City, State, Zip | MIDWEST CITY, OK 73110 | School System: |
Mid-Del #52 |
|
|
Country: (If noted) |
UNITED STATES |
Land Size: |
0.1667 Acres |
|
|
Land Value: 18,516 |
|
|||
|
Sect 10-T11N-R2W Qtr NE |
COUNTRY ESTATES ADD
Block
001
Lot
019
|
|||
| Full Legal Description: COUNTRY ESTATES ADD 001 019 |
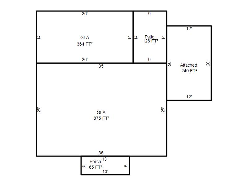
| Photo & Sketch (if available) | Comp Sales (ordered by relevancy) |
|
||||||||||||||||||
|
||||||||||||||||||||
| Value History (*The County Treasurer 405-713-1300 posts & collects actual tax amounts. Contact information HERE) | |||||||||||||
|---|---|---|---|---|---|---|---|---|---|---|---|---|---|
| Year | Market Value | Taxable Mkt Value | Gross Assessed | Exemption | Net Assessed | Millage | Est. Tax | Tax Savings | |||||
|
2025 |
126,500 |
126,500 |
13,915 |
0 |
13,915 |
119.58 |
$1,664 |
$0 |
|||||
|
2024 |
116,000 |
83,261 |
9,158 |
0 |
9,158 |
122.51 |
$1,122 |
$441 |
|||||
|
2023 |
102,500 |
79,297 |
8,722 |
0 |
8,722 |
117.71 |
$1,027 |
$300 |
|||||
|
2022 |
77,500 |
75,521 |
8,306 |
0 |
8,306 |
116.64 |
$969 |
$25 |
|||||
|
2021 |
77,500 |
71,925 |
7,911 |
0 |
7,911 |
119.45 |
$945 |
$73 |
|||||
| Property Account Status/Adjustments/Exemptions | ||
|---|---|---|
| Account # | Exemption Description | Amount |
|
R150480575 |
Homestead |
1,000 |
| Property Deed Transaction History (Recorded in the County Clerk's Office) | ||||||||||
|---|---|---|---|---|---|---|---|---|---|---|
| Date | Type | Book | Page | Price | Grantor | Grantee | ||||
|
6/27/2025 |
|
Hmstd Off & |
$0 |
THOMAS SHANE TIMOTHY |
7302 SE 15TH LLC |
|||||
|
6/27/2025 |
|
Deeds |
$170,500 |
7302 SE 15TH LLC |
SCHARTZER AUSTIN |
|||||
|
6/4/2025 |
|
Hmstd Off & |
$0 |
THOMAS SHANE TIMOTHY |
7302 SE 15TH LLC |
|||||
|
10/9/2024 |
|
Deeds |
$85,000 |
405 EQUITY LLC |
THOMAS SHANE TIMOTHY |
|||||
|
10/8/2024 |
|
Deeds |
$72,000 |
THE 01512037 GORK LOUNGE TRUST |
405 EQUITY LLC |
|||||
| Last Mailed Notice of Value (N.O.V.) Information/History | ||||||||
|---|---|---|---|---|---|---|---|---|
| Year | Date | Market Value | Taxable Market Value | Gross Assessed | Exemption | Net Assessed | ||
|
2026 |
02/06/2026 |
185,000 |
185,000 |
20,350 |
1,000 |
19,350 |
||
|
2025 |
01/31/2025 |
126,500 |
126,500 |
13,915 |
0 |
13,915 |
||
|
2024 |
01/22/2024 |
116,000 |
83,261 |
9,158 |
0 |
9,158 |
||
|
2023 |
01/23/2023 |
102,500 |
79,297 |
8,722 |
0 |
8,722 |
||
|
2022 |
02/22/2022 |
77,500 |
75,521 |
8,306 |
0 |
8,306 |
||
| Property Building Permit History | |||||||||||
|---|---|---|---|---|---|---|---|---|---|---|---|
| Issued | Permit # | Provided by | Bldg # | Description | Est Construction Cost | Status | |||||
| No Building Permit records returned. | |||||||||||
| Click button on building number to access detailed information: | ||||||
|---|---|---|---|---|---|---|
| Bldg # | Vacant/Improved Land | Bldg Description | Year Built | SqFt | # Stories | |
|
1 |
Improved |
Ranch 1 Story |
1947 |
1,239 |
1 Stories |
|